Casa indipendente via generale traina 12, Baucina
€ 85.000
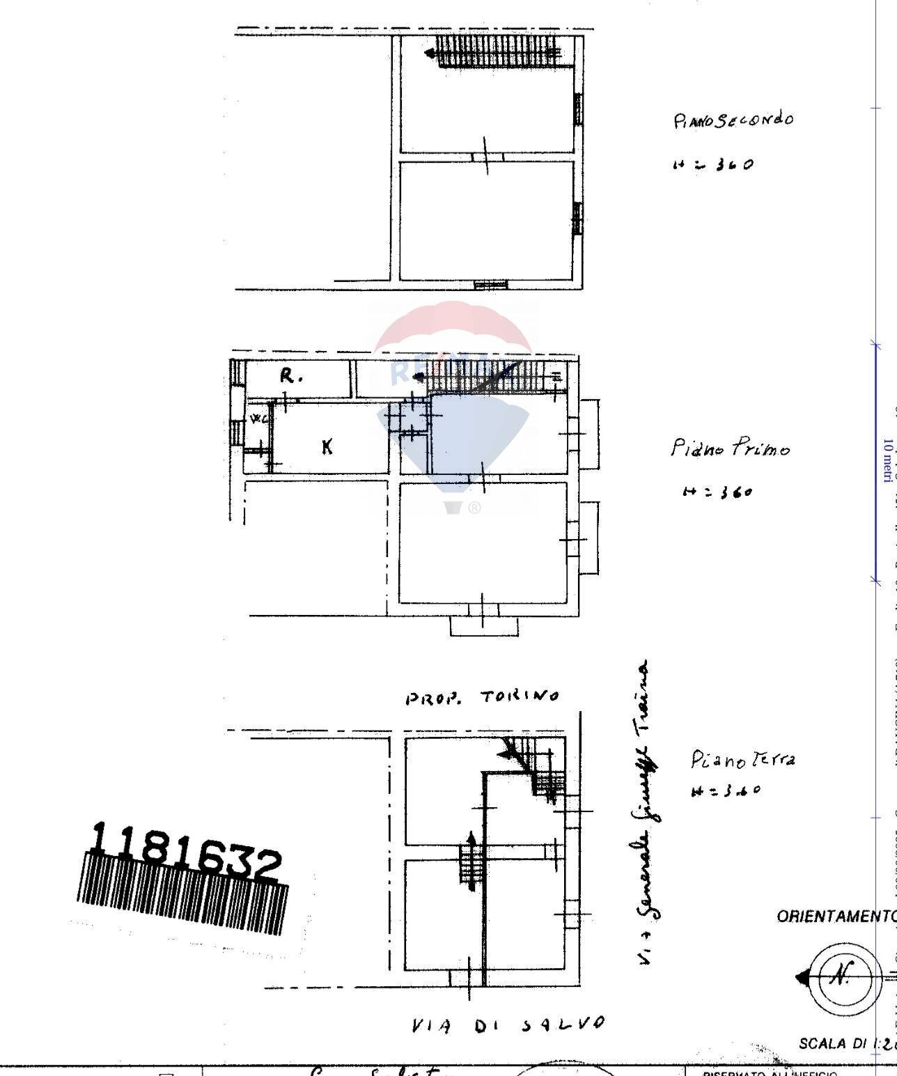
BAUCINA(PA)_ Immergiti nella storia di Baucina, a pochi chilometri da Palermo, con questo affascinante palazzo in vendita, un tempo dimora del celebre Generale Traina. Situato nell'omonima via, l'immobile conserva intatti i tratti distintivi di un'epoca che continua ad affascinare, offrendo un'armoniosa fusione tra il fascino dell'antico e il comfort del moderno. Sviluppato su tre livelli, questa offre una straordinaria flessibilità, ideale per chi desidera una residenza di prestigio o un'opportunità di investimento. Grazie ai tre accessi indipendenti, è possibile frazionare l'immobile in diverse unità: Piano Terra: Perfetto per realizzare tre accoglienti unità immobiliari di piccola metratura, ideali per affitti turistici o piccoli studi. Primo Piano: Un ampio appartamento composto da ingresso, luminosa cucina-soggiorno, servizio, saloncino e una spaziosa camera padronale. Secondo e Ultimo Piano: Due ulteriori camere e un suggestivo soppalco a vista valorizzato dai tetti alti, offrendo ulteriori possibilità abitative o creative. Il palazzo ha beneficiato di importanti interventi di ristrutturazione: il tetto è stato completamente restaurato con travi nuove, e la facciata è stata anch'essa ripristinata. Gli interni si presentano in buone condizioni generali, pur richiedendo piccoli interventi personalizzati per esaltarne ulteriormente il carattere. Non perdere l'opportunità di possedere un pezzo di storia in Sicilia, con infinite possibilità di trasformazione. Contattaci per avere maggiori informazioni o per una visita! E' POSSIBILE VISIONARE L'IMMOBILE TUTTI I GIORNI PREVIO APPUNTAMENTO TELEFONICO.
Dati principali
| Riferimento | 39391062-122 |
| Data annuncio | 19/06/2025 |
| Contratto | Vendita |
| Tipologia | Casa indipendente |
| Superficie | 276 m2 |
| Locali | più di 5 (4 camere da letto, 4 altro), 2 bagni, cucina cucinino |
| Piano | Intero edificio, 2 totali |
| Tipo di costruzione | Signorile |
| Occupato | Libero |
| Box auto | Assente |
| Arredamento | Assente |
Caratteristiche
Costi
| Prezzo | 85.000 € |
| Prezzo al m2 | 308 €/m2 |
Efficienza energetica
| Stato | Buono |
| Riscaldamento | Autonomo |
| Classe energetica | G |
| Indice di prestazione energetica (IPE) | 175 kWh/m2 anno |
Planimetrie
Indirizzo e mappa
via generale traina
12, Baucina
Annuncio senza mappa,
prova a chiedere la posizione all'inserzionista
prova a chiedere la posizione all'inserzionista
Calcolo mutuo
Prezzo di vendita:
Anticipo
20,00
Mutuo
80,00
Tasso: -+
Rata: 243 al mese
I risultati sono una stima indicativa basata sui dati inseriti e non costituiscono un’offerta finanziaria.
Inserzionista

RE/MAX Master Home 2
Via della Libertà, 86, Palermo
Mostra Telefono
Mostra Cellulare
Chiama
CONTATTA

