Quadrilocale Via Cesare Battisti, Bergamo
€ 328.000
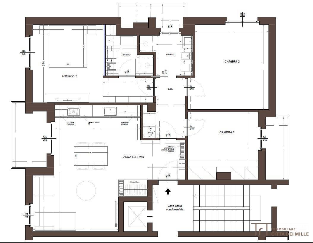
Bergamo, zona Quartiere Borgo S. Caterina, vendesi appartamento quadrilocale in fase di ultimazione libero su tre lati. L'abitazione è completamente ristrutturata a nuovo con la possibilità di scelta delle finiture riguardanti i pavimenti ed i bagni. Soluzione internamente composta da: ingresso, soggiorno con zona cottura, 3 camere da letto con doppi servizi, uno dei quali riservato alla camera matrimoniale, zona lavanderia, 3 balconi e una grande cantina al piano interrato. Posto auto a rotazione annuale nel cortile al prezzo di 400,00 annui, oppure possibilità di affittarlo nel complesso adiacente al condominio. Sulla tutela dei dati personali, la via indicata ed il puntatore mappa sono approssimativi. Per ulteriori informazioni e visite, contattare l'agenzia immobiliare di Bergamo Immobiliare Città dei Mille Tel. 035.220630. Da oltre trent'anni presente sul mercato tra le agenzie immobiliari di Bergamo. La presente scheda non può essere divulgata ad altre persone ed è soggetta alla Legge relativa alla riservatezza personale. Inoltre il presente documento non costituisce elemento contrattuale ai sensi dell'art. 13 e 14 del regolamento generale sulla protezione dei dati UE 2016/679.
Dati principali
| Riferimento | 10694 |
| Data annuncio | 19/06/2025 |
| Contratto | Vendita |
| Tipologia | Appartamento |
| Superficie | 100 m2 |
| Locali | 4 (3 camere da letto, 1 altro), 2 bagni, cucina angolo cottura |
| Piano | 1 di 4 totali |
| Tipo di costruzione | Media |
| Occupato | Libero |
| Box auto | Assente |
| Numero posti auto | 1 |
| Arredamento | Assente |
Caratteristiche
Costi
| Prezzo | 328.000 € |
| Prezzo al m2 | 3.280 €/m2 |
Efficienza energetica
| Stato | Parzialmente ristrutturato |
| Riscaldamento | Semi-autonomo |
| Classe energetica | D |
| Indice di prestazione energetica (IPE) | 91 kWh/m2 anno |
Planimetrie
Indirizzo e mappa
Via Cesare Battisti, Bergamo
Annuncio senza mappa,
prova a chiedere la posizione all'inserzionista
prova a chiedere la posizione all'inserzionista
Calcolo mutuo
Prezzo di vendita:
Anticipo
20,00
Mutuo
80,00
Tasso: -+
Rata: 938 al mese
I risultati sono una stima indicativa basata sui dati inseriti e non costituiscono un’offerta finanziaria.
Inserzionista

Immobiliare Città dei Mille
Passaggio Canonici Lateranensi, 17, Bergamo
Mostra Telefono
Mostra Cellulare
Chiama
CONTATTA

