Locale Commerciale via luciano zuccoli 75, San Benedetto del Tronto
€ 400.000
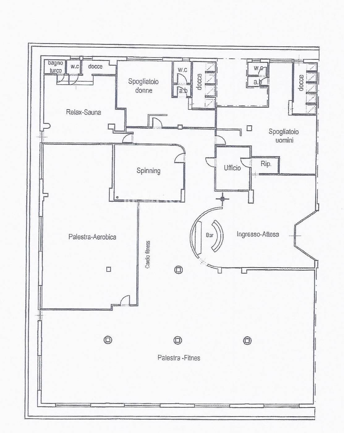
L'agenzia Re Casa propone in vendita a San Benedetto del Tronto, sulla SS 16, zona nord Salaria, locale commerciale categoria catastale D/6, delle dimensioni di mq 800, adibito come centro fitness. Il locale, attualmente locato fino a maggio 2026, si trova in ottime condizioni attualmente funzionante come centro fitness, si presenta come ambiente unico, con diversi spazi dedicati alle varie discipline. L'immobile è composta da ingresso e reception, ampia sala fitness, spazio con tappeti per arti marziali, sala aerobica, sala spinning, zona relax con bagno turco e sauna, con wc e doccia, spogliatoio donne con bagno - antibagno e quattro docce, spogliatoio uomini con bagno- antibagno e cinque docce, ufficio amministrazione e ripostiglio. Situato in zona centrale, lungo la S.S. 16, al confine tra i comuni di Grottammare e San Benedetto del Tronto, in zona altamente residenziale, fornito di parcheggi, in un contesto molto frequentato, commerciale, circondato da altre attività e nelle immediate vicinanze di uffici quali Poste e Banche, questo locale commerciale si rivela ideale per centro fitness, o qualsiasi altra attività che non necessiti di canna fumaria.
Dati principali
| Riferimento | 9618 |
| Data annuncio | 19/06/2025 |
| Contratto | Vendita |
| Tipologia | Locale Commerciale |
| Superficie | 800 m2 |
| Locali | 2 bagni, cucina non presente |
| Piano | Scantinato, 5 totali |
| Occupato | Occupato da Proprietario |
| Box auto | Assente |
| Arredamento | Parziale |
Caratteristiche
Costi
| Prezzo | 400.000 € |
| Prezzo al m2 | 500 €/m2 |
Efficienza energetica
| Stato | Buono |
| Riscaldamento | Autonomo |
| Tipo Impianto Di Riscaldamento | ad aria |
| Tipo Alimentazione Riscaldamento | Elettrico |
| Classe energetica | Immobile esente da certificazione energetica |
Planimetrie
Indirizzo e mappa
via luciano zuccoli
75, San Benedetto del Tronto
Annuncio senza mappa,
prova a chiedere la posizione all'inserzionista
prova a chiedere la posizione all'inserzionista
Calcolo mutuo
Prezzo di vendita:
Anticipo
20,00
Mutuo
80,00
Tasso: -+
Rata: 1.144 al mese
I risultati sono una stima indicativa basata sui dati inseriti e non costituiscono un’offerta finanziaria.
Inserzionista

Re Casa S.r.l.s.
Via San Francesco n. 13 b/c, San Benedetto del Tronto
Mostra Telefono
Mostra Cellulare
Re Casa Immobiliare
Chiama
CONTATTA

