Villa a Schiera Via Maglio, Susegana
€ 268.000
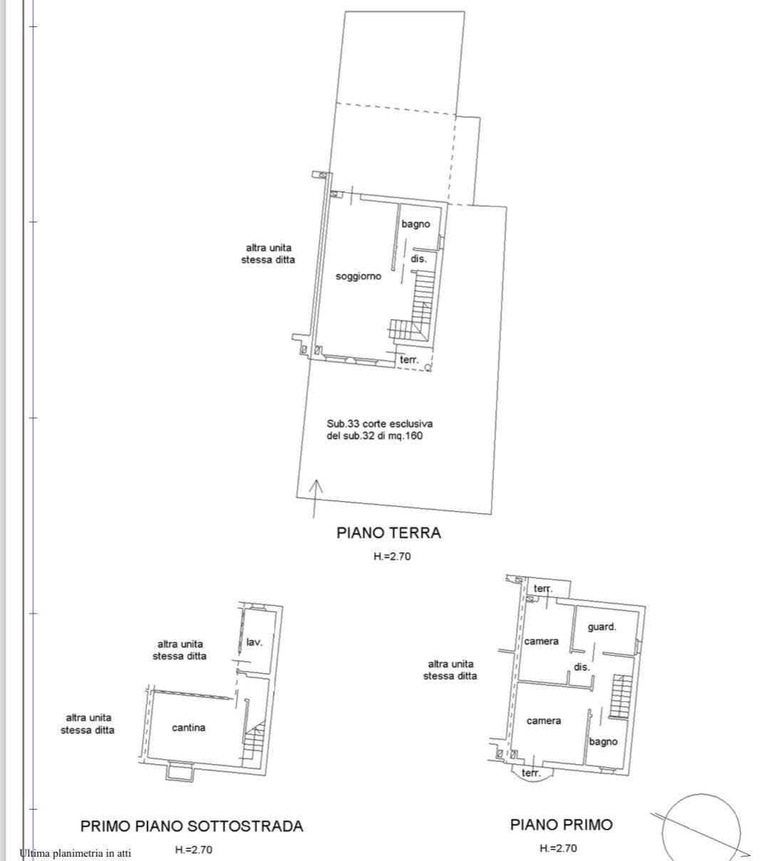
SCHIERA DI TESTA CON GIARDINO IN CENTRO A PONTE DELLA PRIULA Nel cuore di Ponte della Priula, a soli 300 metri dal centro e con una splendida vista sul fiume Piave, proponiamo in vendita una villa a schiera di testa costruita nel 2007, con un ampio giardino privato di circa 200 mq che abbraccia la casa su tre lati, offrendo privacy, spazio e tranquillità. Labitazione si sviluppa su tre livelli per una superficie totale di circa 165 mq. Al piano terra si viene accolti da un ingresso luminoso che si apre su un confortevole soggiorno, proseguendo poi verso una cucina separata e abitabile. Sempre al piano terra troviamo un comodo bagno di servizio. Uscendo dalla cucina si accede al giardino sul retro, un vero angolo di relax impreziosito da una splendida pompeiana, perfetta per pranzi e cene allaperto, una casetta in legno e una zona barbecue pronta a ospitare momenti conviviali con amici e famiglia. Salendo al piano superiore, attraverso una scala in legno realizzata con cura artigianale e arricchita da una delicata illuminazione perimetrale, si accede alla zona notte composta da una spaziosa camera matrimoniale, una camera doppia, una camera singola e un bagno finestrato dotato di vasca. Il piano seminterrato completa lofferta con una taverna accogliente e ben rifinita, perfetta per feste, cene in compagnia o semplicemente per godersi una serata davanti al camino in muratura, che dona calore e carattere allambiente. Sempre sullo stesso livello si trova anche un garage privato, funzionale e comodo. La villa è dotata di impianti recenti e di un ottimo isolamento termico, che garantiscono efficienza e risparmio energetico durante tutto lanno. La posizione, immersa nella quiete ma a due passi dal centro, la rende ideale per chi cerca serenità senza rinunciare ai servizi. Perfetta per famiglie o per chi ama vivere a stretto contatto con la natura, magari facendo passeggiate lungo il Piave a pochi metri da casa, questa soluzione rappresenta un raro equilibrio tra comfort, bellezza e qualità della vita. Per la tutela della privacy non viene indicata l'esatta ubicazione dell'immobile per maggiori informazioni, si prega di contattare l'agenzia immobiliare di riferimento.
Dati principali
| Riferimento | 91V |
| Data annuncio | 19/06/2025 |
| Contratto | Vendita |
| Tipologia | Villa a Schiera |
| Superficie | 170 m2 |
| Locali | più di 5 (3 camere da letto, 6 altro), 2 bagni, cucina abitabile |
| Tipo di costruzione | Signorile |
| Occupato | Libero |
| Box auto | Singolo |
| Numero posti auto | 1 |
| Arredamento | Parziale |
Caratteristiche
Costi
| Prezzo | 268.000 € |
| Prezzo al m2 | 1.576 €/m2 |
Efficienza energetica
| Stato | Ottimo |
| Riscaldamento | Autonomo |
| Classe energetica | E |
| Indice di prestazione energetica (IPE) | - |
Planimetrie
Indirizzo e mappa
Via Maglio, Susegana
Annuncio senza mappa,
prova a chiedere la posizione all'inserzionista
prova a chiedere la posizione all'inserzionista
Calcolo mutuo
Prezzo di vendita:
Anticipo
20,00
Mutuo
80,00
Tasso: -+
Rata: 766 al mese
I risultati sono una stima indicativa basata sui dati inseriti e non costituiscono un’offerta finanziaria.
Inserzionista

Premier Casa Immobiliare di Marzia Ingoglia e C. s.a.s.
Via Sant'Elena n 89, Silea
Mostra Telefono
Mostra Cellulare
Chiama
CONTATTA

