Villa Via Verbano, Dumenza
€ 500.000
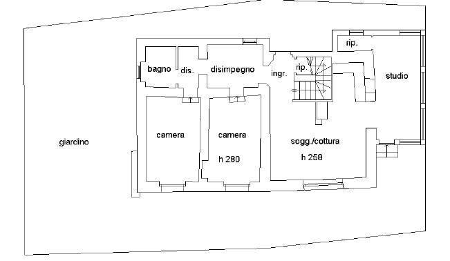
In Dumenza, in posizione strategica, a pochi minuti dal confine Svizzero e dalle incantevoli sponde del lago Maggiore, proponiamo in vendita una villa singola circondata da giardino, ideale per chi desidera tranquillità e riservatezza. Varcando l'ingresso si è accolti da un luminoso soggiorno, completato da angolo cottura separato e da una splendida zona pranzo completamente finestrata con accesso diretto al verde esterno. Completa la zona giorno una comoda lavanderia. La zona notte al piano terreno ospita uno studio, una camera matrimoniale, un bagno finestrato e un pratico ripostiglio. Il piano superiore si distingue per una grande camera padronale con bagno privato e terrazzo, due camere singole di generose dimensioni, un secondo bagno e un comodo ripostiglio. A piano seminterrato troviamo tre spaziosi locali accessori ideali come hobby room o locali sgombero oltre locale caldaia. All'esterno, la villa è circondata da un giardino pianeggiante oltre ad una ampia area verde piantumata, perfetta per realizzare una piscina privata o vivere appieno gli spazi all'aperto. Completano la proprietà un box e posti auto per più vetture. Un'oasi di pace a breve distanza dai principali servizi , ideale come residenza principale o casa vacanze dove trascorrere con i propri amici, viste le numerose e indipendenti camere da letto, i mesi più caldi lontani dalla frenesia cittadina.
Dati principali
| Riferimento | VA017 |
| Data annuncio | 19/06/2025 |
| Contratto | Vendita |
| Tipologia | Villa |
| Superficie | 350 m2 |
| Locali | 5 (4 camere da letto, 1 altro), 3 bagni, cucina angolo cottura |
| Piano | Su più livelli, 2 totali |
| Tipo di costruzione | Media |
| Occupato | Libero |
| Box auto | Singolo |
| Numero posti auto | 3 |
Caratteristiche
Costi
| Prezzo | 500.000 € |
| Prezzo al m2 | 1.429 €/m2 |
Efficienza energetica
| Stato | Ottimo |
| Riscaldamento | Autonomo |
| Classe energetica | D |
| Indice di prestazione energetica (IPE) | 198 kWh/m2 anno |
Planimetrie
Virtual tour
Indirizzo e mappa
Via Verbano, Dumenza
Annuncio senza mappa,
prova a chiedere la posizione all'inserzionista
prova a chiedere la posizione all'inserzionista
Calcolo mutuo
Prezzo di vendita:
Anticipo
20,00
Mutuo
80,00
Tasso: -+
Rata: 1.430 al mese
I risultati sono una stima indicativa basata sui dati inseriti e non costituiscono un’offerta finanziaria.
Inserzionista

Archimedia 360 Soc. Coop
Via Martiri Patrioti 31, Malnate
Mostra Telefono
Chiama
CONTATTA

