Casa indipendente Frazione Cella, Varzi
€ 32.000TERRATETTO CON CORTE ESTERNA (643 m s.l.m.)
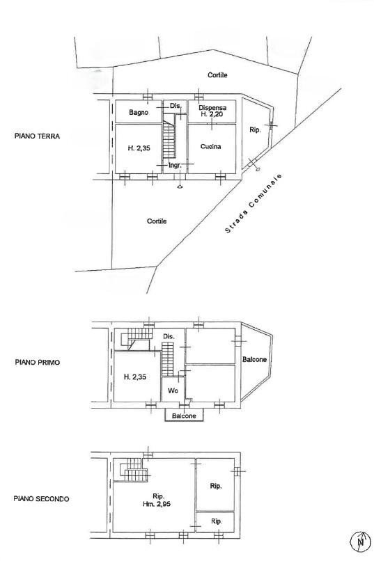
PEDEMONTE MASSIMO PROPONE CASA CON CORTE IN VENDITA IN COLLINA FRAZIONE CELLA DI VARZI POSSIBILITA' DI ACQUISTO TERRENO NELLE VICINANZE In vendita a Cella di Varzi (643 m s.l.m.), nel cuore dell’Oltrepò Pavese, proponiamo un’interessante soluzione terratetto disposta su tre livelli, con una superficie complessiva di circa 210 mq e corte esterna privata di 243 mq. L’immobile si trova in una zona tranquilla e panoramica, immersa nella natura ma comodamente raggiungibile, a pochi minuti dal centro di Varzi e dai principali servizi. Ideale per chi desidera vivere lontano dal caos cittadino, ma senza rinunciare alla praticità. Al piano terra troviamo una zona giorno, composta da un salotto, una sala da pranzo e tinello, oltre a un comodo bagno con vasca. Un disimpegno introduce la scala interna che conduce al primo piano, dedicato alla zona notte. Qui si trovano tre camere da letto, di cui una con accesso a un balcone, e un secondo bagno, più contenuto, ma dotato anch’esso di una piccola vasca e servito da un ulteriore balcone che affaccia sull’esterno. Salendo ulteriormente, si accede al piano mansardato, attualmente utilizzato come ampio ripostiglio, ma con il potenziale per essere trasformato in uno spazio abitabile, come uno studio, una sala hobby o una stanza per gli ospiti. Completa la proprietà una corte esterna di 240 mq distributita davanti e dietro la proprietà, perfetta per chi ama rilassarsi all’aperto (perfetto anche come posto auto). La posizione, strategicamente situata tra le colline e i sentieri dell’Oltrepò, rende questo immobile particolarmente adatto sia come residenza principale sia come casa vacanze. CONTATTATECI per avere tutte le informazioni che desiderate tel. 0131/868477 – [email protected] CI TROVATE a Tortona in Via Emilia n. 54 (Piazza Malaspina) dal lunedì al venerdì dalle 9.00 alle 13.00 e dalle 15.00 alle 19.00 VISITATE IL NOSTRO SITO www.pedemontemassimomediatore.com per scoprire tutte le soluzioni immobiliari che abbiamo da proporvi
Dati principali
| Riferimento | 354/3 |
| Data annuncio | 17/06/2025 |
| Contratto | Vendita |
| Tipologia | Casa indipendente |
| Superficie | 140 m2 |
| Locali | 4 (3 camere da letto, 1 altro), 2 bagni, cucina abitabile |
| Piano | 3 totali |
| Tipo di costruzione | Popolare |
| Numero di balconi | 1 |
| Box auto | Assente |
| Numero posti auto | 2 |
| Arredamento | Parziale |
Caratteristiche
Costi
| Prezzo | 32.000 € |
| Prezzo al m2 | 229 €/m2 |
Efficienza energetica
| Anno costruzione | 1900 |
| Stato | Buono |
| Riscaldamento | Autonomo |
| Classe energetica | Immobile esente da certificazione energetica |
Planimetrie
Indirizzo e mappa
Frazione Cella, Varzi
Calcolo mutuo
Prezzo di vendita:
Anticipo
20,00
Mutuo
80,00
Tasso: -+
Rata: 92 al mese
I risultati sono una stima indicativa basata sui dati inseriti e non costituiscono un’offerta finanziaria.
Inserzionista
Chiama
CONTATTA


