Villa via Risorgimento, 56, Cento
€ 430.000Cento - Villa unifamiliare in Via Risorgimento
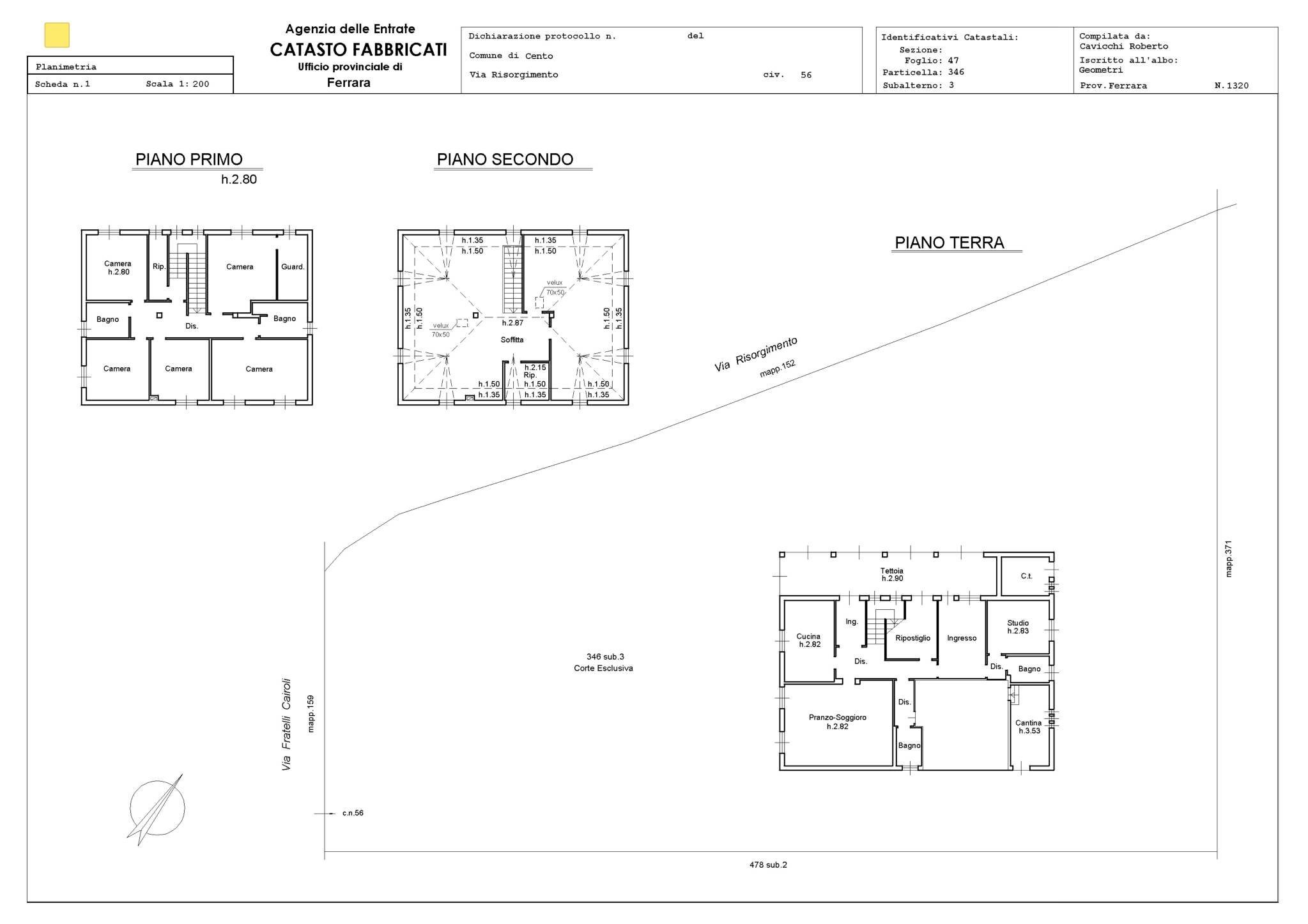
A due passi dal cuore del centro di Cento, vi presentiamo un'opportunità unica: una magnifica villa unifamiliare di oltre 400 metri quadrati, in cemento armato su tre livelli, con un'ampia autorimessa, cantina e un incantevole giardino circostante. Questa proprietà è un gioiello che offre comfort abitativi spaziosi senza pari. Caratteristiche della casa: • Piano Terra: Dal porticato esterno, si accede dall'ingresso principale o da un ulteriore ampio ingresso, troviamo un generoso salone con camino, una cucina abitabile, uno studio, un comodo ripostiglio, due bagni, un ampio garage collegato alla cantina ed il vano della centrale termica. • Primo Piano: Al primo piano, troverete un disimpegno, cinque camere da letto, di cui una è dotata di una cabina armadio, due bagni e un altro pratico ripostiglio. • Secondo Piano: L'ultimo piano è una magnifica mansarda ancora da personalizzare a vostro piacimento. È un open space, con l'eccezione di un vano adibito a ripostiglio. Giardino: La proprietà è circondata da un bellissimo giardino su tutti e quattro i lati, creando un'oasi di tranquillità e spazio per il vostro relax e intrattenimento. Questa villa offre il comfort necessario all’interno di una struttura molto solida e sicura. La sua posizione privilegiata vi offre la comodità di essere vicini al centro di Cento, ma al contempo vi permette di godere di uno spazio esterno privato per godervi la tranquillità della vostra dimora. Non lasciatevi sfuggire questa rara opportunità di possedere una residenza di prestigio. Per ulteriori informazioni o per prenotare una visita, non esitate a contattarci. Siamo a vostra disposizione per qualsiasi chiarimento o dettaglio. Prezzo di vendita: € 430.000 Contatti: Scala Gianluca Tel. Uff. 051 0395660 - Tel. Cell. 340 6361027
Dati principali
| Riferimento | CEVI240626 |
| Data annuncio | 08/11/2023 |
| Contratto | Vendita |
| Tipologia | Villa |
| Superficie | 454 m2 |
| Locali | più di 5 (5 camere da letto, 7 altro), 3 bagni, cucina abitabile |
| Piano | 3 totali |
| Tipo di costruzione | Signorile |
| Box auto | Doppio |
| Numero posti auto | 4 |
| Arredamento | Assente |
Caratteristiche
Costi
| Prezzo | 430.000 € |
| Prezzo al m2 | 947 €/m2 |
Efficienza energetica
| Anno costruzione | 1983 |
| Stato | Buono |
| Riscaldamento | Autonomo |
| Classe energetica | G |
| Indice di prestazione energetica (IPE) | 207.01 kWh/m2 anno |
Planimetrie
Indirizzo e mappa
via Risorgimento, 56, Cento
Calcolo mutuo
Prezzo di vendita:
Anticipo
20,00
Mutuo
80,00
Tasso: -+
Rata: 1.230 al mese
I risultati sono una stima indicativa basata sui dati inseriti e non costituiscono un’offerta finanziaria.
Inserzionista

Scala Gianluca
Via Santo Stefano 130 10/A, Bologna
Mostra Cellulare
Chiama
CONTATTA

