Negozio Statte
€ 115.000Locale commerciale di 198 mq in zona sacro cuore
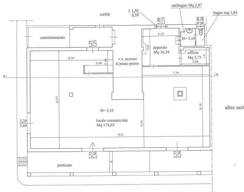
L' Agenzia "Obiettivo casa" propone in vendita, nelle vicinanze della chiesa Sacro Cuore di Statte, ampio locale commerciale sito al piano terra di circa 198 mq con 3 vetrine su strada. Ottimo come uso investimento. Per info telefonare allo 0994746819
Dati principali
| Riferimento | ID2739995 |
| Data annuncio | 16/06/2025 |
| Contratto | Vendita |
| Tipologia | Negozio |
| Superficie | 198 m2 |
| Piano | 1 totali |
| Uso immobile | Commerciale |
Costi
| Prezzo | 115.000 € |
| Prezzo al m2 | 581 €/m2 |
Efficienza energetica
| Riscaldamento | Assente |
| Classe energetica | F |
| Indice di prestazione energetica (IPE) | 65 kWh/m2 anno |
Planimetrie
Indirizzo e mappa
Statte
Annuncio senza mappa,
prova a chiedere la posizione all'inserzionista
prova a chiedere la posizione all'inserzionista
Calcolo mutuo
Prezzo di vendita:
Anticipo
20,00
Mutuo
80,00
Tasso: -+
Rata: 329 al mese
I risultati sono una stima indicativa basata sui dati inseriti e non costituiscono un’offerta finanziaria.
Inserzionista

Obiettivo Casa
Via Tripoli 2, Statte
Mostra Telefono
Chiama
CONTATTA

