Annuncio senza foto,
prova a chiederle all'inserzionista
prova a chiederle all'inserzionista
Trullo Strada Trasconi Chiancone, Martina Franca
€ 590.000Rif. 1924 Vendita affascinante complesso di trulli a Martina Franca
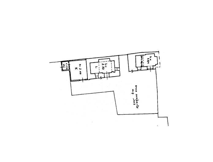
Rif. 1924 #myprojectcasa propone in vendita affascinante complesso di trulli finemente ristrutturati in Via Massafra a Martina Franca. Situato in Strada Trasconi-Chiancone, a circa 6 km da Martina, l'immobile è stato oggetto di recente ristrutturazione con grande cura per i dettagli. Dotata di diversi ingressi, la struttura sviluppa una metratura di 240 mq suddivisi in tre unità abitative. Il corpo principale è composto da: ampio soggiorno in trulli, grande cucina abitabile con camino, tripla camera da letto matrimoniale, veranda finestrata adibita a sala da pranzo, con vista panoramica sugli spazi esterni, e doppio bagno. Dal secondo ingresso si accede a un ulteriore complesso di trulli, composto da due unità abitative in fase di ristrutturazione. Completa la proprietà terreno pertinenziale di circa 1 ettaro, fossa Imhoff omologata per 18 persone e tre cisterne per la raccolta dell'acqua. L'immobile viene venduto completamente arredato, con arredi di pregio selezionati con grande attenzione. Questa è un'opportunità imperdibile per chi desidera vivere in un contesto civile, immerso nella bellezza della campagna pugliese, senza rinunciare alla vicinanza ai servizi e alle attrazioni di Martina Franca. Non perdere l'occasione di visitare questo straordinario immobile, ideale sia come residenza principale che come casa vacanze. Contattaci per maggiori informazioni e per organizzare una visita. PER IMMOBILI SIMILI VISITA IL SITO myprojectcasa
arredato
arredato
Dati principali
| Riferimento | 1924 |
| Data annuncio | 18/06/2025 |
| Contratto | Vendita |
| Tipologia | Trullo |
| Superficie | 240 m2 |
| Locali | più di 5 (7 camere da letto), 2 bagni |
Costi
| Prezzo | 590.000 € |
| Prezzo al m2 | 2.458 €/m2 |
Efficienza energetica
| Riscaldamento | Autonomo |
| Classe energetica | E |
| Indice di prestazione energetica (IPE) | 162.5 kWh/m2 anno |
Planimetrie
Indirizzo e mappa
Strada Trasconi Chiancone, Martina Franca
Annuncio senza mappa,
prova a chiedere la posizione all'inserzionista
prova a chiedere la posizione all'inserzionista
Calcolo mutuo
Prezzo di vendita:
Anticipo
20,00
Mutuo
80,00
Tasso: -+
Rata: 1.687 al mese
I risultati sono una stima indicativa basata sui dati inseriti e non costituiscono un’offerta finanziaria.
Inserzionista

My Project Casa
Viale Dei Lecci, 36, Martina Franca
Mostra Telefono
Semeraro Roberto
Mostra Telefono
Chiama
CONTATTA