Casa indipendente Via Corte, Viano
€ 630.000Casa indipendente in vendita
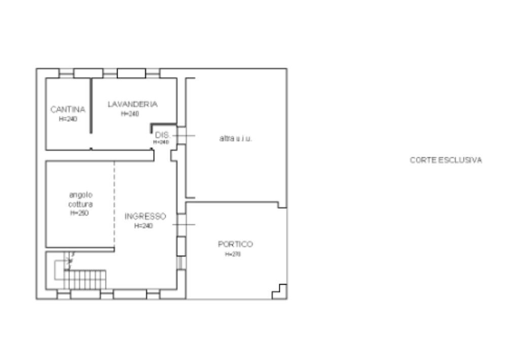
VIANO: villa singola che offre un perfetto equilibrio tra comfort e funzionalità. Questa casa indipendente, distribuita su più livelli, si estende su una superficie di 280 mq e garantisce ampi spazi per ogni esigenza. Costruita nel 2002 e ristrutturata nel 2022, l'abitazione vanta un'elevata efficienza energetica, grazie anche all'impianto a panelli fotovoltaici. Al suo interno, troverete ampi locali, tra cui tre camere da letto e tre bagni, ideali per una famiglia numerosa o per chi ama ospitare. La mansarda offre ulteriore spazio versatile, mentre il terrazzo al primo piano ed il portioco a piano terra,regalano un angolo di relax all'aperto. Il giardino privato, ben curato ed arricchito da una piscina, assicura momenti di svago e relax, garantendo un'elevato livello di privacy. Completa la proprietà un box auto. L'aria condizionata garantisce comfort in ogni stagione, rendendo questa villa un'opportunità unica per chi cerca una residenza accogliente e moderna.
Per ulteriori informazioni e per visitare l'immobile chiama il 351-5965686 oppure scrivi a
Se oltre all’acquisto della tua nuova casa hai bisogno di vendere quella attuale, contattaci. Le nostre valutazioni sono sempre gratuite e senza impegno.
Ricorda inoltre che i nostri consulenti del credito sono sempre a tua disposizione per offrirti una consulenza personalizzata per mutui e finanziamenti su misura per le tue esigenze.
Visita le nostre pagine social:
Facebook: Gruppo Tecnocasa Novellara
Instagram: tecnocasa_novellara
Per ulteriori informazioni e per visitare l'immobile chiama il 351-5965686 oppure scrivi a
Se oltre all’acquisto della tua nuova casa hai bisogno di vendere quella attuale, contattaci. Le nostre valutazioni sono sempre gratuite e senza impegno.
Ricorda inoltre che i nostri consulenti del credito sono sempre a tua disposizione per offrirti una consulenza personalizzata per mutui e finanziamenti su misura per le tue esigenze.
Visita le nostre pagine social:
Facebook: Gruppo Tecnocasa Novellara
Instagram: tecnocasa_novellara
Dati principali
| Riferimento | 61074518 |
| Data annuncio | 13/06/2025 |
| Contratto | Vendita |
| Tipologia | Casa indipendente |
| Superficie | 280 m2 |
| Locali | più di 5 (6 altro), 3 bagni |
| Piano | 1 di 2 totali |
Costi
| Prezzo | 630.000 € |
| Prezzo al m2 | 2.250 €/m2 |
Efficienza energetica
| Anno costruzione | 2002 |
| Riscaldamento | Autonomo |
| Classe energetica | B |
| Indice di prestazione energetica (EP GL, REN) | 6.82 kWh/m3 anno |
| Indice di prestazione energetica (EP GL, NREN) | 109.86 kWh/m3 anno |
Planimetrie
Video
Indirizzo e mappa
Via Corte, Viano
Calcolo mutuo
Prezzo di vendita:
Anticipo
20,00
Mutuo
80,00
Tasso: -+
Rata: 1.802 al mese
I risultati sono una stima indicativa basata sui dati inseriti e non costituiscono un’offerta finanziaria.
Inserzionista
Chiama
CONTATTA

