Quadrilocale Via Rivalta, Volvera
€ 155.000Quadrilocale in vendita
Gerbole di Volvera.
In zona tranquilla, l’appartamento si trova al primo piano di un contesto bifamiliare e, pertanto, non presenta spese di gestione.
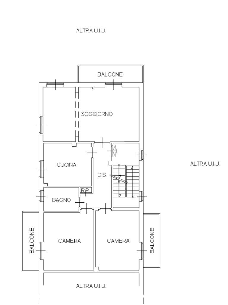
Dall’ingresso si accede all’ampia e luminosa zona giorno composta da salotto living, con accesso diretto su un balcone e cucina abitabile comodamente fruibile. Nel soggiorno è presente una stufa a pellet, ideale per scaldare uniformemente l'immobile durante l’inverno. La zona notte è composta da due spaziose camere da letto, di cui una matrimoniale, entrambe finestrate e con accesso sui balconi. Il bagno è dotato di box doccia fuori misura ed è finestrato.
Il riscaldamento è autonomo e gli infissi sono in pvc con doppio vetro. Nel disimpegno è presente inoltre il condizionatore che funge anche da pompa di calore. La caldaia è a condensazione.
In zona tranquilla, l’appartamento si trova al primo piano di un contesto bifamiliare e, pertanto, non presenta spese di gestione.
Dall’ingresso si accede all’ampia e luminosa zona giorno composta da salotto living, con accesso diretto su un balcone e cucina abitabile comodamente fruibile. Nel soggiorno è presente una stufa a pellet, ideale per scaldare uniformemente l'immobile durante l’inverno. La zona notte è composta da due spaziose camere da letto, di cui una matrimoniale, entrambe finestrate e con accesso sui balconi. Il bagno è dotato di box doccia fuori misura ed è finestrato.
Il riscaldamento è autonomo e gli infissi sono in pvc con doppio vetro. Nel disimpegno è presente inoltre il condizionatore che funge anche da pompa di calore. La caldaia è a condensazione.
Dati principali
| Riferimento | 61072300 |
| Data annuncio | 12/06/2025 |
| Contratto | Vendita |
| Tipologia | Appartamento |
| Superficie | 120 m2 |
| Locali | 4 (4 altro), 1 bagno |
| Piano | 1 di 1 totali |
Costi
| Prezzo | 155.000 € |
| Prezzo al m2 | 1.292 €/m2 |
Efficienza energetica
| Anno costruzione | 1970 |
| Riscaldamento | Autonomo |
| Tipo Alimentazione Riscaldamento | Metano |
| Classe energetica | F |
| Indice di prestazione energetica (EP GL, NREN) | 24993 kWh/m3 anno |
Planimetrie
Video
Indirizzo e mappa
Via Rivalta, Volvera
Calcolo mutuo
Prezzo di vendita:
Anticipo
20,00
Mutuo
80,00
Tasso: -+
Rata: 443 al mese
I risultati sono una stima indicativa basata sui dati inseriti e non costituiscono un’offerta finanziaria.
Inserzionista
Agenzia Tecnorete Studio Volvera Sas
Via Ponsati, 47/A, Volvera
Mostra Telefono
Chiama
CONTATTA

