Trilocale Via Canale, Casalgrande
€ 165.000Trilocale in vendita
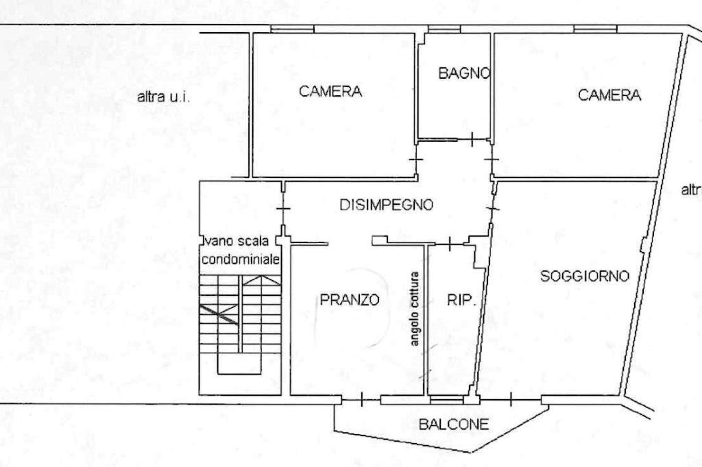
VILLALUNGA: Rif. 35 In zona tranquilla, in palazzina in mattone faccia a vista di otto unità, appartamento al piano secondo, composto da: ingresso, cucina, soggiorno, due ampie camere matrimoniali, bagno, ripostiglio e balcone, Al piano seminterrato cantina e garage, inoltre soffitta al piano quarto. Ristrutturato completamente nel 2015, con aria condizionata e zanzariere. Ampio cortile con posti auto e possibilità di orto. Zona molto comoda a Sassuolo.
Dati principali
| Riferimento | 61071125 |
| Data annuncio | 12/06/2025 |
| Contratto | Vendita |
| Tipologia | Appartamento |
| Superficie | 124 m2 |
| Locali | 3 (3 altro), 1 bagno |
| Piano | 2 di 3 totali |
Costi
| Prezzo | 165.000 € |
| Prezzo al m2 | 1.331 €/m2 |
| Spese condominiali | € 61,00/mese |
Efficienza energetica
| Anno costruzione | 1971 |
| Riscaldamento | Autonomo |
| Tipo Alimentazione Riscaldamento | Metano |
| Classe energetica | G |
| Indice di prestazione energetica (EP GL, REN) | 153 kWh/m3 anno |
| Indice di prestazione energetica (EP GL, NREN) | 239 kWh/m3 anno |
Planimetrie
Indirizzo e mappa
Via Canale, Casalgrande
Calcolo mutuo
Prezzo di vendita:
Anticipo
20,00
Mutuo
80,00
Tasso: -+
Rata: 472 al mese
I risultati sono una stima indicativa basata sui dati inseriti e non costituiscono un’offerta finanziaria.
Inserzionista
Chiama
CONTATTA

