Capannone Frazione Fila, 34, Valdilana
€ 500.000Valdilana Trivero Frazione Fila
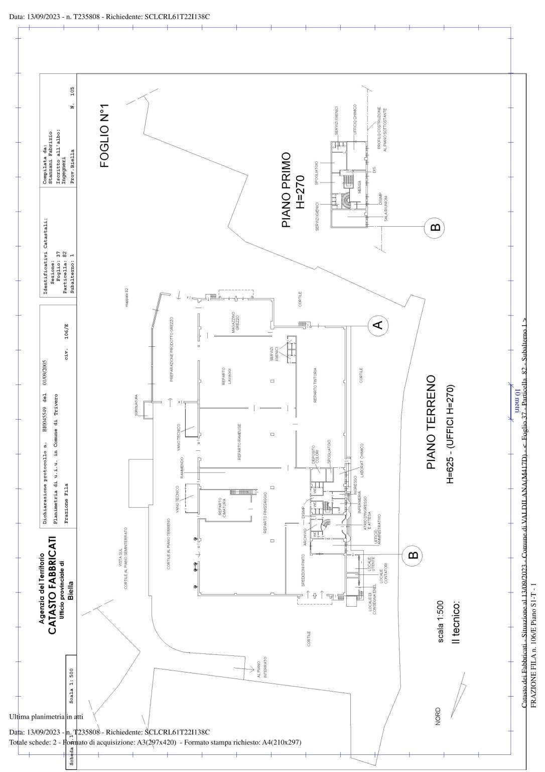
Valdila Trivero Frazione Fila proponiamo in vendita salone industriale D/7 in discreto stato di manutenzione con ampio spazio manovra e terreno circostante. Il piano terreno ha una superficie di mq. 4.000 ca. destinata principalmente ad attività produttiva, con zona uffici, servizi con accessi suddivisi ed indipendenti tra zona amministrativa e di lavorazione e cabina Enel. Il piano primo si compone di sala riunioni, uffici e servizi per il personale ( mensa, spogliatoi e servizi igienici). Il piano seminterrato ha una superficie di mq. 1.300 ca. destinata a magazzino, deposito, officina, zona vasche acqua, centrale idrica, locale caldaia e locale generatori. Lo stabilimento è dotato di allaccio alla rete del gas e l’ intera area risulta recintata, con accessi diretti sia pedonali che carrai. Ampia area esterna adibita a parcheggio pubblico. Libero subito. Prezzo Euro 500.000 PRESTAZIONE ENERGETICA IN CORSO
Dati principali
| Riferimento | ID2733051 |
| Data annuncio | 03/10/2023 |
| Contratto | Vendita |
| Tipologia | Capannone |
| Superficie | 5300 m2 |
| Piano | 2 totali |
| Uso immobile | Commerciale ed Industriale |
Costi
| Prezzo | 500.000 € |
| Prezzo al m2 | 94 €/m2 |
Efficienza energetica
| Riscaldamento | Autonomo |
| Classe energetica | Immobile esente da certificazione energetica |
Planimetrie
Indirizzo e mappa
Frazione Fila, 34, Valdilana
Calcolo mutuo
Prezzo di vendita:
Anticipo
20,00
Mutuo
80,00
Tasso: -+
Rata: 1.430 al mese
I risultati sono una stima indicativa basata sui dati inseriti e non costituiscono un’offerta finanziaria.
Inserzionista
Chiama
CONTATTA


