Monolocale via Ronciglione, Roma
€ 120.000Monocamera a via Ronciglione
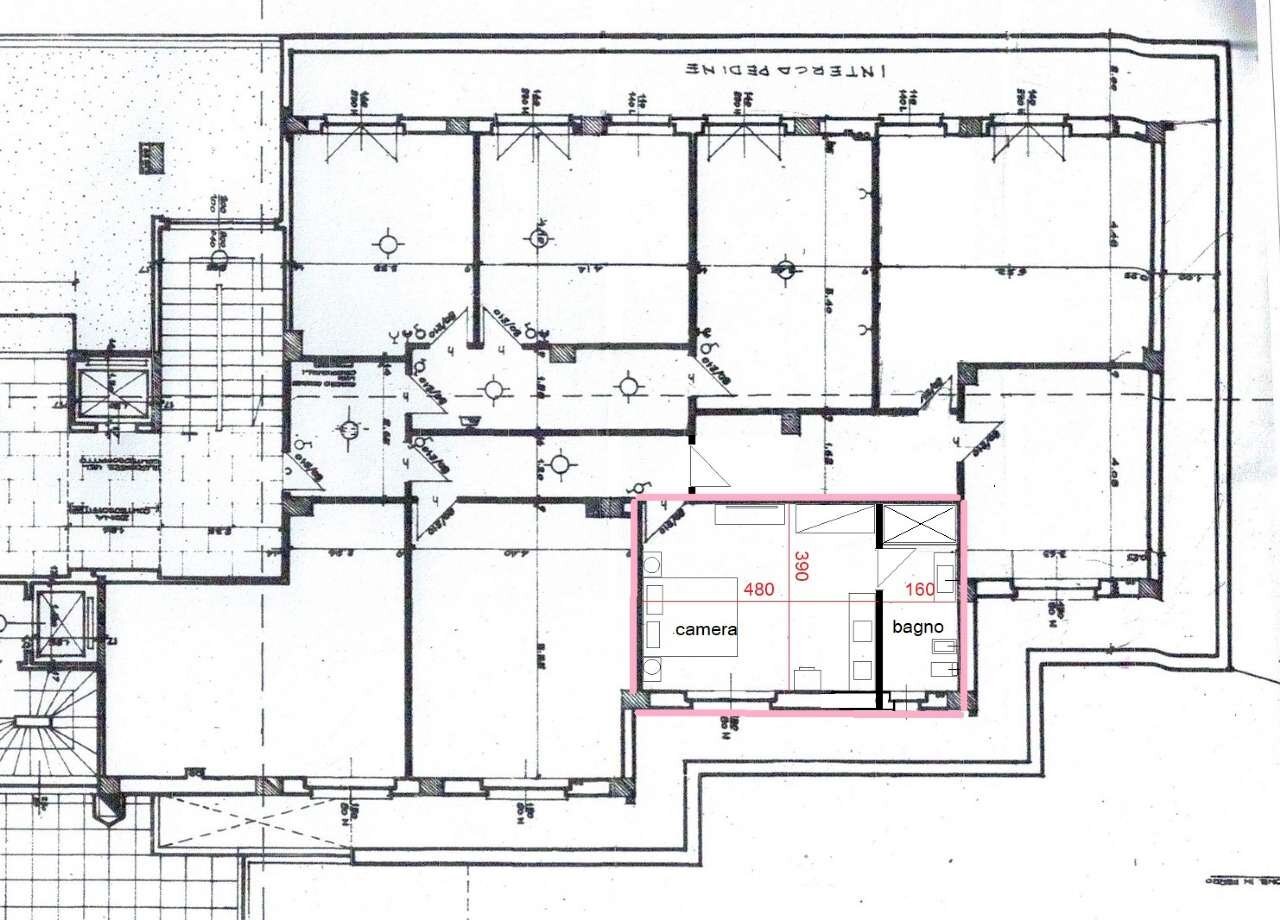
In una delle strade più esclusive ed eleganti di Roma Nord, nel contesto tranquillo e riservato di Via Ronciglione, al piano terra di una signorile palazzina anni '70 con servizio di portineria e doppi ascensori, monolocale C2 con bagno e angolo cottura, riscaldamento centralizzato, ingresso indipendente. L’ immobile , in buone condizioni, gode di un’ottima posizione, con mezzi pubblici, scuole e negozi nelle immediate vicinanze. Locato fino a giugno 2028, a € 7200/annui.
Dati principali
| Riferimento | ID2732034 |
| Data annuncio | 05/12/2022 |
| Contratto | Vendita |
| Tipologia | Appartamento |
| Superficie | 30 m2 |
| Locali | 1 (1 camera da letto), 1 bagno, cucina angolo cottura |
| Piano | 4 totali |
| Tipo di costruzione | Signorile |
| Box auto | Assente |
| Arredamento | Completo |
Caratteristiche
Costi
| Prezzo | 120.000 € |
| Prezzo al m2 | 4.000 €/m2 |
| Spese condominiali | € 20,00/mese |
Efficienza energetica
| Anno costruzione | 1970 |
| Stato | Buono |
| Riscaldamento | Centralizzato |
| Tipo Alimentazione Riscaldamento | Metano |
| Classe energetica | E |
| Indice di prestazione energetica (IPE) | - |
Planimetrie
Indirizzo e mappa
via Ronciglione, Roma
Calcolo mutuo
Prezzo di vendita:
Anticipo
20,00
Mutuo
80,00
Tasso: -+
Rata: 343 al mese
I risultati sono una stima indicativa basata sui dati inseriti e non costituiscono un’offerta finanziaria.
Inserzionista

Sivi Casa
via Prisciano 75, Roma
Mostra Cellulare
Chiama
CONTATTA

