Casa indipendente Via Castelfranco, Valsamoggia (zona San Lazzaro)
€ 385.000Casa indipendente in vendita
A Bazzano, nel comune di Valsamoggia, si propone in vendita una casa indipendente, costruita nel 1881 e ristrutturata nel 2017.
Questa proprietà si sviluppa su più livelli con locali spaziosi, ideali per chi cerca ampi spazi abitativi.
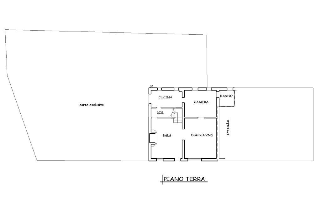
PIANO TERRA: ingresso, soggiorno, sala da pranzo, cucina con tinello, bagno e cortile privato recintato di circa 380 mq; PRIMO PIANO: disimpegno, ripostiglio, balcone, tre camere da letto matrimoniali e bagno.
Inoltre, l'immobile include un magazzino/deposito su due livelli con tetto già ristrutturato, che offre la possibilità di essere trasformato in unità abitative, rendendo questa proprietà un'opportunità interessante per chi desidera investire o ampliare lo spazio abitativo.
Completa la proprietà un' ulteriore area cortiliva privata di circa 1.000,00 mq.
Altro punto di forza è rappresentato dall' indipendenza che questa casa offre, permettendo di vivere in tranquillità e privacy.
La posizione strategica consente di godere di tutti i servizi essenziali a portata di mano.
Fissa un appuntamento. Chiama in ufficio 051.830466 oppure via mail bo2c4
Questa proprietà si sviluppa su più livelli con locali spaziosi, ideali per chi cerca ampi spazi abitativi.
PIANO TERRA: ingresso, soggiorno, sala da pranzo, cucina con tinello, bagno e cortile privato recintato di circa 380 mq; PRIMO PIANO: disimpegno, ripostiglio, balcone, tre camere da letto matrimoniali e bagno.
Inoltre, l'immobile include un magazzino/deposito su due livelli con tetto già ristrutturato, che offre la possibilità di essere trasformato in unità abitative, rendendo questa proprietà un'opportunità interessante per chi desidera investire o ampliare lo spazio abitativo.
Completa la proprietà un' ulteriore area cortiliva privata di circa 1.000,00 mq.
Altro punto di forza è rappresentato dall' indipendenza che questa casa offre, permettendo di vivere in tranquillità e privacy.
La posizione strategica consente di godere di tutti i servizi essenziali a portata di mano.
Fissa un appuntamento. Chiama in ufficio 051.830466 oppure via mail bo2c4
Dati principali
| Riferimento | 61068796 |
| Data annuncio | 06/06/2025 |
| Contratto | Vendita |
| Tipologia | Casa indipendente |
| Superficie | 409 m2 |
| Locali | 5 (5 altro), 2 bagni |
| Piano | 2 di 2 totali |
Costi
| Prezzo | 385.000 € |
| Prezzo al m2 | 941 €/m2 |
Efficienza energetica
| Anno costruzione | 1881 |
| Riscaldamento | Autonomo |
| Tipo Alimentazione Riscaldamento | Metano |
| Classe energetica | F |
| Indice di prestazione energetica (EP GL, NREN) | 200.5 kWh/m3 anno |
Planimetrie
Video
Indirizzo e mappa
Via Castelfranco, Valsamoggia - quartiere San Lazzaro
Calcolo mutuo
Prezzo di vendita:
Anticipo
20,00
Mutuo
80,00
Tasso: -+
Rata: 1.101 al mese
I risultati sono una stima indicativa basata sui dati inseriti e non costituiscono un’offerta finanziaria.
Inserzionista
Chiama
CONTATTA

