Ufficio Corso Cuneo 15, Venaria Reale
€ 5.400 al mese
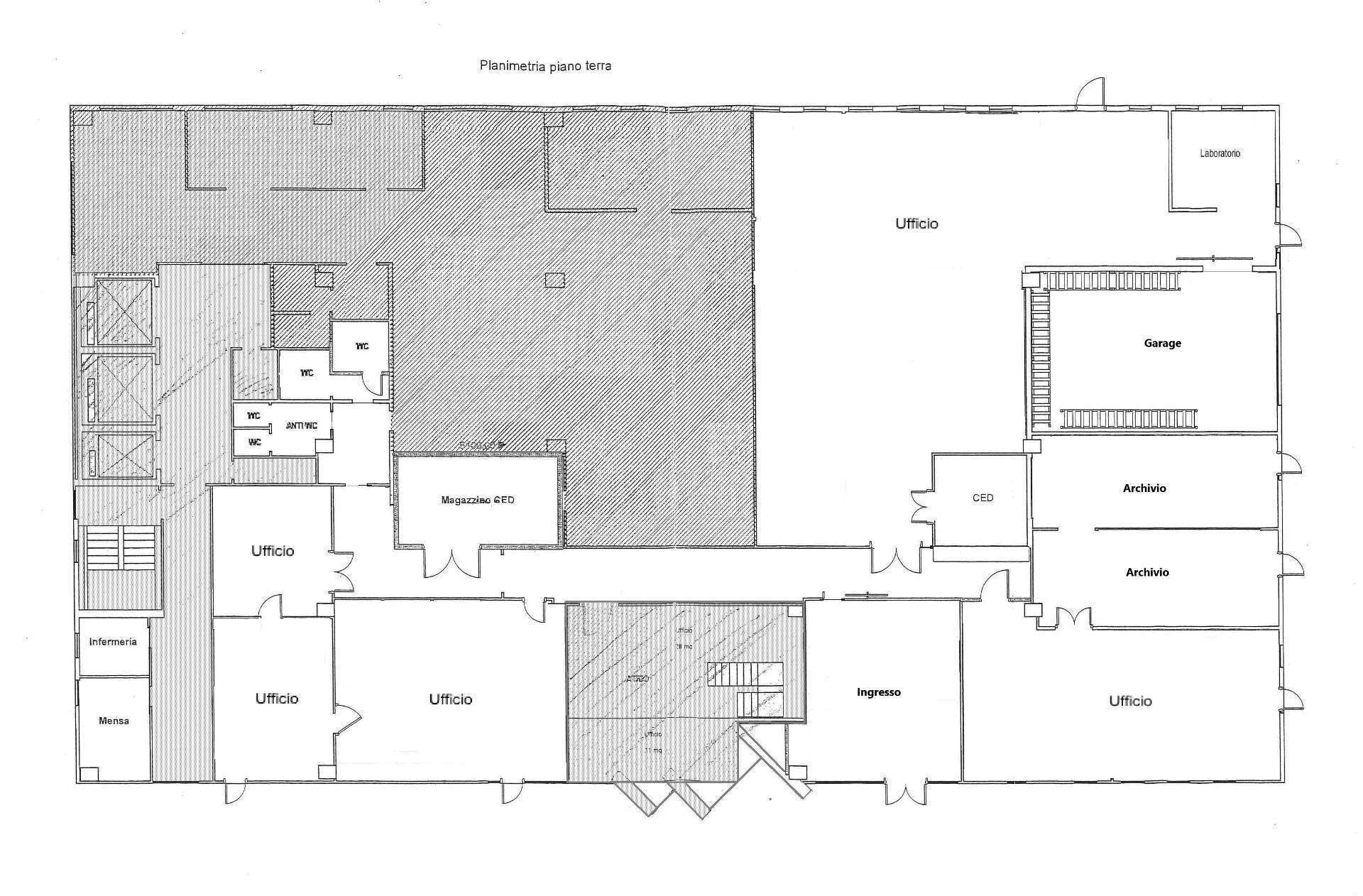
POSIZIONE - L'ufficio si trova in zona Juventus Stadium a Venaria Reale ed è attualmente disponibile per la locazione. Si trova al piano terra con ingresso indipendente in facciata di un edificio con un totale di 3 piani, in ottimo stato di conservazione. Dispone di un'ampia superficie totale di circa 900 metri quadrati, suddivisi in 12 locali e 4 wc. Le spese condominiali ammontano a . 21.000 annue (salvo conguaglio) e comprendono riscaldamento e raffreddamento, oltre ai servizi di manutenzione e pulizia degli spazi comuni. La struttura è dotata di un sistema di allarme per garantire la sicurezza degli occupanti. Sono inoltre disponibili, all'interno della proprietà, 10 posti auto scoperti per il parcheggio dei dipendenti e dei clienti. Il riscaldamento è centralizzato e funziona a metano, garantendo un ottimo comfort termico per tutto l'anno. Ottima opportunità per un'azienda che cerca un ampio e funzionale spazio di lavoro in una zona strategica e ben collegata, con ampi spazi esterni e tutti i servizi necessari per garantire un ambiente di lavoro efficiente e confortevole.
Dati principali
| Riferimento | 115650 |
| Data annuncio | 05/06/2025 |
| Contratto | Affitto |
| Tipologia | Ufficio |
| Superficie | 900 m2 |
| Locali | più di 5 (12 altro), 4 bagni |
| Piano | Terra, 3 totali |
| Occupato | Occupato da Proprietario |
| Numero posti auto | 10 |
Caratteristiche
Costi
| Prezzo | 5.400 € al mese |
Efficienza energetica
| Stato | Ottimo |
| Riscaldamento | Centralizzato |
| Tipo Impianto Di Riscaldamento | ad aria |
| Classe energetica | D |
| Indice di prestazione energetica (IPE) | 219 kWh/m2 anno |
Planimetrie
Indirizzo e mappa
Corso Cuneo
15, Venaria Reale
Annuncio senza mappa,
prova a chiedere la posizione all'inserzionista
prova a chiedere la posizione all'inserzionista
Inserzionista

HASTON & ASTON S.N.C.
Via Pietro Micca, 21, Torino
Mostra Telefono
Chiama
CONTATTA

