Villa via San Michele, Rapallo
€ 2.000.000PROGETTO RESIDENZIALE IN VENDITA A SAN MICHELE
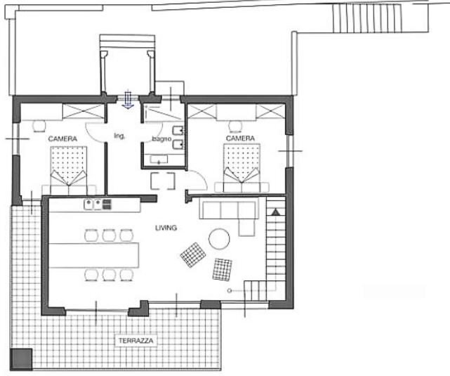
Stato: Disponibile in ESCLUSIVA Zona: San Michele Superficie Interna: 147 m² Superficie Esterna: 1.314 m² Camere da letto: tre Bagni: due Questo progetto residenziale, progettato da un architetto di fama, attende un investitore determinato a dare vita a una casa di lusso in uno degli angoli più prestigiosi della Riviera Ligure. Immersa nell’incantevole collina di San Michele di Pagana, tra Rapallo e Santa Margherita Ligure, la proprietà offre un raro equilibrio tra esclusività, tranquillità e comodità. Per €4.000.000 offriamo l’intera villa, mentre per €2.000.000 vendiamo solo il piano terra. Il piano terra include tre camere da letto, di cui una con cabina armadio, una moderna cucina a vista, un ampio soggiorno, due bagni e una lavanderia. Dispone inoltre di accesso diretto a una terrazza privata, piscina, locale tecnico e giardino paesaggistico. A completare il tutto, la proprietà dispone di ampi spazi di parcheggio: cinque garage doppi, un garage triplo e dodici posti auto esterni. Circondata da eleganti residenze e da una rigogliosa vegetazione, la villa offre totale privacy, pur rimanendo a pochi minuti dai vivaci centri circostanti. Questo appartamento in villa rappresenta un capolavoro architettonico e un investimento davvero straordinario. CARATTERISTICHE INTERNE Condizioni: Progetto residenziale Arredamento: no Riscaldamento/Raffrescamento: riscaldamento autonomo e aria condizionata Spazi Esterni: balcone, terrazze, terrazza panoramica, giardino e piscina EDIFICIO E SERVIZI Ascensore: sì Posto auto: sì Dimensioni parcheggio: dodici posti auto Cantina/Ripostiglio: sì POSIZIONE E ACCESSIBILITÀ (IN AUTO) Stazione ferroviaria: 5 minuti Supermercato: 2 minuti Spiaggia: 5 minuti PREZZO: €2.000.000 NOTE SPECIALI: Abbiamo brochure e tutta la documentazione disponibile su richiesta. L’intera villa può essere acquistata a €4.000.000. Dopo aver visionato tutte le foto, i video, i dettagli scritti, i prezzi, il tour virtuale e le planimetrie, saremo felici di organizzare una visita privata. Scrivici qui e ti invieremo tutte le info/disponibilità. Seguici su Instagram: @portofinoimmobiliare
Dati principali
| Riferimento | ID2724280 |
| Data annuncio | 02/06/2025 |
| Contratto | Vendita |
| Tipologia | Villa |
| Superficie | 1461 m2 |
| Locali | più di 5 (3 camere da letto, 3 altro), 2 bagni, cucina abitabile |
| Piano | 3 totali |
| Tipo di costruzione | Lusso |
| Numero di terrazzi | 1 |
| Numero di balconi | 1 |
| Box auto | Doppio |
| Numero posti auto | 12 |
| Arredamento | Assente |
Caratteristiche
Costi
| Prezzo | 2.000.000 € |
| Prezzo al m2 | 1.369 €/m2 |
Efficienza energetica
| Anno costruzione | 2025 |
| Stato | Nuovo |
| Riscaldamento | Autonomo |
| Classe energetica | A3 |
Planimetrie
Indirizzo e mappa
via San Michele, Rapallo
Calcolo mutuo
Prezzo di vendita:
Anticipo
20,00
Mutuo
80,00
Tasso: -+
Rata: 5.720 al mese
I risultati sono una stima indicativa basata sui dati inseriti e non costituiscono un’offerta finanziaria.
Inserzionista

Portofino Immobiliare
Via Pietrafredda 32/1, Rapallo
Mostra Cellulare
Chiama
CONTATTA

