Quadrilocale Via S. Rocco, San Benigno Canavese
€ 155.000Quadrilocale in vendita
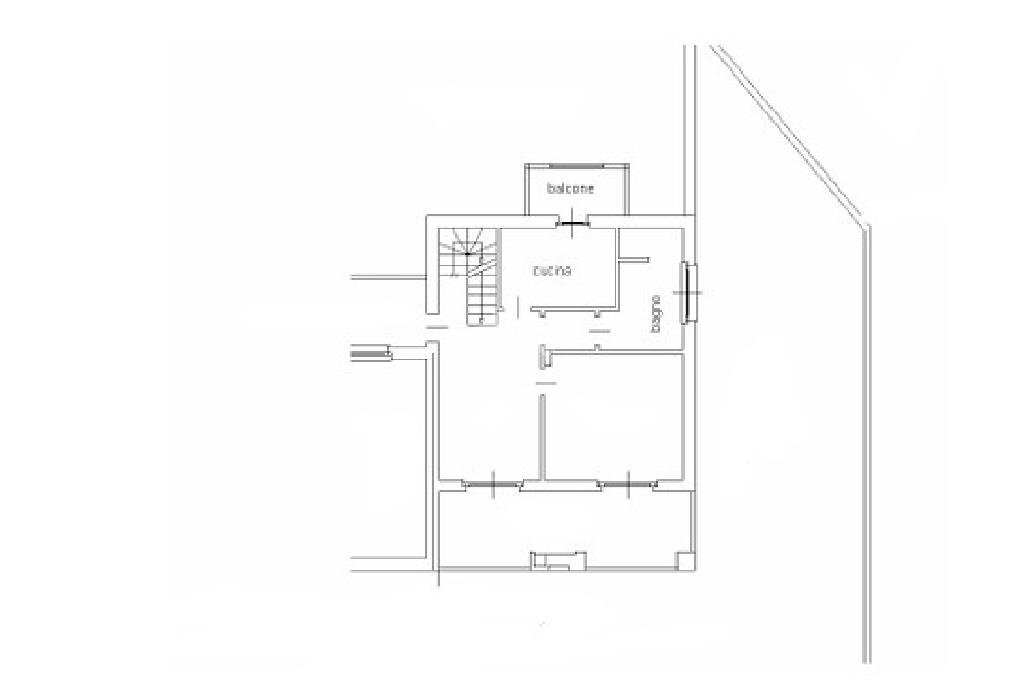
Nel comune di San Benigno Canavese, appartamento situato all'ultimo piano di un complesso residenziale dotato di ascensore. L'immobile è di costruzione del 2005 disposto su due livelli. L'ingresso è sulla zona giorno, composta da cucinotta con balcone e ampio soggiorno con accesso al terrazzo coperto, reso luminoso grazie alle vetrate con zanzariere, recentemente installate. Il bagno è con doccia e finestra. Al piano superiore si sviluppa la zona notte, composta da due locali adibiti a camere da letto e un locale lavanderia dotato di velux. Gli infissi sono con il doppio vetro, accessoriati di zanzariere, è presente il videocitofono e i climatizzatori. Di proprietà il box auto doppio ed il posto auto.
Dati principali
| Riferimento | 61067635 |
| Data annuncio | 01/06/2025 |
| Contratto | Vendita |
| Tipologia | Appartamento |
| Superficie | 120 m2 |
| Locali | 4 (4 altro), 2 bagni |
| Piano | 2 di 3 totali |
Costi
| Prezzo | 155.000 € |
| Prezzo al m2 | 1.292 €/m2 |
| Spese condominiali | € 250,00/mese |
Efficienza energetica
| Anno costruzione | 2005 |
| Riscaldamento | Centralizzato |
| Tipo Alimentazione Riscaldamento | Metano |
| Classe energetica | D |
| Indice di prestazione energetica (EP GL, NREN) | 98.64 kWh/m3 anno |
Planimetrie
Video
Indirizzo e mappa
Via S. Rocco, San Benigno Canavese
Calcolo mutuo
Prezzo di vendita:
Anticipo
20,00
Mutuo
80,00
Tasso: -+
Rata: 443 al mese
I risultati sono una stima indicativa basata sui dati inseriti e non costituiscono un’offerta finanziaria.
Inserzionista
Chiama
CONTATTA

