Quadrilocale via Vittorio Veneto, Chiavari
€ 485.000Via Vittorio Veneto - Appartamento con Terrazzo
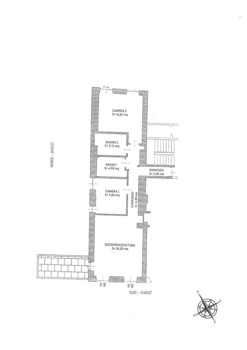
Chiavari, Via Vittorio Veneto, nel cuore del centro storico cittadino, in posizione strategica e tranquilla, l'immobiliare Progetto31 propone in vendita appartamento ubicato in palazzo totalmente ricostruito negli anni 90. L'immobile, posto ad un piano alto e servito da preziosissimo ascensore, allo stato attuale è così distribuito: Ingresso, soggiorno open con angolo cottura a vista, biservizi, due camere da letto, introvabile terrazzo al piano con vista sui tetti della città. Data la conformazione, l'immobile si presta ad ampie possibilità di redistribuzione interna. Riscaldamento autonomo con esigue spese condominiali. Soluzione ideale sia come prima che seconda casa nonché come investimento.
Dati principali
| Riferimento | Via Vittorio Veneto |
| Data annuncio | 30/05/2025 |
| Contratto | Vendita |
| Tipologia | Appartamento |
| Superficie | 97 m2 |
| Locali | 4 (2 camere da letto, 2 altro), 2 bagni, cucina angolo cottura |
| Piano | 4 di 5 totali |
| Tipo di costruzione | Signorile |
| Numero di terrazzi | 1 |
| Box auto | Assente |
| Arredamento | Assente |
Caratteristiche
Costi
| Prezzo | 485.000 € |
| Prezzo al m2 | 5.000 €/m2 |
| Spese Riscaldamento | € 1,00/anno |
| Spese condominiali | € 40,00/mese |
Efficienza energetica
| Anno costruzione | 1990 |
| Riscaldamento | Autonomo |
| Tipo Alimentazione Riscaldamento | Metano |
| Classe energetica | F |
| Indice di prestazione energetica (IPE) | 11.58 kWh/m2 anno |
Planimetrie
Indirizzo e mappa
via Vittorio Veneto, Chiavari
Calcolo mutuo
Prezzo di vendita:
Anticipo
20,00
Mutuo
80,00
Tasso: -+
Rata: 1.387 al mese
I risultati sono una stima indicativa basata sui dati inseriti e non costituiscono un’offerta finanziaria.
Inserzionista

PROGETTO 31
Piazza Nostra Signora dell'orto 31, Chiavari
Mostra Telefono
Chiama
CONTATTA

