Appartamento Corso D' Augusto, Rimini
€ 320.0005 locali in vendita
CENTRO STORICO:
nel cuore del centro storico di Rimini, all'interno di una palazzina storica ben conservata e di grande fascino, proponiamo in vendita un ampio appartamento disposto su due livelli, al secondo e terzo piano, con ambienti spaziosi, terrazzo abitabile e la possibilità di frazionamento in due unità distinte.
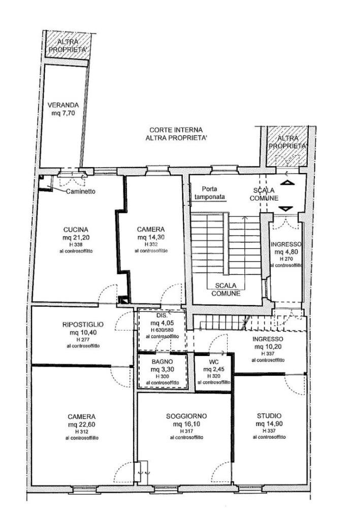
L'ingresso principale si apre su un accogliente disimpegno che conduce a uno studio luminoso, perfetto come zona lavoro o salottino riservato. La zona giorno è composta da un ampio soggiorno, ideale per momenti conviviali, e da una cucina abitabile con accesso a un balcone verandato, che offre uno spazio aggiuntivo sfruttabile tutto l’anno.
La zona notte comprende due camere da letto, entrambe spaziose, un ripostiglio comodo per l’organizzazione della casa o da utilizzare come cabina armadio e due bagni.
Una scala interna conduce al terzo piano, dove si trova un'ulteriore camera matrimoniale con affaccio su un grande terrazzo abitabile, riservato e panoramico, ideale per godersi momenti di relax all’aperto.
L’immobile si presta a diverse soluzioni abitative, è infatti possibile realizzare due appartamenti distinti. Questa versatilità lo rende adatto sia a chi cerca una grande residenza principale, sia a chi desidera un’abitazione con unità da destinare a locazione turistica, studio professionale o spazio per ospiti.
La posizione è straordinaria, a pochi passi dai principali monumenti e dai servizi del centro, ma al tempo stesso tranquilla e riservata. L’immobile mantiene il fascino storico dell’architettura originaria, con elementi autentici e dettagli d’epoca, pur offrendo ottime possibilità di personalizzazione e ammodernamento.
Una soluzione unica nel suo genere, che unisce storia, spazio, potenziale e vivibilità, nel cuore pulsante di Rimini
nel cuore del centro storico di Rimini, all'interno di una palazzina storica ben conservata e di grande fascino, proponiamo in vendita un ampio appartamento disposto su due livelli, al secondo e terzo piano, con ambienti spaziosi, terrazzo abitabile e la possibilità di frazionamento in due unità distinte.
L'ingresso principale si apre su un accogliente disimpegno che conduce a uno studio luminoso, perfetto come zona lavoro o salottino riservato. La zona giorno è composta da un ampio soggiorno, ideale per momenti conviviali, e da una cucina abitabile con accesso a un balcone verandato, che offre uno spazio aggiuntivo sfruttabile tutto l’anno.
La zona notte comprende due camere da letto, entrambe spaziose, un ripostiglio comodo per l’organizzazione della casa o da utilizzare come cabina armadio e due bagni.
Una scala interna conduce al terzo piano, dove si trova un'ulteriore camera matrimoniale con affaccio su un grande terrazzo abitabile, riservato e panoramico, ideale per godersi momenti di relax all’aperto.
L’immobile si presta a diverse soluzioni abitative, è infatti possibile realizzare due appartamenti distinti. Questa versatilità lo rende adatto sia a chi cerca una grande residenza principale, sia a chi desidera un’abitazione con unità da destinare a locazione turistica, studio professionale o spazio per ospiti.
La posizione è straordinaria, a pochi passi dai principali monumenti e dai servizi del centro, ma al tempo stesso tranquilla e riservata. L’immobile mantiene il fascino storico dell’architettura originaria, con elementi autentici e dettagli d’epoca, pur offrendo ottime possibilità di personalizzazione e ammodernamento.
Una soluzione unica nel suo genere, che unisce storia, spazio, potenziale e vivibilità, nel cuore pulsante di Rimini
Dati principali
| Riferimento | 61065420 |
| Data annuncio | 31/05/2025 |
| Contratto | Vendita |
| Tipologia | Appartamento |
| Superficie | 190 m2 |
| Locali | 5 (5 altro), 2 bagni |
| Piano | 2 di 3 totali |
Costi
| Prezzo | 320.000 € |
| Prezzo al m2 | 1.684 €/m2 |
| Spese condominiali | € 42,00/mese |
Efficienza energetica
| Anno costruzione | 1950 |
| Riscaldamento | Autonomo |
| Tipo Alimentazione Riscaldamento | Metano |
| Classe energetica | G |
| Indice di prestazione energetica (EP GL, NREN) | 252.02 kWh/m3 anno |
Planimetrie
Video
Indirizzo e mappa
Corso D' Augusto, Rimini
Calcolo mutuo
Prezzo di vendita:
Anticipo
20,00
Mutuo
80,00
Tasso: -+
Rata: 915 al mese
I risultati sono una stima indicativa basata sui dati inseriti e non costituiscono un’offerta finanziaria.
Inserzionista
Chiama
CONTATTA

