Trilocale Roncadelle
€ 279.000Roncadelle nuovi trilocali e quadrilocali con box
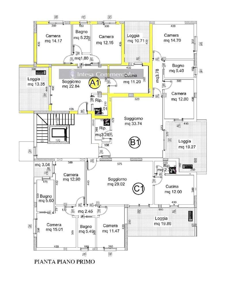
Roncadelle (BS) in nuova palazzina di 9 unita' con ascensore (costruzione antisismica, fabbricato coibentato, impianto fotovoltaico 1,9 Kwatt) nuovi trilocali e quadrilocali di varie caratteristiche Soluzione al piano primo Tipologia A1 : Trilocale composto da soggiorno con loggia di 13 mq, cucina abitabile con loggia di mq 11, 2 camere, bagno, ripostiglio, disimpegno, box 279.000 possibilita' cantina e posti auto Consegna giugno 2026; finiture personalizzabili; termoautonomi, climatizzati; classe energetica A/4; Detrazioni fiscali sisma bonus Intesa Commerciale 030-2423333 Cod. B990 A1 Intesa Commerciale , opera da decenni sul mercato immobiliare Bresciano e, forte delle migliaia di affari conclusi senza alcun contenzioso, rappresenta una soluzione solida e professionale a qualsiasi problema di acquisto, vendita immobiliare in città e provincia. La visione strategica del business, da sempre prerogativa del management, permette ad Intesa Commerciale di operare in perfetto equilibrio fra dinamismo ed oculatezza nelle valutazioni: sono queste le caratteristiche che hanno permesso all'agenzia di eccellere nel settore dell' intermediazione e della compravendita immobiliare . Intesa Commerciale è sinonimo di serietà e professionalità nell'offerta di un servizio completo e personalizzato, a cura di personale qualificato che garantisce la migliore assistenza dalle fasi preliminari di consulenza, ricerca e mediazione, alle fasi finali di stipula del contratto e al rogito notarile.
Dati principali
| Riferimento | B990 A1 |
| Data annuncio | 27/05/2025 |
| Contratto | Vendita |
| Tipologia | Appartamento |
| Superficie | 105 m2 |
| Locali | 3 (2 camere da letto, 1 altro), 1 bagno, cucina abitabile |
| Piano | 1 di 3 totali |
| Tipo di costruzione | Signorile |
| Numero di terrazzi | 2 |
| Box auto | Singolo |
| Arredamento | Assente |
Caratteristiche
Costi
| Prezzo | 279.000 € |
| Prezzo al m2 | 2.657 €/m2 |
Efficienza energetica
| Anno costruzione | 2025 |
| Stato | Nuovo |
| Riscaldamento | Autonomo |
| Classe energetica | A4 |
Planimetrie
Indirizzo e mappa
Roncadelle
Annuncio senza mappa,
prova a chiedere la posizione all'inserzionista
prova a chiedere la posizione all'inserzionista
Calcolo mutuo
Prezzo di vendita:
Anticipo
20,00
Mutuo
80,00
Tasso: -+
Rata: 798 al mese
I risultati sono una stima indicativa basata sui dati inseriti e non costituiscono un’offerta finanziaria.
Inserzionista

Intesa Commerciale
Via Cefalonia 55, Brescia
Mostra Telefono
Chiama
CONTATTA

