Casa indipendente Frazione Forotondo, Fabbrica Curone
€ 25.000Casa indipendente in vendita
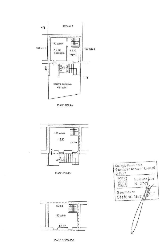
La casa è in piccola e graziosa frazione di Fabbrica Curone, in posizione tranquilla a pochi minuti da San Sebastiano Curone e a una ventina di minuti da Caldirola. La proprietà è semindipendente ed è stata completamente ristrutturata da una quindicina di anni. L'abitazione è disposta su più livelli: l'ingresso è tramite il cortiletto con piccolo angolo giardino. La cantina completa della caldaia e il bagno finestrato con la doccia sono al piano terra. La cucina è al primo piano, è abitabile con doppia finestra e completa di camino. Al secondo e ultimo piano vi è la camera da letto matrimoniale mansardata. La scala di accesso è sia interna sia esterna tramite un grazioso terrazzino. L'immobile ha il riscaldamento autonomo con gas metano e gli infissi sono in legno doppio vetro. La proprietà è ideale come casa vacanze, per chi è alla ricerca di un luogo tranquillo e fresco nei periodi estivi.
Dati principali
| Riferimento | 61054945 |
| Data annuncio | 29/05/2025 |
| Contratto | Vendita |
| Tipologia | Casa indipendente |
| Superficie | 77 m2 |
| Locali | 2 (2 altro), 1 bagno |
| Piano | 3 di 3 totali |
Costi
| Prezzo | 25.000 € |
| Prezzo al m2 | 325 €/m2 |
Efficienza energetica
| Anno costruzione | 1900 |
| Riscaldamento | Autonomo |
| Tipo Alimentazione Riscaldamento | Metano |
| Classe energetica | G |
| Indice di prestazione energetica (EP GL, REN) | 1.32 kWh/m3 anno |
| Indice di prestazione energetica (EP GL, NREN) | 278.09 kWh/m3 anno |
Planimetrie
Indirizzo e mappa
Frazione Forotondo, Fabbrica Curone
Calcolo mutuo
Prezzo di vendita:
Anticipo
20,00
Mutuo
80,00
Tasso: -+
Rata: 71 al mese
I risultati sono una stima indicativa basata sui dati inseriti e non costituiscono un’offerta finanziaria.
Inserzionista
Chiama
CONTATTA

