Villa Unifamiliare San Lazzaro di Savena
€ 860.000
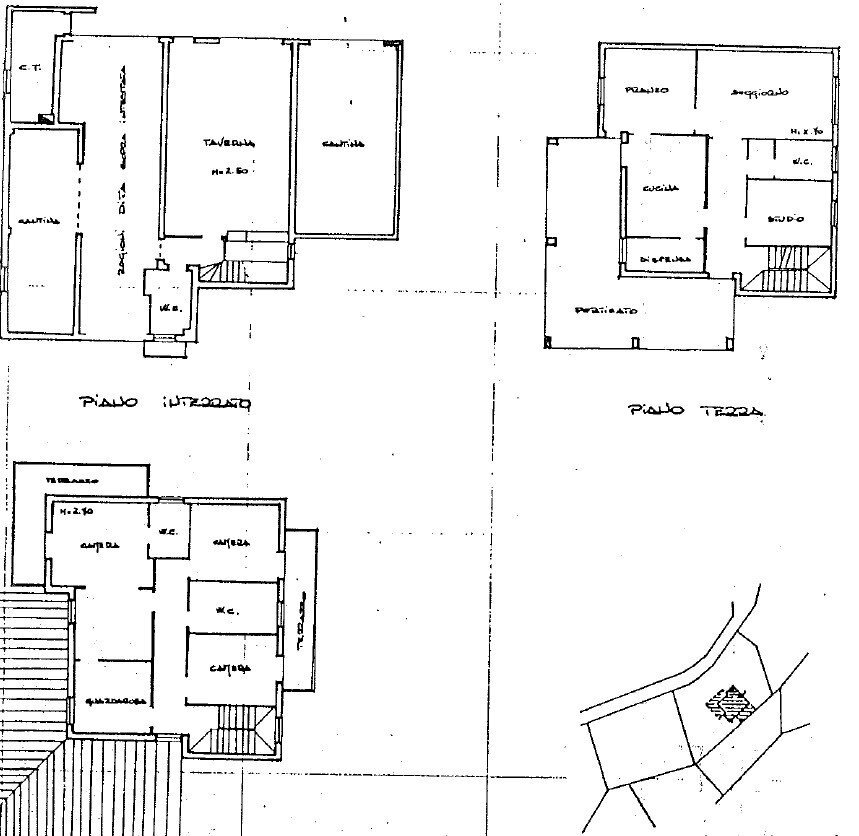
SAN LAZZARO DI SAVENA- Zona Martiri di Pizzocalvo- Proponiamo VILLA UNIFAMILIARE costruita negli anni ’90 che si sviluppa su tre piani di cui due abitativi , per un totale di 360 mq, ed è completamente da ristrutturare, offrendo l’opportunità di personalizzare gli spazi secondo le proprie esigenze.Completa la proprietà un ampio giardino privato Ape "G", Ep 248,91. Rif. SOF 105
Dati principali
| Riferimento | SOF048 |
| Data annuncio | 22/01/2025 |
| Contratto | Vendita |
| Tipologia | Villa Unifamiliare |
| Superficie | 350 m2 |
| Locali | 3 bagni |
Costi
| Prezzo | 860.000 € |
| Prezzo al m2 | 2.457 €/m2 |
Efficienza energetica
| Classe energetica | Immobile esente da certificazione energetica |
Indirizzo e mappa
San Lazzaro di Savena
Calcolo mutuo
Prezzo di vendita:
Anticipo
20,00
Mutuo
80,00
Tasso: -+
Rata: 2.460 al mese
I risultati sono una stima indicativa basata sui dati inseriti e non costituiscono un’offerta finanziaria.
Inserzionista

La Soffitta Studio immobiliare
Via A.Costa 67/b, Bologna
Mostra Telefono
Chiama
CONTATTA

