Casa indipendente Via delle Sezioni, Massarosa
€ 190.000
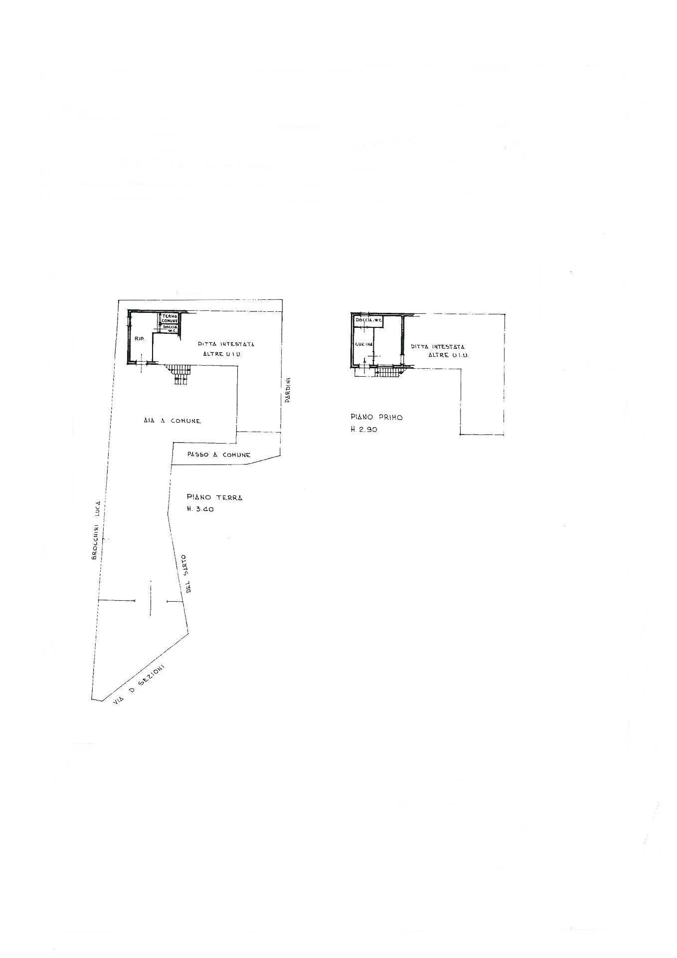
Immobiliare StudioZero24 propone in vendita a Massarosa, nella zona di Bargecchia, con splendida vista panoramica, fabbricato di ampia metratura attualmente suddiviso in 3 unità immobiliari libere su 4 lati così composte : nella 1a unità sita al piano terra abbiamo sala, cucina abitabile con camino, 2 camere matrimoniali e bagno. Nella 2a unità, sempre collocata al piano terra, abbiamo invece : cucina-tinello, 2 camere e bagno. Nella 3a unità, sita invece al 1° piano, abbiamo cucina-tinello, camera e bagno. La proprietà si completa di ampio giardino su 4 lati con posti auto e ripostiglio. Ottimo affare ! La nostra missione è offrire unesperienza personalizzata e di qualità per ogni cliente, accompagnandolo in tutte le fasi della compravendita immobiliare. Conosciamo profondamente il territorio e ci impegniamo a comprendere le esigenze uniche di chi si rivolge a noi, lavorando con trasparenza e passione per creare un rapporto di fiducia duraturo. Puntiamo a migliorare costantemente i nostri servizi per essere un punto di riferimento locale affidabile e competente.
Dati principali
| Riferimento | 83101 |
| Data annuncio | 29/05/2025 |
| Contratto | Vendita |
| Tipologia | Casa indipendente |
| Superficie | 200 m2 |
| Locali | più di 5 (5 camere da letto, 1 altro), 3 bagni, cucina abitabile |
| Piano | Intero edificio |
| Tipo di costruzione | Popolare |
| Occupato | Libero |
| Box auto | Singolo |
| Numero posti auto | 1 |
| Arredamento | Parziale |
Caratteristiche
Costi
| Prezzo | 190.000 € |
| Prezzo al m2 | 950 €/m2 |
Efficienza energetica
| Stato | Buono |
| Riscaldamento | Autonomo |
| Classe energetica | G |
| Indice di prestazione energetica (IPE) | 150 kWh/m2 anno |
Planimetrie
Indirizzo e mappa
Via delle Sezioni, Massarosa
Annuncio senza mappa,
prova a chiedere la posizione all'inserzionista
prova a chiedere la posizione all'inserzionista
Calcolo mutuo
Prezzo di vendita:
Anticipo
20,00
Mutuo
80,00
Tasso: -+
Rata: 543 al mese
I risultati sono una stima indicativa basata sui dati inseriti e non costituiscono un’offerta finanziaria.
Inserzionista

Studiozero24 Viareggio
Corso Garibaldi 92, Viareggio
Mostra Telefono
Mostra Cellulare
Chiama
CONTATTA

