Casa semi indipendente Via Falcinello, Sarzana
€ 339.000Casa semindipendente in vendita
Sarzana - proponiamo semindipendente su tre livelli in zona defilata dal traffico, dotata di garage e posto auto privato.
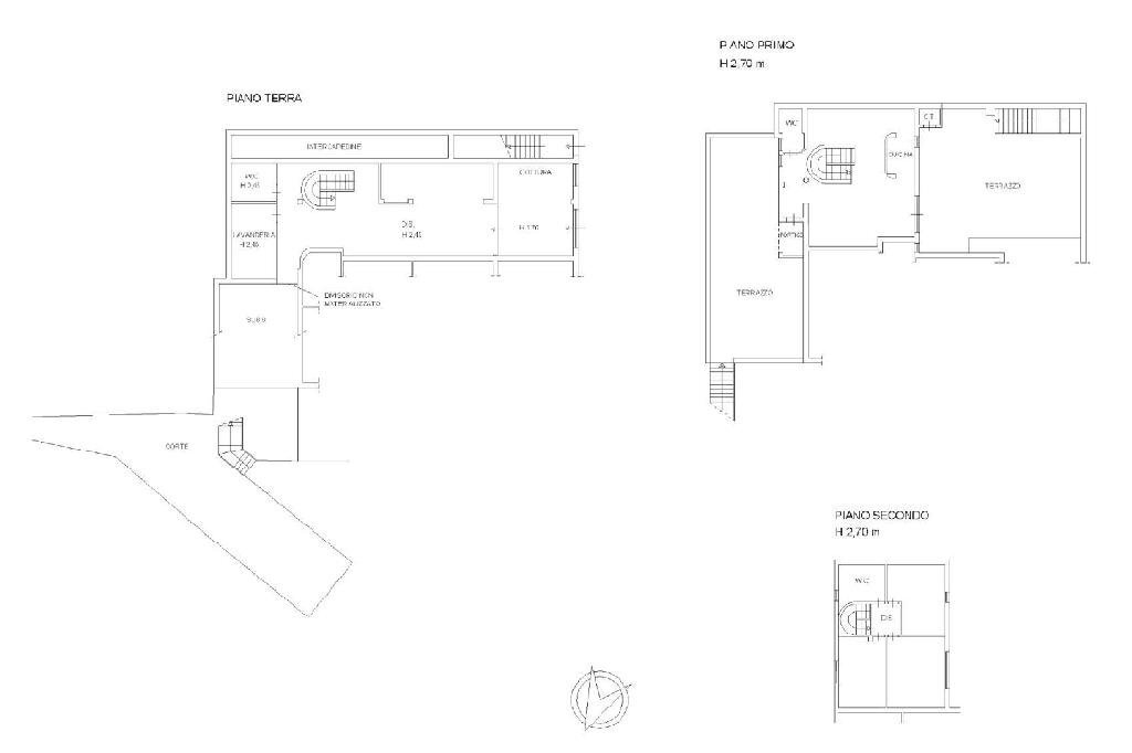
L'ingresso dell'immobile è posto su un'ampia terrazza.
Dal'ingresso si ha un corridoio che ci porta al primo dei tre bagni, all'ampio open-space e all'altra spaziosa terrazza. Proseguendo tramite scale interne si può accedere al piano superiore e a quello inferiore dell'immbile.
Al piano superiore troviamo la zona notte composta da due camere matrimoniali, una cameretta e un bagno finestrato con vasca idromassaggio.
Al piano inferiore troviamo un ampio disempegno che ci porta alla zona giorno, caratterizzata da un luminoso open-space, un bagno cieco con box doccia, una lavanderia e si ha l'accesso diretto al garage.
Il riscaldamento è autonomo e non ci sono spese condominiali.
L'ingresso dell'immobile è posto su un'ampia terrazza.
Dal'ingresso si ha un corridoio che ci porta al primo dei tre bagni, all'ampio open-space e all'altra spaziosa terrazza. Proseguendo tramite scale interne si può accedere al piano superiore e a quello inferiore dell'immbile.
Al piano superiore troviamo la zona notte composta da due camere matrimoniali, una cameretta e un bagno finestrato con vasca idromassaggio.
Al piano inferiore troviamo un ampio disempegno che ci porta alla zona giorno, caratterizzata da un luminoso open-space, un bagno cieco con box doccia, una lavanderia e si ha l'accesso diretto al garage.
Il riscaldamento è autonomo e non ci sono spese condominiali.
Dati principali
| Riferimento | 61066149 |
| Data annuncio | 29/05/2025 |
| Contratto | Vendita |
| Tipologia | Casa semi indipendente |
| Superficie | 300 m2 |
| Locali | più di 5 (7 altro), 3 bagni |
| Piano | 2 di 2 totali |
Costi
| Prezzo | 339.000 € |
| Prezzo al m2 | 1.130 €/m2 |
Efficienza energetica
| Anno costruzione | 2006 |
| Riscaldamento | Autonomo |
| Tipo Alimentazione Riscaldamento | Metano |
| Classe energetica | D |
| Indice di prestazione energetica (IPE) | - |
Planimetrie
Video
Indirizzo e mappa
Via Falcinello, Sarzana
Calcolo mutuo
Prezzo di vendita:
Anticipo
20,00
Mutuo
80,00
Tasso: -+
Rata: 970 al mese
I risultati sono una stima indicativa basata sui dati inseriti e non costituiscono un’offerta finanziaria.
Inserzionista
Agenzia Tecnocasa Studio Sarzana Srl
Via Mazzini, 71, Sarzana
Mostra Telefono
Chiama
CONTATTA

