Quadrilocale Via Stadio Comunale, Cavallermaggiore
€ 165.000Quadrilocale in vendita
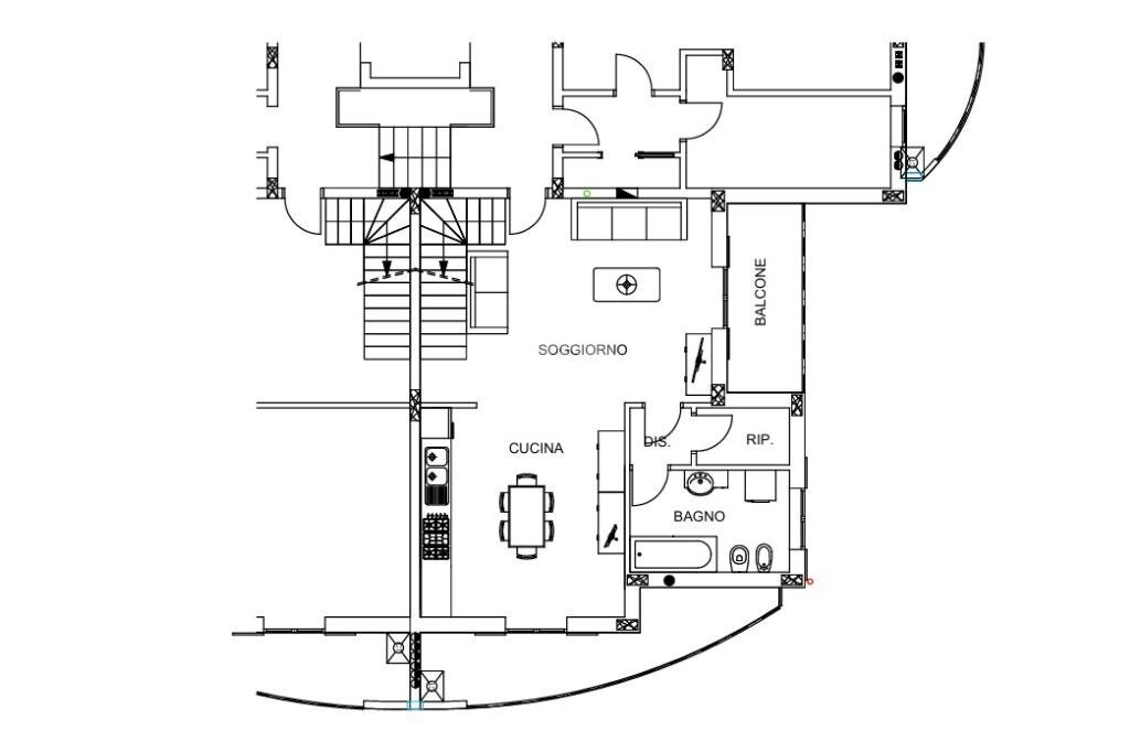
Nel cuore del comune di Cavallermaggiore, proponiamo in vendita quadrilocale sviluppato su due livelli sito all'interno di un complesso abitativo di recente costruzione e dotato di ascensore. La soluzione si estende su una superficie di 128 mq. L'accesso avviene direttamente sulla zona giorno composta da soggiorno e cucina, collegata tramite disimpegno al primo servizio dotato di doccia e al ripostiglio. La scala interna conduce al piano superiore composto da due camere da letto e dal secondo servizio. La presenza di tre balconi permette di godere di spazi esterni privati, ideali per momenti di relax.
Il riscaldamento è autonomo con radiatori.
L'APPARTAMENTO SARÀ CONSEGNATO COMPLETO DI TUTTE LE FINITURE CHE IL CLIENTE POTRÀ SCEGLIERE DA CAPITOLATO.
POSSIBILITÀ DI ACQUISTARE SEPARATAMENTE IL BOX AUTO SINGOLO.
Ogni agenzia ha un proprio titolare ed è autonoma. - Le presenti informazioni non costituiscono elemento contrattuale.
Il riscaldamento è autonomo con radiatori.
L'APPARTAMENTO SARÀ CONSEGNATO COMPLETO DI TUTTE LE FINITURE CHE IL CLIENTE POTRÀ SCEGLIERE DA CAPITOLATO.
POSSIBILITÀ DI ACQUISTARE SEPARATAMENTE IL BOX AUTO SINGOLO.
Ogni agenzia ha un proprio titolare ed è autonoma. - Le presenti informazioni non costituiscono elemento contrattuale.
Dati principali
| Riferimento | 61066138 |
| Data annuncio | 28/05/2025 |
| Contratto | Vendita |
| Tipologia | Appartamento |
| Superficie | 128 m2 |
| Locali | 4 (4 altro), 2 bagni |
| Piano | 2 di 4 totali |
Costi
| Prezzo | 165.000 € |
| Prezzo al m2 | 1.289 €/m2 |
| Spese condominiali | € 67,00/mese |
Efficienza energetica
| Anno costruzione | 2008 |
| Riscaldamento | Autonomo |
| Tipo Alimentazione Riscaldamento | Altro |
| Classe energetica | Immobile esente da certificazione energetica |
Planimetrie
Video
Indirizzo e mappa
Via Stadio Comunale, Cavallermaggiore
Calcolo mutuo
Prezzo di vendita:
Anticipo
20,00
Mutuo
80,00
Tasso: -+
Rata: 472 al mese
I risultati sono una stima indicativa basata sui dati inseriti e non costituiscono un’offerta finanziaria.
Inserzionista
Agenzia Tecnorete Studio Marene Sas
Via S. Gallina, 5, Marene
Mostra Telefono
Chiama
CONTATTA

