Ufficio via Raffaello Sanzio 19, Villasanta
€ 2.580.000
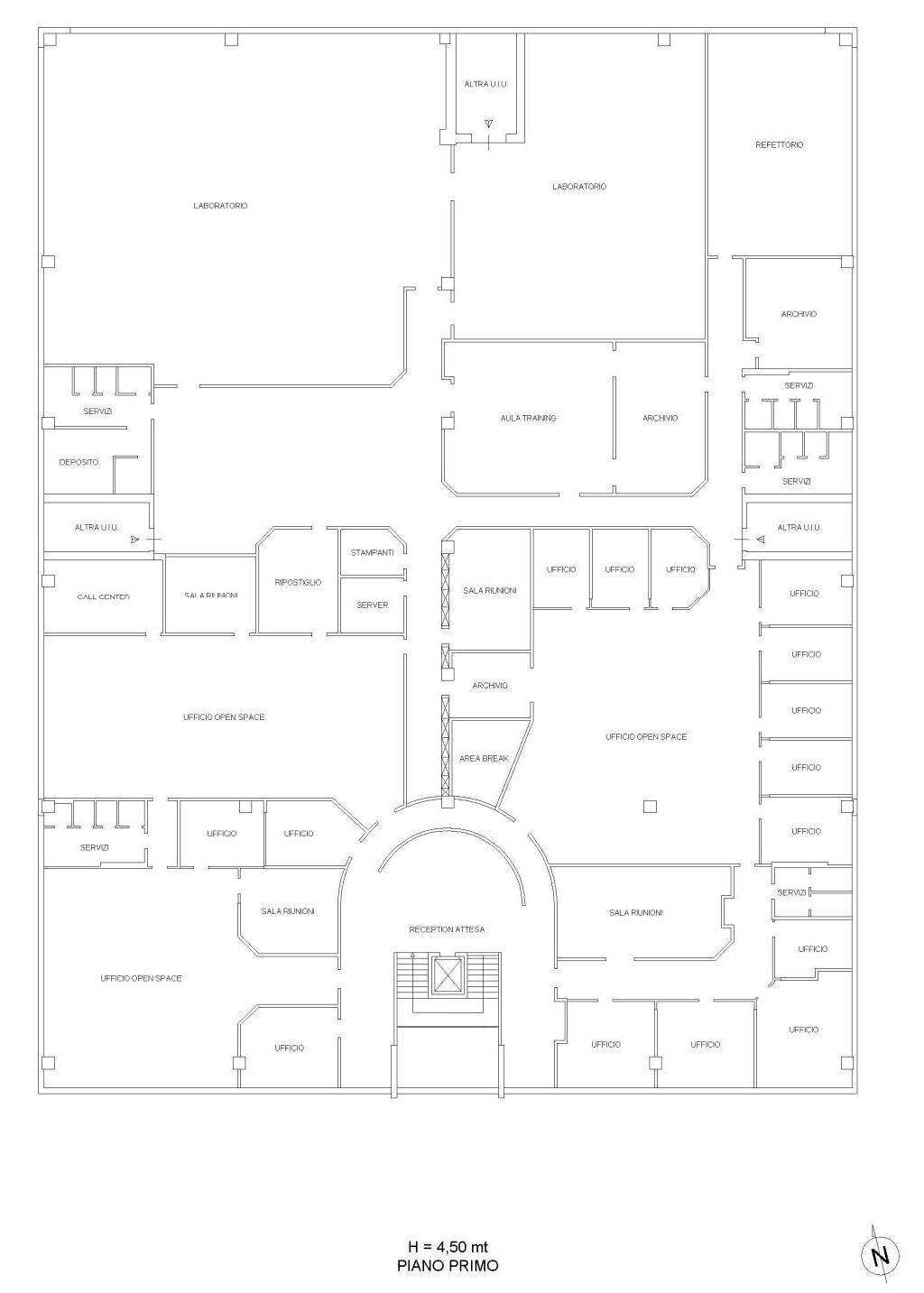
VILLASANTA (MB), via Raffaello Sanzio, in posizione strategica e ben collegata, proponiamo in vendita, all'interno di complesso industriale, spazio ad uso uffici di rappresentanza, di circa 2473 mq. L'immobile occupa l'intero primo piano dell'edificio, molto luminoso, libero su 4 lati, con accesso esclusivo tramite ascensore e vano scale posizionati al centro del fronte sud. Ottime condizioni interne, soluzione di Nello stesso complesso immobiliare, disponibili in vendita, anche frazionata, altri spazi ad uso laboratorio e showroom. Il complesso immobiliare dispone di un'ampia area esterna adibita a parcheggio e manovra. La struttura portante è realizzata in travi e pilastri in calcestruzzo armato precompresso (CAP), con tamponamenti perimetrali in calcestruzzo armato vibrato (CAV) e finitura esterna in ghiaietto lavato. La facciata continua è caratterizzata da serramenti in alluminio con vetrocamera. Ottima posizione, a pochi chilometri da Monza e facilmente raggiungibile anche da Milano. Le strade della zona sono ben curate e l'area è ben servita da diverse linee di autobus gestite da ATM, che rendono comodo l'accesso a Monza e alla sua principale stazione ferroviaria.
Dati principali
| Riferimento | 1118 |
| Data annuncio | 28/05/2025 |
| Contratto | Vendita |
| Tipologia | Ufficio |
| Superficie | 2473 m2 |
| Locali | più di 5 (30 altro), 5 bagni |
| Piano | 1 di 2 totali |
| Occupato | Libero |
Costi
| Prezzo | 2.580.000 € |
| Prezzo al m2 | 1.043 €/m2 |
Efficienza energetica
| Stato | Buono |
| Riscaldamento | Autonomo |
| Classe energetica | E |
| Indice di prestazione energetica (IPE) | 271 kWh/m2 anno |
Planimetrie
Indirizzo e mappa
via Raffaello Sanzio
19, Villasanta
Annuncio senza mappa,
prova a chiedere la posizione all'inserzionista
prova a chiedere la posizione all'inserzionista
Calcolo mutuo
Prezzo di vendita:
Anticipo
20,00
Mutuo
80,00
Tasso: -+
Rata: 7.379 al mese
I risultati sono una stima indicativa basata sui dati inseriti e non costituiscono un’offerta finanziaria.
Inserzionista

COIFIL Real Estate
via Alvise Cadamosto 7, Milano
Mostra Telefono
Chiama
CONTATTA

