Quadrilocale Via roma, Saludecio
€ 105.000Quadrilocale in vendita
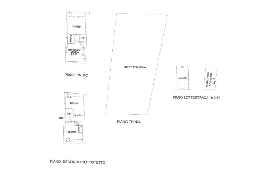
Saludecio: in zona residenziale, localizzato all’interno di un piccolo condominio con bassissime spese condominiali, proponiamo in vendita appartamento posizionato al piano primo con mansarda collegata.
All’interno questa soluzione offre una sala con predisposizione per un camino o una stufa, un’ampia cucina abitabile con angolo cottura compreso nel prezzo, un bagno con box doccia e un piccolo ripostiglio di 2 mq essenziale per il ricovero di qualsiasi oggetto o utilizzabile anche comodo guardaroba.
Il piano mansardato, raggiungibile mediante la scala posta nella zona giorno, è costituito da due comode camere matrimoniali servite da bagno finestrato con vasca e accogliente disimpegno che crea il collegamento ad ogni ambiente.
A completare questa graziosa proprietà elenchiamo un giardino di proprietà di circa 250 mq, un garage di 16 mq e un posto auto scoperto.
All’interno questa soluzione offre una sala con predisposizione per un camino o una stufa, un’ampia cucina abitabile con angolo cottura compreso nel prezzo, un bagno con box doccia e un piccolo ripostiglio di 2 mq essenziale per il ricovero di qualsiasi oggetto o utilizzabile anche comodo guardaroba.
Il piano mansardato, raggiungibile mediante la scala posta nella zona giorno, è costituito da due comode camere matrimoniali servite da bagno finestrato con vasca e accogliente disimpegno che crea il collegamento ad ogni ambiente.
A completare questa graziosa proprietà elenchiamo un giardino di proprietà di circa 250 mq, un garage di 16 mq e un posto auto scoperto.
Dati principali
| Riferimento | 61063811 |
| Data annuncio | 23/05/2025 |
| Contratto | Vendita |
| Tipologia | Appartamento |
| Superficie | 102 m2 |
| Locali | 4 (4 altro), 2 bagni |
| Piano | 1 di 2 totali |
| Numero posti auto | 1 |
Costi
| Prezzo | 105.000 € |
| Prezzo al m2 | 1.029 €/m2 |
| Spese condominiali | € 21,00/mese |
Efficienza energetica
| Anno costruzione | 2004 |
| Riscaldamento | Autonomo |
| Tipo Alimentazione Riscaldamento | Metano |
| Classe energetica | E |
| Indice di prestazione energetica (EP GL, REN) | 1.39 kWh/m3 anno |
| Indice di prestazione energetica (EP GL, NREN) | 209.88 kWh/m3 anno |
Planimetrie
Indirizzo e mappa
Via roma, Saludecio
Calcolo mutuo
Prezzo di vendita:
Anticipo
20,00
Mutuo
80,00
Tasso: -+
Rata: 300 al mese
I risultati sono una stima indicativa basata sui dati inseriti e non costituiscono un’offerta finanziaria.
Inserzionista
Chiama
CONTATTA

