Casa semi indipendente Via fabbricotti, Ameglia
€ 365.000Casa semindipendente in vendita
Bocca di Magra - a due passi dal mare, proponiamo in vendita in eslcusivo complesso trifamiliare, terratetto con giardino privato, box e posto auto e cantina.
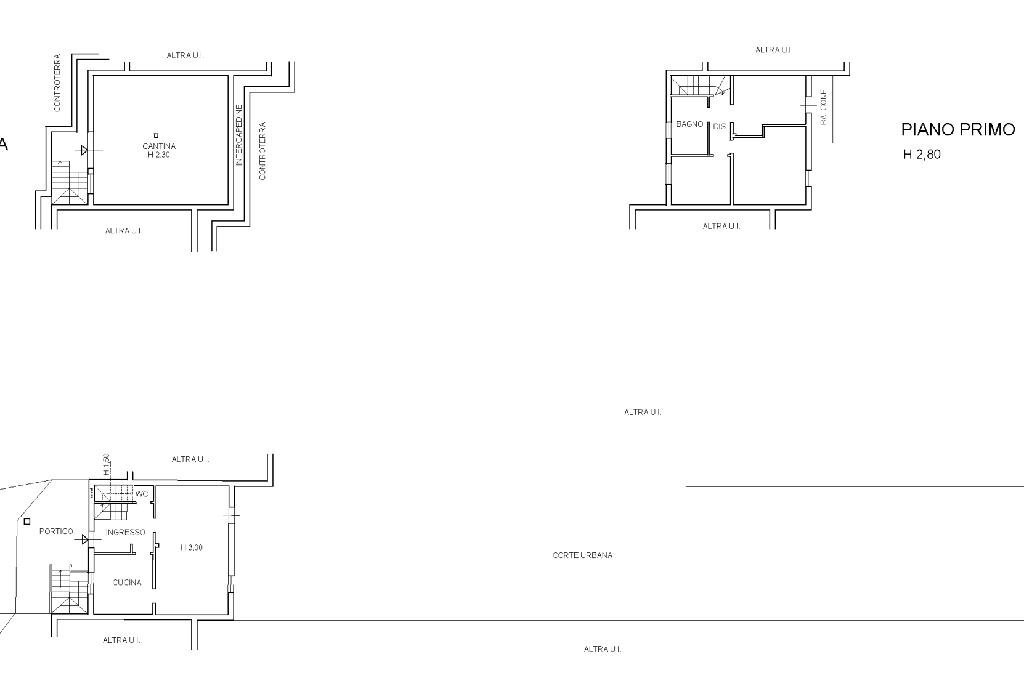
L'ingresso è indipendente sulla loggia pranzabile, dal quale si accede al pianterreno dove troviamo la zona giorno, composta da una cucina ed uno spazioso soggiorno con camino; da qui, delle portefinestre si aprono sull'ampio giardino privato.
Una comoda scala interna conduce alla zona notte, dove troviamo due camere da letto matrimoniali, una camera singola con balcone ed il secondo bagno finestrato.
Completa la proprietà una cantina, un posto auto scoperto ed un box auto.
L'immobile non ha spese condominiali.
La zona è perfetta per raggiungere a piedi le principali attività e sfoghi balneari di Bocca di Magra
L'ingresso è indipendente sulla loggia pranzabile, dal quale si accede al pianterreno dove troviamo la zona giorno, composta da una cucina ed uno spazioso soggiorno con camino; da qui, delle portefinestre si aprono sull'ampio giardino privato.
Una comoda scala interna conduce alla zona notte, dove troviamo due camere da letto matrimoniali, una camera singola con balcone ed il secondo bagno finestrato.
Completa la proprietà una cantina, un posto auto scoperto ed un box auto.
L'immobile non ha spese condominiali.
La zona è perfetta per raggiungere a piedi le principali attività e sfoghi balneari di Bocca di Magra
Dati principali
| Riferimento | 61060576 |
| Data annuncio | 23/05/2025 |
| Contratto | Vendita |
| Tipologia | Casa semi indipendente |
| Superficie | 170 m2 |
| Locali | 5 (5 altro), 2 bagni |
| Piano | 1 di 1 totali |
Costi
| Prezzo | 365.000 € |
| Prezzo al m2 | 2.147 €/m2 |
Efficienza energetica
| Anno costruzione | 1970 |
| Riscaldamento | Autonomo |
| Tipo Alimentazione Riscaldamento | Metano |
| Classe energetica | G |
| Indice di prestazione energetica (IPE) | - |
Planimetrie
Video
Indirizzo e mappa
Via fabbricotti, Ameglia
Calcolo mutuo
Prezzo di vendita:
Anticipo
20,00
Mutuo
80,00
Tasso: -+
Rata: 1.044 al mese
I risultati sono una stima indicativa basata sui dati inseriti e non costituiscono un’offerta finanziaria.
Inserzionista
Agenzia Tecnocasa Studio Sarzana Srl
Via Mazzini, 71, Sarzana
Mostra Telefono
Chiama
CONTATTA

