Appartamento 12, San Benedetto del Tronto
€ 230.000
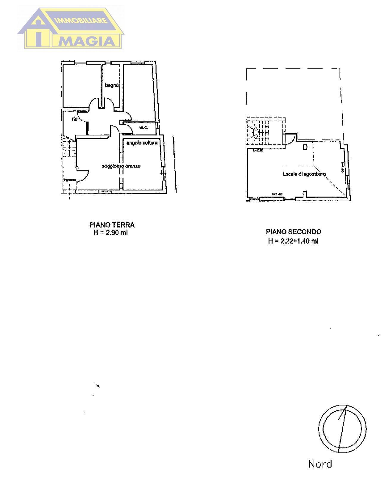
Unoccasione unica per chi cerca spazio, indipendenza e valore a due passi dal centro! A San Benedetto del Tronto, in via Carnia 18, ti presentiamo un immobile che incarna la libertà, la comodità e lintelligenza abitativa. Siamo in una piccola palazzina di soli 3 piani, senza ascensore, in un contesto tranquillo e riservato, a ridosso del centro città. Lappartamento, di circa 85 mq, si trova al piano rialzato, con esposizione sud-est che garantisce luce naturale tutto il giorno e una piacevole ventilazione. Composizione interna pensata per la vita quotidiana: Soggiorno collegato alla sala da pranzo: ideale per serate in famiglia e ospitalità Cucina a vista, perfetta per chi ama cucinare e vivere la casa in modo conviviale Due camere da letto: spaziose, luminose, con grande potenziale di personalizzazione Due bagni comodi, uno con vasca e uno con doccia, per il massimo comfort Un ripostiglio pratico e funzionale Una soffitta di circa 35 mq, ideale come deposito, studio, zona hobby o area relax Aria condizionata già installata. Completa la proprietà un garage di circa 40 mq al piano strada, che può essere facilmente trasformato in un secondo appartamento indipendente: unopportunità concreta per chi ha figli adulti, genitori anziani o desidera realizzare ununità da affittare. Cosa rende questo immobile un grande affare? Libertà e privacy per ogni membro della famiglia, con spazi ben separati ma connessi Spese condominiali minime, grazie alla palazzina senza ascensore e senza costi superflui Prezzo competitivo, difficile da trovare in questa zona Posizione strategica: in pochi minuti a piedi sei nel cuore di San Benedetto, con scuole, servizi, negozi e trasporti a portata di mano Vivere con qualità: la luce del mattino, il silenzio della sera, e lo spazio che si adatta ai tuoi progetti di vita Contattaci oggi stesso per una visita senza impegno! Siamo pronti a mostrarti tutte le potenzialità di questa casa pensata per crescere con la tua famiglia.
Dati principali
| Riferimento | 3443 |
| Data annuncio | 23/05/2025 |
| Contratto | Vendita |
| Tipologia | Appartamento |
| Superficie | 98 m2 |
| Locali | 5 (2 camere da letto, 3 altro), 2 bagni, cucina a vista |
| Piano | Ammezzato, 4 totali |
| Tipo di costruzione | Media |
| Occupato | Libero |
| Box auto | Doppio |
| Arredamento | Assente |
Caratteristiche
Costi
| Prezzo | 230.000 € |
| Prezzo al m2 | 2.347 €/m2 |
Efficienza energetica
| Riscaldamento | Autonomo |
| Classe energetica | E |
| Indice di prestazione energetica (IPE) | 125 kWh/m2 anno |
Planimetrie
Virtual tour
Video
Indirizzo e mappa
12, San Benedetto del Tronto
Annuncio senza mappa,
prova a chiedere la posizione all'inserzionista
prova a chiedere la posizione all'inserzionista
Calcolo mutuo
Prezzo di vendita:
Anticipo
20,00
Mutuo
80,00
Tasso: -+
Rata: 658 al mese
I risultati sono una stima indicativa basata sui dati inseriti e non costituiscono un’offerta finanziaria.
Inserzionista

MAGIA immobiliare
Via Salaria, 90, Castel di Lama
Mostra Telefono
Chiama
CONTATTA

