Trilocale Passo del Broccon, Comacchio
€ 98.000
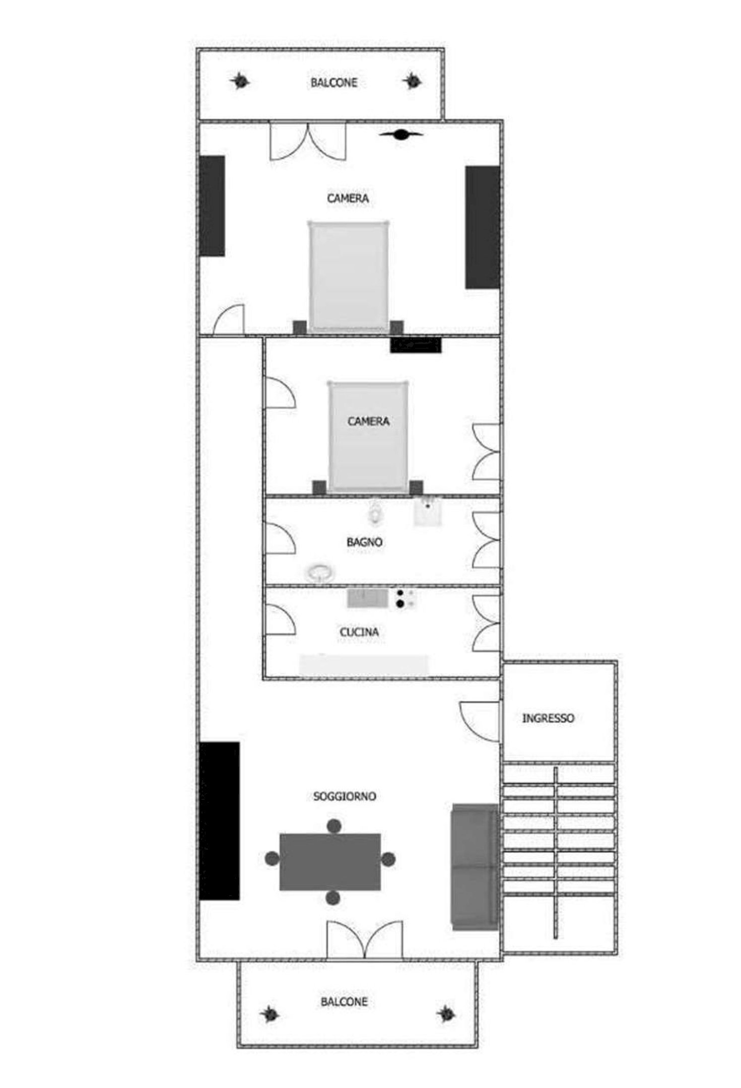
Vivere vicino al mare con i suoi profumi e con i suoi suoni e perdersi nei suoi confini non ha valore. Vivere vicino al mare è come scendere nel profondo di se stesso. L'immobiliare 3m vi propone in vendita a Lido degli Scacchi sulla riviera adriatica un ottimo investimento al mare. L'immobile si trova al secondo piano di una piccola palazzina di sole quattro unità abitative. Appena si varca la soglia, confort e relax viene accentuato dallo spazioso e comodo soggiorno con accesso al balcone. Accanto al soggiorno troviamo la cucina con spazi e finiture adatte a cucinare anche pranzi impegnativi. L'appartamento è composto da 2 camere da letto matrimoniali luminose e ben vivivibili di cui una dotata di porta finestra con accesso al balcone. Dotato di un comodo bagno finestrato con box doccia. Lo stato di manutenzione è buono, in quanto tenuto con molta cura e attenzione. Gli infissi sono in legno con doppi vetri in alluminio inoltre dispone di impianto di riscaldamento autonomo a gas metano che consente di sfruttare l'appartamento come una possibile soluzione residenziale. L'intera palazzina si presenta in buono stato e non è soggetto a spese condominiali. Completa la proprietà un posto auto all'interno del giardino. Quattro buoni motivi per scegliere questo immobile: 1) Ottima la posizione dell'alloggio in zona centrale dellla località dove i servizi sono a portata di mano e la spiaggia è vicinissima a circa 350 metri. 2) sfruttabile per tutto il periodo dell'anno grazie all'impianto di riscaldamento autonomo 3) Ideale per famiglie numerose che necessitano di ampi spazi 4)l'immobile dispone di utenze autonome ed è privo di spese condominiali.
Dati principali
| Riferimento | 01-01-broccon |
| Data annuncio | 22/05/2025 |
| Contratto | Vendita |
| Tipologia | Appartamento |
| Superficie | 70 m2 |
| Locali | 3 (3 altro), 1 bagno |
| Piano | 2 |
| Box auto | Singolo |
Costi
| Prezzo | 98.000 € |
| Prezzo al m2 | 1.400 €/m2 |
Efficienza energetica
| Stato | Buono |
| Riscaldamento | Autonomo |
| Classe energetica | G |
| Indice di prestazione energetica (IPE) | 350 kWh/m2 anno |
Planimetrie
Indirizzo e mappa
Passo del Broccon, Comacchio
Annuncio senza mappa,
prova a chiedere la posizione all'inserzionista
prova a chiedere la posizione all'inserzionista
Calcolo mutuo
Prezzo di vendita:
Anticipo
20,00
Mutuo
80,00
Tasso: -+
Rata: 280 al mese
I risultati sono una stima indicativa basata sui dati inseriti e non costituiscono un’offerta finanziaria.
Inserzionista

Agenzia immobiliare 3m
Via Mar Ionio 5, Comacchio
Mostra Telefono
Chiama
CONTATTA

