Quadrilocale Via Monsignore Carabelli, Siracusa
€ 99.000
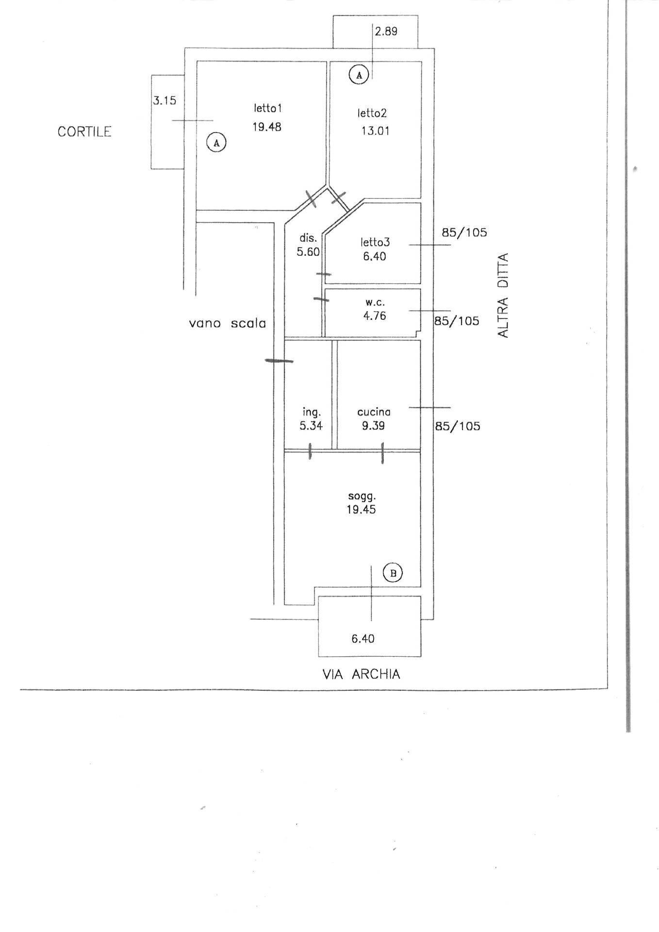
In vendita a Siracusa Zona Gelone Morana Immobiliare propone un ampio appartamento di 110 mq al sesto piano di uno stabile servito da ascensore, in una delle aree più prestigiose e centrali della città. Limmobile, da ristrutturare, rappresenta la soluzione ideale per chi desidera personalizzare gli ambienti secondo i propri gusti o realizzare un progetto moderno e funzionale. La superficie calpestabile di circa 108 mq è distribuita in: ingresso su disimpegno, luminoso soggiorno, cucina abitabile, tre camere da letto, un bagno, facilmente riorganizzabile per servire al meglio la zona giorno e notte. La doppia esposizione estovest regala luce naturale durante tutta la giornata, mentre laltezza del piano assicura una vista panoramica sulla città e una piacevole sensazione di riservatezza. Unopportunità imperdibile per chi cerca una casa spaziosa, centrale e ben servita, perfetta come abitazione principale o come investimento. Richiesta 99mila Cod. Rif.: IA81137 Contattaci per maggiori informazioni o per fissare una visita.
Dati principali
| Riferimento | IA81137 |
| Data annuncio | 22/05/2025 |
| Contratto | Vendita |
| Tipologia | Appartamento |
| Superficie | 110 m2 |
| Locali | 4 (3 camere da letto, 1 altro), 1 bagno, cucina abitabile |
| Piano | 6 di 6 totali |
| Tipo di costruzione | Signorile |
| Occupato | Libero |
| Box auto | Assente |
| Arredamento | Assente |
Caratteristiche
Costi
| Prezzo | 99.000 € |
| Prezzo al m2 | 900 €/m2 |
Efficienza energetica
| Stato | Da ristrutturare |
| Riscaldamento | Assente |
| Tipo Alimentazione Riscaldamento | Altro |
| Classe energetica | G |
| Indice di prestazione energetica (IPE) | - |
Planimetrie
Indirizzo e mappa
Via Monsignore Carabelli, Siracusa
Annuncio senza mappa,
prova a chiedere la posizione all'inserzionista
prova a chiedere la posizione all'inserzionista
Calcolo mutuo
Prezzo di vendita:
Anticipo
20,00
Mutuo
80,00
Tasso: -+
Rata: 283 al mese
I risultati sono una stima indicativa basata sui dati inseriti e non costituiscono un’offerta finanziaria.
Inserzionista

Morana immobiliare
Viale Teocrito 105, Siracusa
Mostra Telefono
Mostra Cellulare
Chiama
CONTATTA

