Locale Commerciale Viale Teocrito / Via del Santuario, Siracusa
€ 170.000
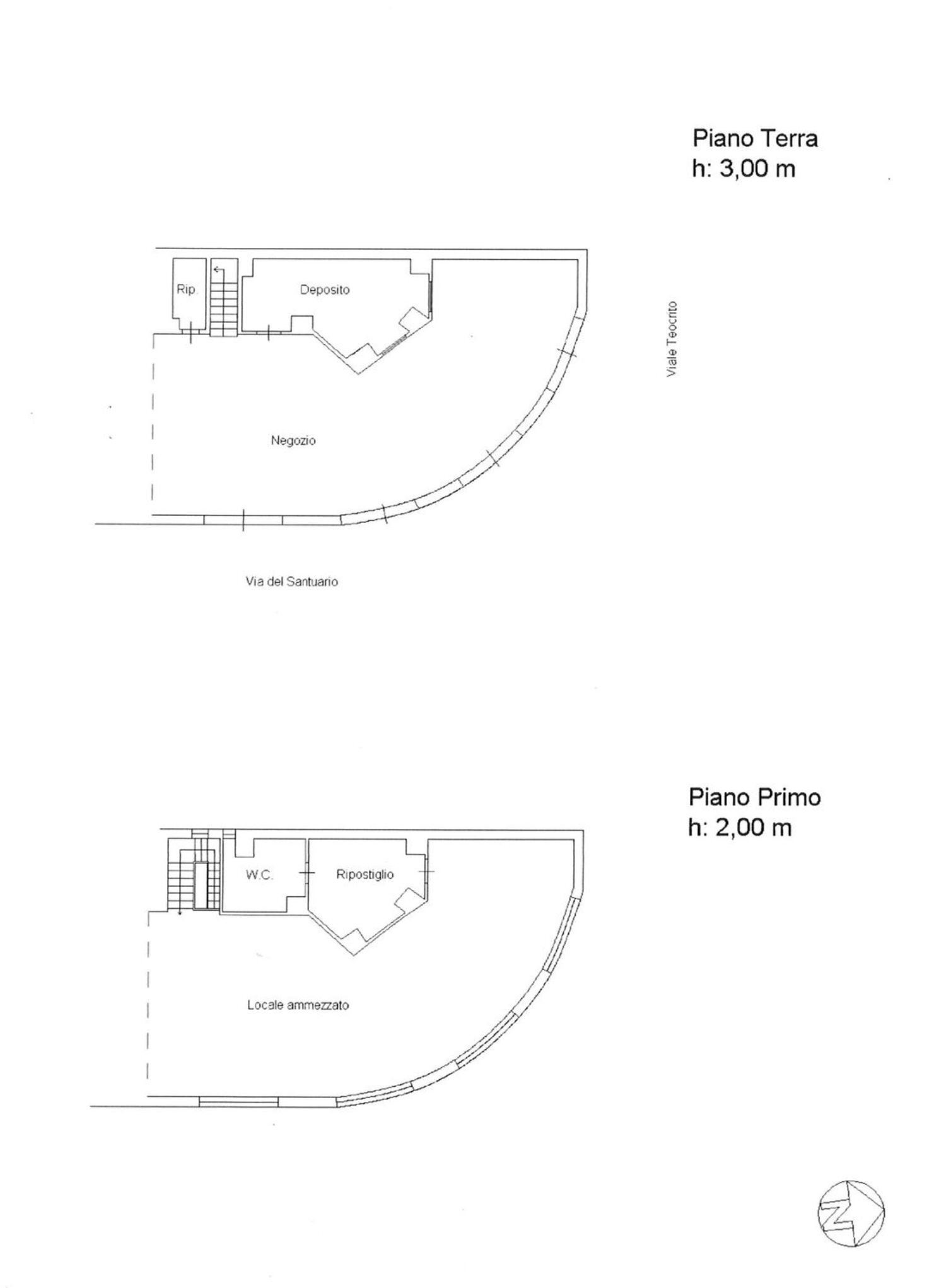
SIRACUSA CENTRALISSIMO NEGOZIO ZONA TEOCRITO - UF80146 In pieno centro a Siracusa, in una posizione ricca di esercizi commerciali, a soli due passi dal Santuario e da Piazza San Giovanni, vi proponiamo la vendita di un negozio. La sua posizione angolare, fra Viale Teocrito e Via del Santuario, garantisce un'ottima visibilità, con quattro vetrine. Il locale ha una superficie di mq. 250 ca ed è distribuito su due livelli, piano terra di mq 125 e piano ammezzato di mq 125. Ideale per qualunque attività commerciale, anche legata al turismo, come suggerisce la zona in cui sono presenti le principali attrazioni della città: Parco Archeologico, Santuario, San Giovanni. Perfetta regolarità urbanistica e catastale. Euro 170 mila. Cod. Rif. UF80146
Dati principali
| Riferimento | UF80146 |
| Data annuncio | 22/05/2025 |
| Contratto | Vendita |
| Tipologia | Locale Commerciale |
| Superficie | 251 m2 |
| Locali | 1 (1 altro), 2 bagni, cucina non presente |
| Piano | Su più livelli |
| Occupato | Libero |
| Arredamento | Assente |
Costi
| Prezzo | 170.000 € |
| Prezzo al m2 | 677 €/m2 |
Efficienza energetica
| Stato | Buono |
| Riscaldamento | Assente |
| Tipo Alimentazione Riscaldamento | Altro |
| Classe energetica | G |
| Indice di prestazione energetica (IPE) | 175 kWh/m2 anno |
Planimetrie
Indirizzo e mappa
Viale Teocrito / Via del Santuario, Siracusa
Annuncio senza mappa,
prova a chiedere la posizione all'inserzionista
prova a chiedere la posizione all'inserzionista
Calcolo mutuo
Prezzo di vendita:
Anticipo
20,00
Mutuo
80,00
Tasso: -+
Rata: 486 al mese
I risultati sono una stima indicativa basata sui dati inseriti e non costituiscono un’offerta finanziaria.
Inserzionista

Morana immobiliare
Viale Teocrito 105, Siracusa
Mostra Telefono
Mostra Cellulare
Chiama
CONTATTA

