Villa Fontana Mortella, Siracusa
€ 350.000
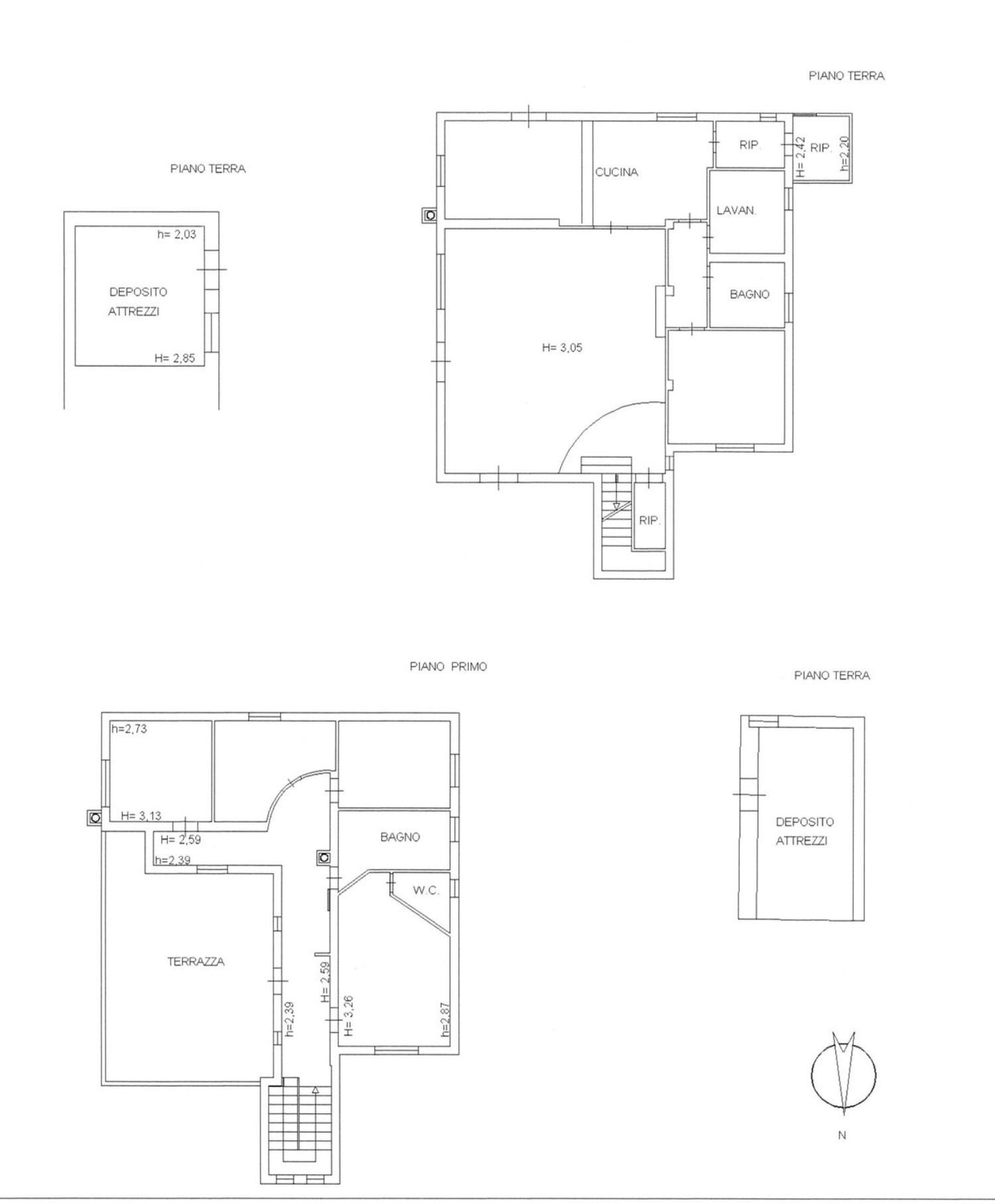
In Traversa Fontana Mortella, a soli 7 km dalla città, nei pressi della riserva naturale "Ciane e Saline" a Siracusa, Morana Immobiliare propone la vendita di una elegante e prestigiosa villa con ottime finiture: parquet in larice nell'ampio living e cotto fiorentino negli altri ambienti. L'immobile, inserito su un lotto di terreno di circa 1400 mq con diversi alberi di agrumi e da frutto, è suddiviso su due livelli: al piano terra l'ingresso si apre su un grande salone, tramite una porta si accede ad una grande cucina/soggiorno con una comoda dispensa, una lavanderia con doccia, un bagno, una camera da letto ed un ripostiglio. Tramite scala interna si accede al primo piano composto da una grande camera da letto con predisposizione per il bagno, tre camerette ed un bagno. Completa il piano un terrazzo a livello di 40 mq circa dal quale si dominano gli splendidi dintorni. La zona della riserva naturale del fiume Ciane, noto per il papiro che ha il proprio habitat lungo il suo corso, è meta ogni anno di numerosi turisti. All'interno della riserva è presente un sentiero percorribile a piedi o in bici che consente, nei momenti liberi, splendide passeggiate immersi nella natura. La casa può essere destinata a magnifica residenza o casa vacanze. Euro 350 mila. IA80847
Dati principali
| Riferimento | IA80847 |
| Data annuncio | 22/05/2025 |
| Contratto | Vendita |
| Tipologia | Villa |
| Superficie | 340 m2 |
| Locali | più di 5 (5 camere da letto, 3 altro), 3 bagni, cucina abitabile |
| Piano | Su più livelli, 2 totali |
| Tipo di costruzione | Signorile |
| Box auto | Singolo |
| Numero posti auto | 1 |
Caratteristiche
Costi
| Prezzo | 350.000 € |
| Prezzo al m2 | 1.029 €/m2 |
Efficienza energetica
| Stato | Parzialmente ristrutturato |
| Riscaldamento | Autonomo |
| Classe energetica | D |
| Indice di prestazione energetica (IPE) | - |
Planimetrie
Video
Indirizzo e mappa
Fontana Mortella, Siracusa
Annuncio senza mappa,
prova a chiedere la posizione all'inserzionista
prova a chiedere la posizione all'inserzionista
Calcolo mutuo
Prezzo di vendita:
Anticipo
20,00
Mutuo
80,00
Tasso: -+
Rata: 1.001 al mese
I risultati sono una stima indicativa basata sui dati inseriti e non costituiscono un’offerta finanziaria.
Inserzionista

Morana immobiliare
Viale Teocrito 105, Siracusa
Mostra Telefono
Mostra Cellulare
Chiama
CONTATTA

