Negozio via Dei Termini, Osio Sopra
€ 1.060.000
- OSIO SOPRA _ FRONTE STATALE
Spazio commerciale a reddito di mq 700 situato in posizione di grande visibilità direttamente affacciato su primaria via di comunicazione dotato di doppio ingresso indipendente al piano terreno oltre grande parcheggio privato ad uso pubblico sul fronte.
Immobile situato nelle immediate vicinanze dell'area commerciale di Dalmine distante 15 minuti da Bergamo e 5 minuti dallo svincolo autostradale di Capriate.
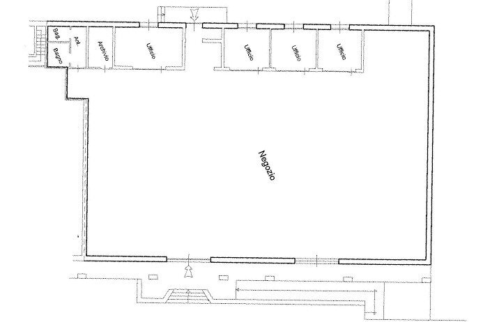
Spazio commerciale ad uso negozio di mq 700, totale open space senza pilastri dotato di area servizi, 5 uffici, ingresso indipendente sul fronte e sul retro ed ampio piazzale frontale ad uso parcheggio.
L'immobile si trova in perfette condizioni d'uso.
Immobile locato a primario conduttore con canone di locazione annuale 63.000,00 + Iva per un rendimento pari al 6 % annuo lordo.
Disponibili ulteriori spazi all'interno del complesso:
1)Magazzino/laboratorio al piano seminterrato di mq 1370 totale open sapce attualmente al rustico da completare nelle rifiniture e negli impianti in base alla necessità di utilizzo, dotato di rampa di accesso carrale e piazzale di ingresso ad uso comune.
Immobile libero.
1.060.000,00
CLASSE ENERGETICA: In attesa di certificazione energetica
Vai all'annuncio: http://www.studio-valle.com/it/osio-sopra-main-road-front-6/
STUDIO IMMOBILIARE VALLE
Flaminia S.r.l.
Real estate and investments
24121 Bergamo - Italy
V.le Vitt. Emanuele II n. 65
tel +39 035 231588
fax +39 035 232714
www.studio-valle.com
[email protected]
Facebook: StudioImmobiliareValle
Twitter: ValleRealEstate
Skype: Valle-Real-Estate
Spazio commerciale a reddito di mq 700 situato in posizione di grande visibilità direttamente affacciato su primaria via di comunicazione dotato di doppio ingresso indipendente al piano terreno oltre grande parcheggio privato ad uso pubblico sul fronte.
Immobile situato nelle immediate vicinanze dell'area commerciale di Dalmine distante 15 minuti da Bergamo e 5 minuti dallo svincolo autostradale di Capriate.
Spazio commerciale ad uso negozio di mq 700, totale open space senza pilastri dotato di area servizi, 5 uffici, ingresso indipendente sul fronte e sul retro ed ampio piazzale frontale ad uso parcheggio.
L'immobile si trova in perfette condizioni d'uso.
Immobile locato a primario conduttore con canone di locazione annuale 63.000,00 + Iva per un rendimento pari al 6 % annuo lordo.
Disponibili ulteriori spazi all'interno del complesso:
1)Magazzino/laboratorio al piano seminterrato di mq 1370 totale open sapce attualmente al rustico da completare nelle rifiniture e negli impianti in base alla necessità di utilizzo, dotato di rampa di accesso carrale e piazzale di ingresso ad uso comune.
Immobile libero.
1.060.000,00
CLASSE ENERGETICA: In attesa di certificazione energetica
Vai all'annuncio: http://www.studio-valle.com/it/osio-sopra-main-road-front-6/
STUDIO IMMOBILIARE VALLE
Flaminia S.r.l.
Real estate and investments
24121 Bergamo - Italy
V.le Vitt. Emanuele II n. 65
tel +39 035 231588
fax +39 035 232714
www.studio-valle.com
[email protected]
Facebook: StudioImmobiliareValle
Twitter: ValleRealEstate
Skype: Valle-Real-Estate
Dati principali
| Riferimento | osiosopra700_2 |
| Data annuncio | 22/05/2025 |
| Contratto | Vendita |
| Tipologia | Negozio |
| Superficie | 700 m2 |
| Locali | più di 5 (6 altro), 2 bagni |
| Piano | Terra, 3 totali |
| Occupato | Occupato da Proprietario |
| Numero posti auto | 10 |
| Arredamento | Assente |
Caratteristiche
Costi
| Prezzo | 1.060.000 € |
| Prezzo al m2 | 1.514 €/m2 |
Efficienza energetica
| Stato | Parzialmente ristrutturato |
| Riscaldamento | Autonomo |
| Tipo Impianto Di Riscaldamento | ad aria |
| Tipo Alimentazione Riscaldamento | Elettrico |
| Classe energetica | Immobile esente da certificazione energetica |
Planimetrie
Indirizzo e mappa
via Dei Termini, Osio Sopra
Annuncio senza mappa,
prova a chiedere la posizione all'inserzionista
prova a chiedere la posizione all'inserzionista
Calcolo mutuo
Prezzo di vendita:
Anticipo
20,00
Mutuo
80,00
Tasso: -+
Rata: 3.032 al mese
I risultati sono una stima indicativa basata sui dati inseriti e non costituiscono un’offerta finanziaria.
Inserzionista

Studio Immobiliare Valle
Viale Vittorio Emanuele II 65, Bergamo
Mostra Telefono
Chiama
CONTATTA

