Negozio via Dei Termini, Osio Sopra
€ 2.350.000
- OSIO SOPRA _ FRONTE STATALE
Complesso commerciale di mq 2600 situato in posizione di grande visibilità direttamente affacciato su primaria via di comunicazione dotato di 2 ampi spazi commerciali al piano terreno attualmente affittati oltre grande parcheggio privato ad uso pubblico di mq 1500 circa sul fronte e area magazzino/laboratorio al piano interrato dotato di accesso indipendente.
Immobile situato nelle immediate vicinanze dell'area commerciale di Dalmine distante 15 minuti da Bergamo e 5 minuti dallo svincolo autostradale di Capriate.
La proprietà è composta dalle seguenti porzioni immobiliari:
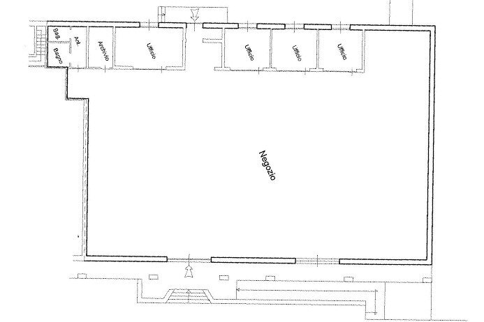
1) Spazio commerciale ad uso negozio di mq 700, totale open space senza pilastri dotato di area servizi, 5 uffici, ingresso indipendente sul fronte e sul retro ed ampio piazzale frontale ad uso parcheggio.
L'immobile si trova in perfette condizioni d'uso.
Immobile locato a primario conduttore con canone di locazione annuale 63.000,00 + Iva per un rendimento pari al 6 % annuo lordo.
2) Spazio commerciale ad uso negozio di mq 470, totale open space senza pilastri dotato di area servizi ed area magazzino, ingresso indipendente sul fronte e sul fianco ed ampio piazzale frontale ad uso parcheggio.
L'immobile si trova in perfette condizioni d'uso.
Immobile locato a primario conduttore con canone di locazione annuale 37.000,00 + Iva per un rendimento pari al 5 % annuo lordo.
3) Magazzino/laboratorio al piano seminterrato di mq 1370 totale open sapce attualmente al rustico da completare nelle rifiniture e negli impianti in base alla necessità di utilizzo, dotato di rampa di accesso carrale e piazzale di ingresso ad uso comune.
Immobile libero.
2.350.000,00
CLASSE ENERGETICA: In attesa di certificazione energetica
Vai all'annuncio: http://www.studio-valle.com/it/osio-sopra-main-road-front-4/
STUDIO IMMOBILIARE VALLE
Flaminia S.r.l.
Real estate and investments
24121 Bergamo - Italy
V.le Vitt. Emanuele II n. 65
tel +39 035 231588
fax +39 035 232714
www.studio-valle.com
[email protected]
Facebook: StudioImmobiliareValle
Twitter: ValleRealEstate
Skype: Valle-Real-Estate
Complesso commerciale di mq 2600 situato in posizione di grande visibilità direttamente affacciato su primaria via di comunicazione dotato di 2 ampi spazi commerciali al piano terreno attualmente affittati oltre grande parcheggio privato ad uso pubblico di mq 1500 circa sul fronte e area magazzino/laboratorio al piano interrato dotato di accesso indipendente.
Immobile situato nelle immediate vicinanze dell'area commerciale di Dalmine distante 15 minuti da Bergamo e 5 minuti dallo svincolo autostradale di Capriate.
La proprietà è composta dalle seguenti porzioni immobiliari:
1) Spazio commerciale ad uso negozio di mq 700, totale open space senza pilastri dotato di area servizi, 5 uffici, ingresso indipendente sul fronte e sul retro ed ampio piazzale frontale ad uso parcheggio.
L'immobile si trova in perfette condizioni d'uso.
Immobile locato a primario conduttore con canone di locazione annuale 63.000,00 + Iva per un rendimento pari al 6 % annuo lordo.
2) Spazio commerciale ad uso negozio di mq 470, totale open space senza pilastri dotato di area servizi ed area magazzino, ingresso indipendente sul fronte e sul fianco ed ampio piazzale frontale ad uso parcheggio.
L'immobile si trova in perfette condizioni d'uso.
Immobile locato a primario conduttore con canone di locazione annuale 37.000,00 + Iva per un rendimento pari al 5 % annuo lordo.
3) Magazzino/laboratorio al piano seminterrato di mq 1370 totale open sapce attualmente al rustico da completare nelle rifiniture e negli impianti in base alla necessità di utilizzo, dotato di rampa di accesso carrale e piazzale di ingresso ad uso comune.
Immobile libero.
2.350.000,00
CLASSE ENERGETICA: In attesa di certificazione energetica
Vai all'annuncio: http://www.studio-valle.com/it/osio-sopra-main-road-front-4/
STUDIO IMMOBILIARE VALLE
Flaminia S.r.l.
Real estate and investments
24121 Bergamo - Italy
V.le Vitt. Emanuele II n. 65
tel +39 035 231588
fax +39 035 232714
www.studio-valle.com
[email protected]
Facebook: StudioImmobiliareValle
Twitter: ValleRealEstate
Skype: Valle-Real-Estate
Dati principali
| Riferimento | osiosopra2900_1 |
| Data annuncio | 22/05/2025 |
| Contratto | Vendita |
| Tipologia | Negozio |
| Superficie | 2600 m2 |
| Locali | più di 5 (8 altro), 5 bagni |
| Piano | Terra, 3 totali |
| Occupato | Occupato da Proprietario |
| Numero posti auto | 10 |
| Arredamento | Assente |
Caratteristiche
Costi
| Prezzo | 2.350.000 € |
| Prezzo al m2 | 904 €/m2 |
Efficienza energetica
| Stato | Ottimo |
| Riscaldamento | Autonomo |
| Tipo Impianto Di Riscaldamento | ad aria |
| Tipo Alimentazione Riscaldamento | Elettrico |
| Classe energetica | Immobile esente da certificazione energetica |
Planimetrie
Indirizzo e mappa
via Dei Termini, Osio Sopra
Annuncio senza mappa,
prova a chiedere la posizione all'inserzionista
prova a chiedere la posizione all'inserzionista
Calcolo mutuo
Prezzo di vendita:
Anticipo
20,00
Mutuo
80,00
Tasso: -+
Rata: 6.721 al mese
I risultati sono una stima indicativa basata sui dati inseriti e non costituiscono un’offerta finanziaria.
Inserzionista

Studio Immobiliare Valle
Viale Vittorio Emanuele II 65, Bergamo
Mostra Telefono
Chiama
CONTATTA

