Capannone Busto Arsizio
€ 3.200.000
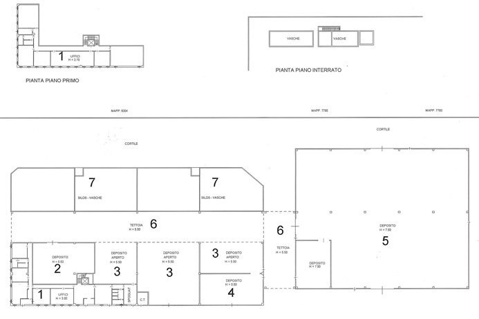
- BUSTO ARSIZIO Importante area artigianale di mq 12.000 dotata di mq 5.000 di edifici ad uso artigianale, magazzini e uffici con possibilità di ampliamento fino a 7.300 mq con altezza massima 18 metri. Immobile situato all'interno di area industriale dotata di ampia viabilità distante pochi minuti dallo svincolo autostradale dei laghi E62 e dall'aeroporto Milano Malpensa, distante soli 30 km da Milano e da Varese e dagli svincoli autostradali A4 Torino - Trieste. L'area consente l'edificazione con indice di copertura massimo pari al 60% della superficie fondiaria, ovvero circa 7.300 mq con altezza massima degli edifici di metri 18. Le destinazioni d'uso consentite sono artigianali, industriali, esercizi pubblici e attività di servizio alle funzioni produttive, abitazioni di servizio, distributori di carburante. Attualmente nell'area sono presenti 2 fabbricati, un'edificio composto da uffici al piano terreno e primo oltre area produttiva per un totale di mq 2000 circa con altezza di metri 5,5, un secondo edificio ad uso magazzino/produttivo di mq 2.500 circa con altezze interne di 7,5 metri ed una tettoia di mq 400. Vi è la possibilità di ampliamento dell'estitente (con eventuale aumento di altezza) per mq 2.300 circa oppure la totale demolizione e nuova costruzione con i parametri edilizi vigenti. L'area esterna è totalmente pavimentata e dotata di svariati accessi indipendenti dalla strada pubblica per comodi ingressi e uscite di auto mezzi. Non sono necessarie bonifiche del terreno. 3.200.000,00 CLASSE ENERGETICA: F 868,41 [Kwh/m2a] Vai all'annuncio: https://www.studio-valle.com/it/busto-arsizio/ STUDIO IMMOBILIARE VALLE Flaminia S.r.l. Real estate and investments 24121 Bergamo - Italy V.le Vitt. Emanuele II n. 65 tel +39 035 231588 WhatsApp: +39 3920190070 www.studio-valle.com [email protected] Facebook: StudioImmobiliareValle Twitter: ValleRealEstate Skype: Valle-Real-Estate
Dati principali
| Riferimento | BUSTOARSIZIO120000 |
| Data annuncio | 22/05/2025 |
| Contratto | Vendita |
| Tipologia | Capannone |
| Superficie | 7300 m2 |
| Occupato | Libero |
Caratteristiche
Costi
| Prezzo | 3.200.000 € |
| Prezzo al m2 | 438 €/m2 |
Efficienza energetica
| Stato | Ottimo |
| Tipo Alimentazione Riscaldamento | Altro |
| Classe energetica | F |
| Indice di prestazione energetica (IPE) | 868 kWh/m2 anno |
Planimetrie
Indirizzo e mappa
Busto Arsizio
Annuncio senza mappa,
prova a chiedere la posizione all'inserzionista
prova a chiedere la posizione all'inserzionista
Calcolo mutuo
Prezzo di vendita:
Anticipo
20,00
Mutuo
80,00
Tasso: -+
Rata: 9.152 al mese
I risultati sono una stima indicativa basata sui dati inseriti e non costituiscono un’offerta finanziaria.
Inserzionista

Studio Immobiliare Valle
Viale Vittorio Emanuele II 65, Bergamo
Mostra Telefono
Chiama
CONTATTA

