Casa indipendente Via Duca Degli Abruzzi, Montorio al Vomano
€ 190.000
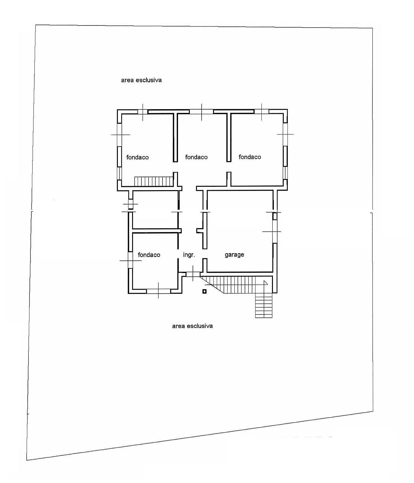
Casa Indipendente in Vendita a Montorio al Vomano Scopri questa splendida casa indipendente a soli 800 metri dal centro di Montorio al Vomano, perfetta per chi cerca spazio e comfort. Con una metratura generosa, la proprietà si sviluppa su due livelli, offrendo spazi ampi ed ottimamente distribuiti. Al piano terra, troverai un ampio garage doppio, due vani con camino e due locali ad uso fondaco, ideali per chi ama avere spazio extra per hobby o deposito, oltre ad un bagno. Il piano superiore ti accoglie con un ingresso luminoso che conduce a un'ampia sala con balcone, perfetta per momenti di relax o convivialità. La cucina abitabile con tinello è il cuore della casa, mentre le quattro camere da letto, tutte dotate di balcone, offrono il massimo del comfort. Completano il piano due bagni finestrati. E' disponibile anche un locale cantina al piano seminterrato. L'abitazione è' circondata da circa 750 metri di terreno pianeggiante, ideale per chi ama vivere all'aperto e a contatto con la natura. L'orientamento su tutti i lati (Nord, Sud, Est, Ovest), garantisce luminosità e ventilazione naturale. Non perdere l'opportunità di vivere in una casa che combina spazio, funzionalità e una posizione privilegiata!
Dati principali
| Riferimento | T1375 |
| Data annuncio | 22/05/2025 |
| Contratto | Vendita |
| Tipologia | Casa indipendente |
| Superficie | 250 m2 |
| Locali | più di 5 (4 camere da letto, 3 altro), 3 bagni, cucina abitabile |
| Tipo di costruzione | Media |
| Occupato | Libero |
| Box auto | Doppio |
| Arredamento | Assente |
Caratteristiche
Costi
| Prezzo | 190.000 € |
| Prezzo al m2 | 760 €/m2 |
Efficienza energetica
| Riscaldamento | Autonomo |
| Classe energetica | G |
| Indice di prestazione energetica (IPE) | - |
Planimetrie
Indirizzo e mappa
Via Duca Degli Abruzzi, Montorio al Vomano
Annuncio senza mappa,
prova a chiedere la posizione all'inserzionista
prova a chiedere la posizione all'inserzionista
Calcolo mutuo
Prezzo di vendita:
Anticipo
20,00
Mutuo
80,00
Tasso: -+
Rata: 543 al mese
I risultati sono una stima indicativa basata sui dati inseriti e non costituiscono un’offerta finanziaria.
Inserzionista

Firmacasa
Corso Cerulli 76, Teramo
Mostra Telefono
Mostra Cellulare
Chiama
CONTATTA

