Attico Via Vincenzo Li Muli 102, Palermo
€ 199.000
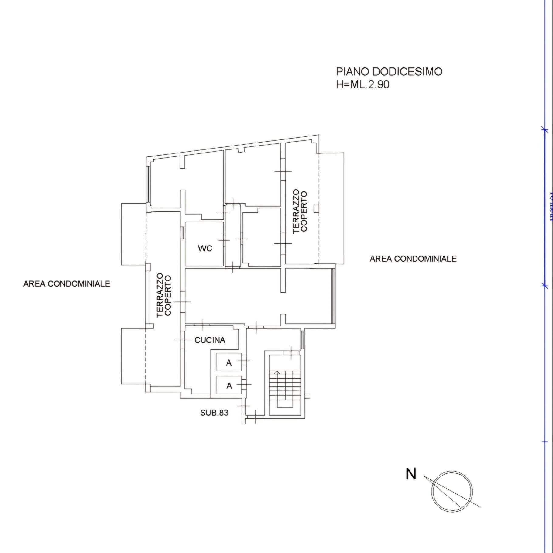
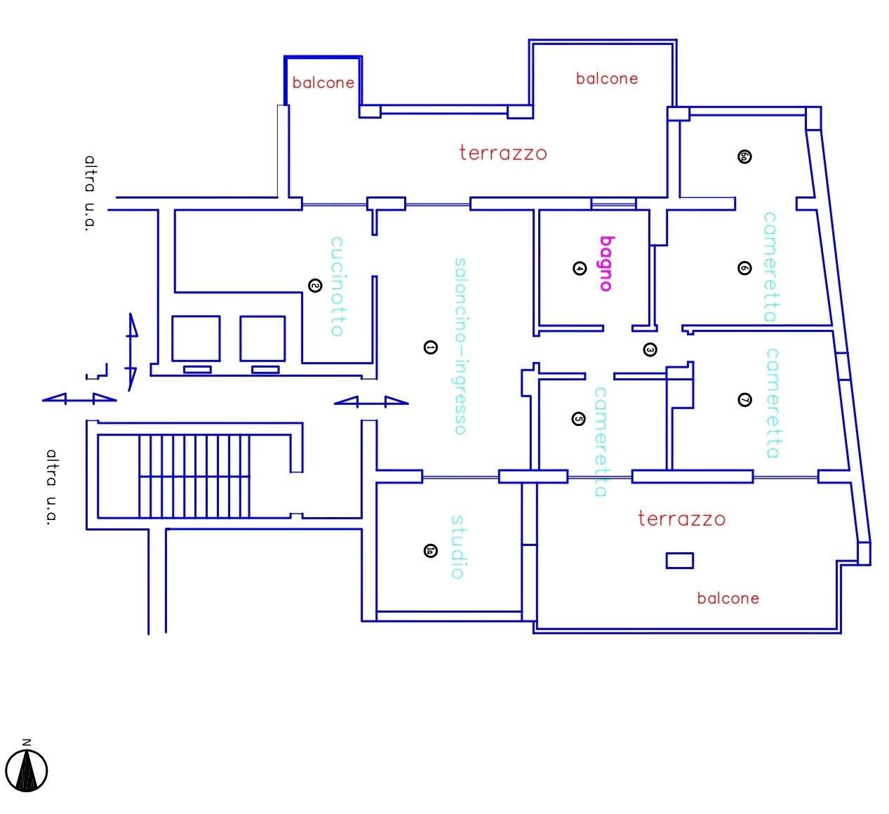
L'attico in vendita si trova a Palermo, in una zona residenziale tranquilla e ben collegata al centro storico della città. Attualmente è libero al rogito, quindi disponibile immediatamente per essere acquistato. L'edificio dispone di due ascensori che permettono di raggiungere comodamente il dodicesimo e ultimo piano. La superficie totale dell'attico è di 125 metri quadrati, così distribuiti: ampio salone, tre camere da letto, una cucina, un bagno con la possibilità di creare un secondo servizio, terrazze e balconi. Lo stato di conservazione dell'attico è buono, ideale per essere messo subito a reddito o utilizzato come propria abitazione. L'edificio è dotato di portineria e posto auto coperto. Dalle finestre e dalla terrazza dell'attico si può godere di una splendida vista panoramica sulla città. L'ampia terrazza offre anche la possibilità di organizzare pranzi e cene all'aperto o di rilassarsi all'ombra durante le calde giornate estive.In sintesi, questo attico rappresenta la soluzione ideale per chi cerca una casa spaziosa, luminosa, ben collegata e pronta all'uso, in una delle zone più ricercate di Palermo. Non esitare a contattarci per maggiori informazioni e per prenotare una visita.
Dati principali
| Riferimento | 1201 |
| Data annuncio | 22/05/2025 |
| Contratto | Vendita |
| Tipologia | Attico |
| Superficie | 125 m2 |
| Locali | 4 (3 camere da letto, 1 altro), 1 bagno |
| Piano | Attico, 12 totali |
| Tipo di costruzione | Media |
| Occupato | Libero |
| Arredamento | Assente |
Caratteristiche
Costi
| Prezzo | 199.000 € |
| Prezzo al m2 | 1.592 €/m2 |
Efficienza energetica
| Stato | Buono |
| Riscaldamento | Assente |
| Classe energetica | G |
| Indice di prestazione energetica (IPE) | - |
Planimetrie
Indirizzo e mappa
Via Vincenzo Li Muli
102, Palermo
Annuncio senza mappa,
prova a chiedere la posizione all'inserzionista
prova a chiedere la posizione all'inserzionista
Calcolo mutuo
Prezzo di vendita:
Anticipo
20,00
Mutuo
80,00
Tasso: -+
Rata: 569 al mese
I risultati sono una stima indicativa basata sui dati inseriti e non costituiscono un’offerta finanziaria.
Inserzionista
Chiama
CONTATTA


