Appartamento Nonantola
€ 336.000
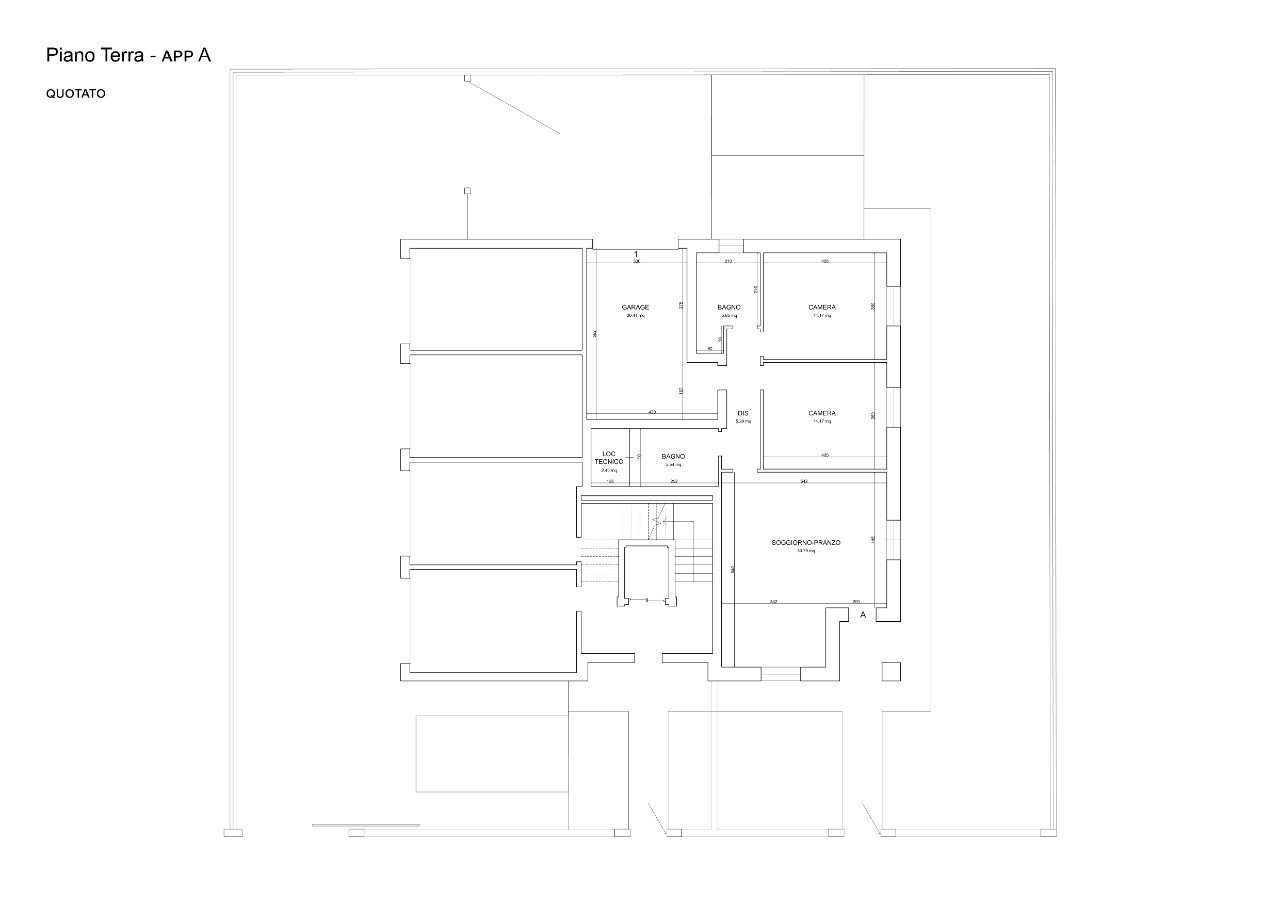
Cod.480/3 Nonantola Località Casette(App A): in posizione strategica, in strada chiusa ed in piccola palazzina di sole 5 unità contigua al parco, proponiamo splendida maisonette al P.T di nuova costruzione, così composta: accesso indipendente su giardino esclusivo in piccola parte lastricato di circa 240 Mq, ingresso indipendente su ampio soggiorno con angolo cottura, disimpegno notte, 2 camere da letto padronali, 2 bagni di cui uno finestrato, un ripostiglio/locale tecnico ed un portico. Completa la proprietà un ampio garage di oltre 20 Mq, collegato all’abitazione e 2 posti auto esclusivi all’interno della corte. Classe Energetica A Euro 336.000 (di cui euro 3000,00 per allacci ed accatastamenti) Consegna luglio 2026 Immobile unico nel mercato locale!!! Ottima occasione! Nessuna spesa condominiale! Indipendenza esclusiva!!! Per info allo 059.2155718 o al 331.3533683.
Dati principali
| Riferimento | GAM480/3 |
| Data annuncio | 18/04/2025 |
| Contratto | Vendita |
| Tipologia | Appartamento |
| Superficie | 140 m2 |
| Locali | 2 bagni |
Costi
| Prezzo | 336.000 € |
| Prezzo al m2 | 2.400 €/m2 |
Efficienza energetica
| Classe energetica | A+ |
| Indice di prestazione energetica (IPE) | - |
Planimetrie
Indirizzo e mappa
Nonantola
Calcolo mutuo
Prezzo di vendita:
Anticipo
20,00
Mutuo
80,00
Tasso: -+
Rata: 961 al mese
I risultati sono una stima indicativa basata sui dati inseriti e non costituiscono un’offerta finanziaria.
Inserzionista

GAMMA CASE SRL
Via Zucchi 106/110, Modena
Mostra Telefono
Chiama
CONTATTA

