Casa indipendente Monzuno
€ 160.000
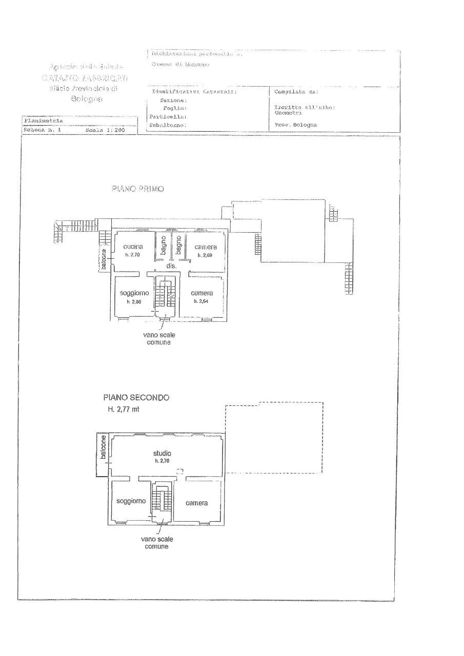
Rif.675N Monzuno Casale con 2 appartamenti euro 160.000 Monzuno a soli 4 km dall’uscita autostradale di Rioveggio e comodo alla strada principale, proponiamo in vendita casale in sasso composto da 1 appartamento bilocale al piano terra e 1 appartamento su due livelli. Il compendio si completa con 2 autorimesse e 5 cantine oltre all’area cortiliva circostante in proprietà esclusiva. Riscaldamento autonomo alimentato da gpl, infissi in legno con doppio vetro, cancelletti antintrusione. Immobile libero da subito, APE G.
Dati principali
| Riferimento | CSF675N |
| Data annuncio | 02/08/2021 |
| Contratto | Vendita |
| Tipologia | Casa indipendente |
| Superficie | 300 m2 |
| Locali | 3 bagni |
Costi
| Prezzo | 160.000 € |
| Prezzo al m2 | 533 €/m2 |
Efficienza energetica
| Classe energetica | G |
Planimetrie
Indirizzo e mappa
Monzuno
Calcolo mutuo
Prezzo di vendita:
Anticipo
20,00
Mutuo
80,00
Tasso: -+
Rata: 458 al mese
I risultati sono una stima indicativa basata sui dati inseriti e non costituiscono un’offerta finanziaria.
Inserzionista

ercolina scanavino
viale 2 giugno 52, Rapallo
Mostra Telefono
Chiama
CONTATTA

