Rustico Via volvera, None
€ 59.000Rustico in vendita
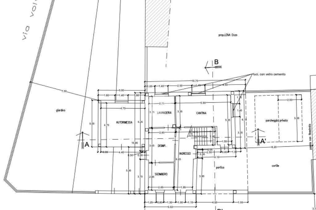
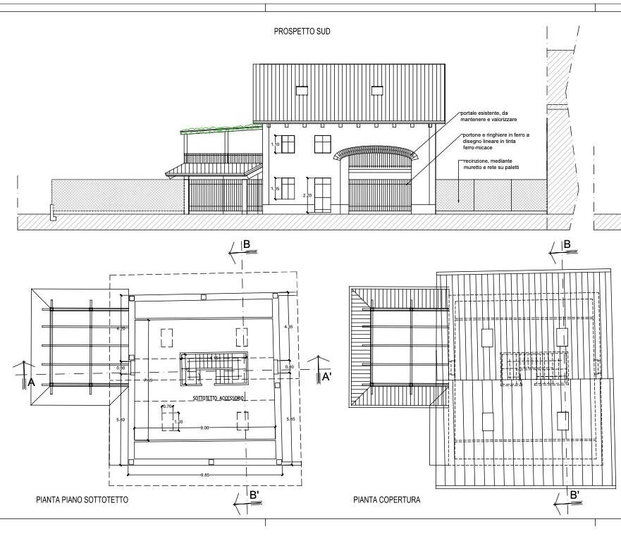
La proprietà comprende un lotto di circa 599 mq, con rustico esistente con cortile, una parte verde di circa 250 mq, un fabbricato ad uso autorimessa. La rete fognaria, corrente elettrica, gas e acqua arrivano sulla strada privata adiacente alla proprietà, ma è tutto da allacciare. Abbiamo in agenzia un capitolato per i costi dei lavori di demolizione e rifacimento dalle fondazioni al tetto della parte strutturale. Un progetto di fattibilità ancora in essere per un anno, prevede la costituzione di tre livelli di casa : al piano terra si prevedono i locali di servizio e l'ingresso; al piano primo Cucina e soggiorno con bagno e una camera; il piano sottotetto di circa 60 mq con possibilità per stanze e ulteriore bagno. Il cortile ospiterà il portico e due posteggi auto. Il piano abitabile avrà l'affaccio su due terrazzi. La soluzione è su via vicinissima al centro paese a pochi passi dalla via centrale.
Dati principali
| Riferimento | 61062530 |
| Data annuncio | 20/05/2025 |
| Contratto | Vendita |
| Tipologia | Rustico |
| Superficie | 599 m2 |
| Locali | 5 (2 camere da letto, 3 altro), 3 bagni |
| Piano | 1 di 3 totali |
Costi
| Prezzo | 59.000 € |
| Prezzo al m2 | 98 €/m2 |
Efficienza energetica
| Anno costruzione | 1900 |
| Riscaldamento | Autonomo |
| Tipo Alimentazione Riscaldamento | Altro |
| Classe energetica | G |
| Indice di prestazione energetica (EP GL, REN) | 1 kWh/m3 anno |
| Indice di prestazione energetica (EP GL, NREN) | 1 kWh/m3 anno |
Planimetrie
Video
Indirizzo e mappa
Via volvera, None
Calcolo mutuo
Prezzo di vendita:
Anticipo
20,00
Mutuo
80,00
Tasso: -+
Rata: 169 al mese
I risultati sono una stima indicativa basata sui dati inseriti e non costituiscono un’offerta finanziaria.
Inserzionista
Agenzia Tecnocasa Immobiliare Dama Sas
Via Roma, 22/C, None
Mostra Telefono
Chiama
CONTATTA

