Villa a Schiera Via leopardi, Basiglio
Trattativa riservataVilla a schiera d'angolo in affitto
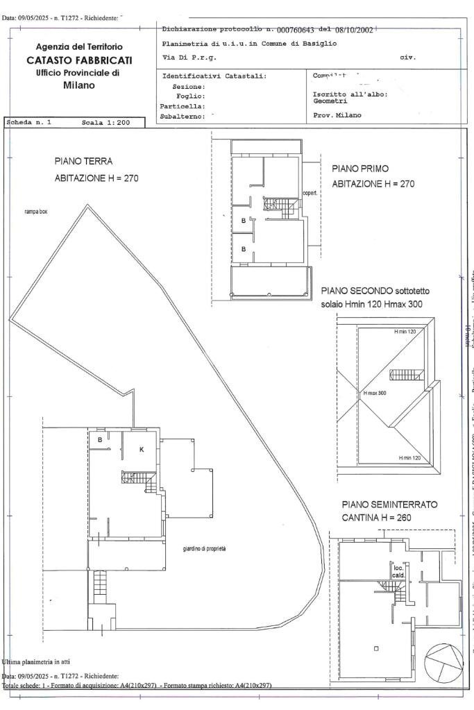
Si propone in affitto a Basiglio villa a schiera su 3 livelli e seminterrato di 300 Mq. La villa, circondata da un ampio giardino, verrà affittata arredata di sola cucina e armadiature con contratto 4+4 a partire dal 15 settembre. Si compone di soggiorno, cucina, 3 camere da letto matrimoniali, uno studio, 3 bagni, terrazzi e veranda coperta. Nel seminterrato uno spazio con camino molto accogliente. A disposizione anche un box.
Dati principali
| Riferimento | 61060312 |
| Data annuncio | 17/05/2025 |
| Contratto | Affitto |
| Tipologia | Villa a Schiera |
| Superficie | 300 m2 |
| Locali | 5 (5 altro), 3 bagni |
| Piano | 1 di 4 totali |
Costi
| Prezzo | Trattativa riservata |
| Spese condominiali | € 333,00/mese |
Efficienza energetica
| Anno costruzione | 2001 |
| Riscaldamento | Autonomo |
| Classe energetica | C |
| Indice di prestazione energetica (EP GL, NREN) | 161.01 kWh/m3 anno |
Planimetrie
Video
Indirizzo e mappa
Via leopardi, Basiglio
Inserzionista
Chiama
CONTATTA

