Bilocale Piazza San Giovanni Battista, San Benedetto del Tronto
€ 220.000
SAN BENEDETTO DEL TRONTO - CENTRO - Appartamenti di nuova costruzione
In una piccola palazzina di dodici unità abitative sono disponibili appartamenti di nuova costruzione in classe Energetica "A4"
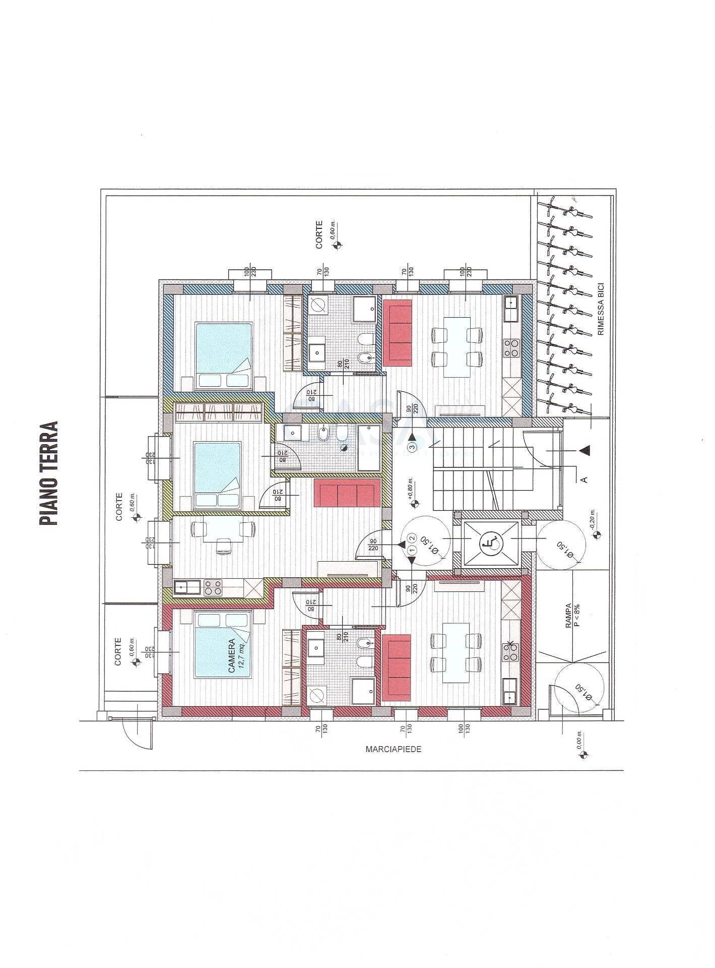
Appartamento posto al piano terra della superficie di 47 mq circa composto da soggiorno con cucina a vista, una camera matrimoniale ed un bagno oltre a corte esterna di 6 mq.
L' edificio viene costruito rispettando parametri molto elevati, sia dal punto di vista delle caratteristiche dellinvolucro, sia dal punto di vista impiantistico, l'impianto termo sanitario sarà realizzato a pavimento con pompa di calore, l'impianto d'aria condizionata prevede l'installazione di due split , non verranno utilizzati gli impianti per l'allaccio alle reti del gas, inoltre verrà installato sul tetto condominiale impianto fotovoltaico di ultima generazione individuale.
E' possibile ampliare la metratura e/o unire due appartamenti
Completa la proprietà un comodo fondaco
La palazzina dista circa 650 mt dal mare e 500 mt dall'isola pedonale.
In una piccola palazzina di dodici unità abitative sono disponibili appartamenti di nuova costruzione in classe Energetica "A4"
Appartamento posto al piano terra della superficie di 47 mq circa composto da soggiorno con cucina a vista, una camera matrimoniale ed un bagno oltre a corte esterna di 6 mq.
L' edificio viene costruito rispettando parametri molto elevati, sia dal punto di vista delle caratteristiche dellinvolucro, sia dal punto di vista impiantistico, l'impianto termo sanitario sarà realizzato a pavimento con pompa di calore, l'impianto d'aria condizionata prevede l'installazione di due split , non verranno utilizzati gli impianti per l'allaccio alle reti del gas, inoltre verrà installato sul tetto condominiale impianto fotovoltaico di ultima generazione individuale.
E' possibile ampliare la metratura e/o unire due appartamenti
Completa la proprietà un comodo fondaco
La palazzina dista circa 650 mt dal mare e 500 mt dall'isola pedonale.
Dati principali
| Riferimento | 1103 |
| Data annuncio | 15/05/2025 |
| Contratto | Vendita |
| Tipologia | Appartamento |
| Superficie | 55 m2 |
| Locali | 2 (1 camera da letto, 1 altro), 1 bagno, cucina a vista |
| Piano | 4 di 4 totali |
| Tipo di costruzione | Signorile |
| Occupato | Libero |
| Box auto | Assente |
| Arredamento | Assente |
Caratteristiche
Costi
| Prezzo | 220.000 € |
| Prezzo al m2 | 4.000 €/m2 |
Efficienza energetica
| Riscaldamento | Autonomo |
| Tipo Impianto Di Riscaldamento | a pavimento |
| Tipo Alimentazione Riscaldamento | Elettrico |
| Classe energetica | A4 |
Indirizzo e mappa
Piazza San Giovanni Battista, San Benedetto del Tronto
Annuncio senza mappa,
prova a chiedere la posizione all'inserzionista
prova a chiedere la posizione all'inserzionista
Calcolo mutuo
Prezzo di vendita:
Anticipo
20,00
Mutuo
80,00
Tasso: -+
Rata: 629 al mese
I risultati sono una stima indicativa basata sui dati inseriti e non costituiscono un’offerta finanziaria.
Inserzionista
Chiama
CONTATTA


