Ufficio Via Friuli 18, Silea
€ 120.000
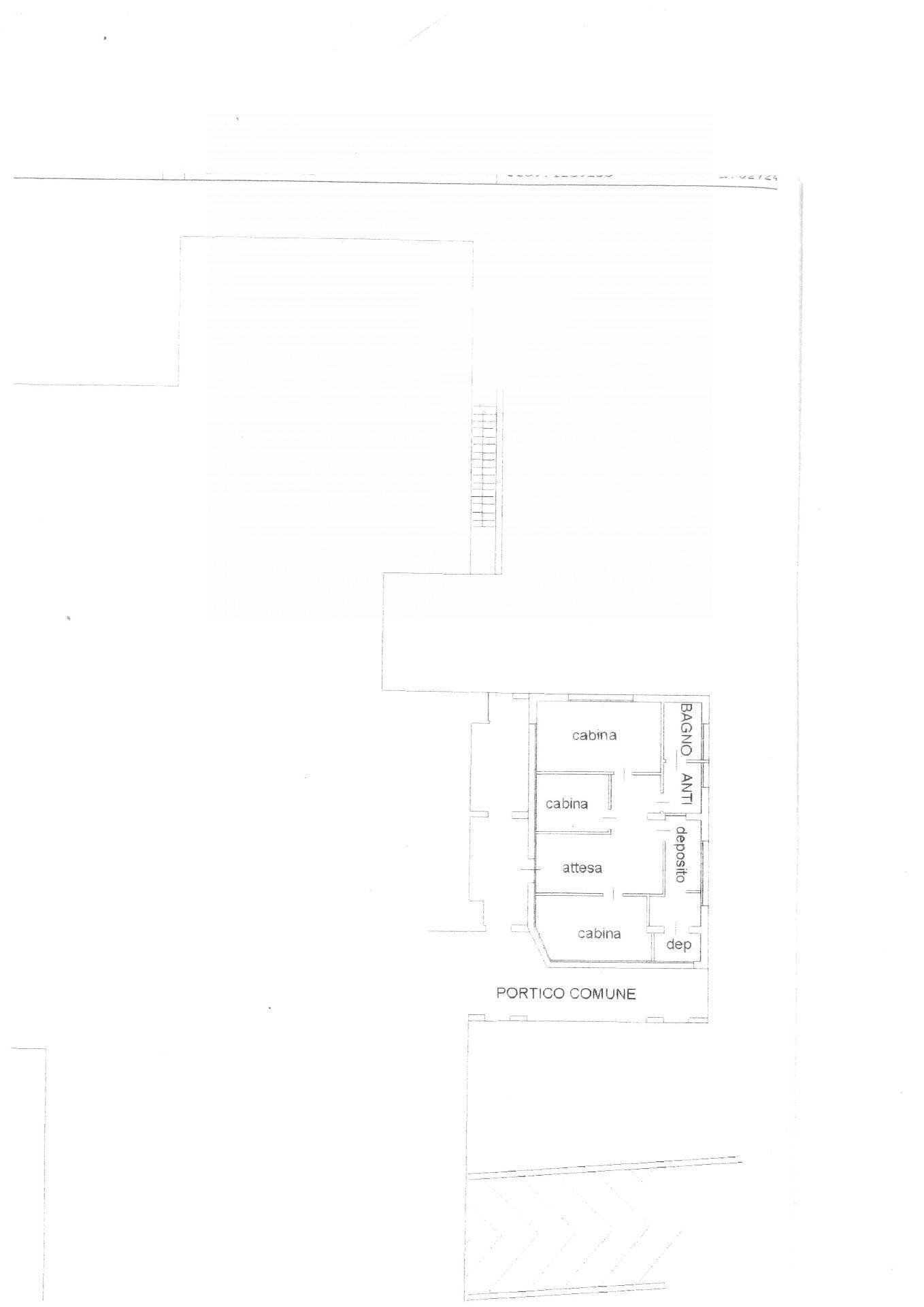
In vendita a Silea immobile uso ufficio/studio. Silea, zona Lanzago, vendesi locale al piano terra di 80 mq. commerciali, con possibilità di parcheggio libero. L'immobile è composto da ingresso/saletta di attesa, tre stanze, un bagno con antibagno ed un locale magazzino Ideale per studio/ufficio, riscaldamento e raffrescamento autonomo, classe energetica C. Posto all'interno di una strada principale è comunque visibile anche se gode di riservatezza. Per ulteriori informazioni e/o per visionare questo locale uso ufficio/studio telefonare all'Agenzia Immobiliare Impresa Tel .0422 460300 Riferimento codice annuncio I/EM540.
Dati principali
| Riferimento | I/EM540 |
| Data annuncio | 15/05/2025 |
| Contratto | Vendita |
| Tipologia | Ufficio |
| Superficie | 81 m2 |
| Locali | 2 (2 altro), 1 bagno |
| Piano | Terra, 4 totali |
| Occupato | Libero |
Costi
| Prezzo | 120.000 € |
| Prezzo al m2 | 1.481 €/m2 |
Efficienza energetica
| Stato | Buono |
| Riscaldamento | Autonomo |
| Tipo Impianto Di Riscaldamento | ad aria |
| Tipo Alimentazione Riscaldamento | Elettrico |
| Classe energetica | C |
| Indice di prestazione energetica (IPE) | 458 kWh/m2 anno |
Planimetrie
Virtual tour
Indirizzo e mappa
Via Friuli
18, Silea
Annuncio senza mappa,
prova a chiedere la posizione all'inserzionista
prova a chiedere la posizione all'inserzionista
Calcolo mutuo
Prezzo di vendita:
Anticipo
20,00
Mutuo
80,00
Tasso: -+
Rata: 343 al mese
I risultati sono una stima indicativa basata sui dati inseriti e non costituiscono un’offerta finanziaria.
Inserzionista
Chiama
CONTATTA


