Ufficio Via Internati 1943/45, Silea
€ 340.000
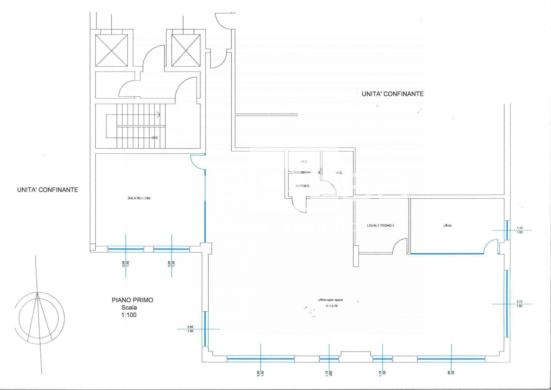
Ufficio in vendita a Silea. Silea, in vendita elegante ufficio di mq 260 completamente arredato, all'interno di un recente complesso direzionale e commerciale, a ridosso dell'uscita TV-SUD comodo a tutte le arterie stradali e a 10 minuti dal centro città di Treviso. E' un luminosissimo locale di circa 260 mq, dopo il corridoio di ingresso si può ricavare una zona per accogliere i clienti, proseguendo troviamo una sala riunioni, uno spazioso open space per coworking o altra destinazione, un ulteriore ufficio di direzione, due bagni ed anti-bagno e un locale tecnico adibito a server ed archivio. Lo spazio centrale, ampiamente finestrato, è comunque facilmente divisibile in base alle proprie esigenze. La proprietà è su un complesso di prestigio, tutt'intorno insistono attività direzionali e commerciali tutte ben avviate. Viene lasciato completamente arredato con eleganza e praticità senza trascurare l'estrema comodità di parcheggio sia per i Clienti che per gli eventuali Locatori/Proprietari. Completano la proprietà: impianto di riscaldamento e raffrescamento centralizzato a ventil-convettori a pavimento, rete di distribuzione fonia e dati cablata certificata CAT.5E, armadio rack cablaggio strutturato, impianto antintrusione, porta blindata, centralino telefonico, illuminazione delle aree di lavoro interne con regolatore di flusso luminoso e dispositivo fotometrico, per risparmio di energia e comfort visivo in tutta l'area di lavoro, oltre a 3 posti auto di proprietà nell'autorimessa interrata. Attualmente locato con una rendita del 7,80% Per informazioni e visite siamo a vostra disposizione; contattateci allo 0422.460300 citando il Rif. I/SMN105 Visitate anche il nostro sito internet www.impresaimmobiliare.com
Dati principali
| Riferimento | I/SMN105 |
| Data annuncio | 15/05/2025 |
| Contratto | Vendita |
| Tipologia | Ufficio |
| Superficie | 260 m2 |
| Locali | 1 (1 altro), 2 bagni |
| Piano | 1 di 4 totali |
| Occupato | Libero |
| Numero posti auto | 3 |
| Arredamento | Completo |
Caratteristiche
Costi
| Prezzo | 340.000 € |
| Prezzo al m2 | 1.308 €/m2 |
Efficienza energetica
| Stato | Ottimo |
| Riscaldamento | Semi-autonomo |
| Tipo Impianto Di Riscaldamento | ad aria |
| Tipo Alimentazione Riscaldamento | Elettrico |
| Classe energetica | C |
| Indice di prestazione energetica (IPE) | 20 kWh/m2 anno |
Planimetrie
Indirizzo e mappa
Via Internati 1943/45, Silea
Annuncio senza mappa,
prova a chiedere la posizione all'inserzionista
prova a chiedere la posizione all'inserzionista
Calcolo mutuo
Prezzo di vendita:
Anticipo
20,00
Mutuo
80,00
Tasso: -+
Rata: 972 al mese
I risultati sono una stima indicativa basata sui dati inseriti e non costituiscono un’offerta finanziaria.
Inserzionista

impREsa Silea
Via Callalta, 40, Silea
Mostra Telefono
Chiama
CONTATTA

