Rustico Località Farnesiana snc, Tarquinia
€ 98.000
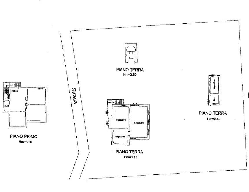
Immerso nella Maremma Laziale, e precisamente in Località Farnesiana, proponiamo in vendita casale Ex-Entemaremma, con corte privata di circa 5000 mq. La proprietà ci accoglie al suo interno tramite cancello carrabile, direttamente nella corte che circonda su quattro lati il fabbricato; la sua composizione rappresenta alla perfezione la tipica costruzione del periodo, ossia un corpo principale costituito al piano terra da ampi locali magazzino, precisamente tre, ognuno dei quali con ingresso indipendente dall'esterno, comodi da utilizzare come garage doppio, o come deposito attrezzi per tutti gli utensili necessari per la manutenzione della corte o del terreno. Tramite scala esterna in muratura si arriva al primo piano dove troviamo la parte residenziale, costituita da quattro ampi vani, attualmente adibiti ad ampia cucina abitabile e tre camere matrimoniali, più il bagno. A completare il tutto sempre all'interno dell'area recintata, troviamo un forno a legna, e piccolo fabbricato rurale da sempre adibito a pollaio. Se ami la vita in campagna, e stai cercando una soluzione dove vivere sereni nella tranquillità della natura, questa è la soluzione che stavi aspettando!!
Dati principali
| Riferimento | v002444 |
| Data annuncio | 15/05/2025 |
| Contratto | Vendita |
| Tipologia | Rustico |
| Superficie | 70 m2 |
| Locali | 4 (3 camere da letto, 1 altro), 1 bagno, cucina abitabile |
| Piano | Su più livelli, 2 totali |
| Tipo di costruzione | Popolare |
| Occupato | Libero |
| Box auto | Doppio |
| Numero posti auto | 10 |
| Arredamento | Assente |
Caratteristiche
Costi
| Prezzo | 98.000 € |
| Prezzo al m2 | 1.400 €/m2 |
Efficienza energetica
| Stato | Da ristrutturare |
| Riscaldamento | Assente |
| Tipo Alimentazione Riscaldamento | Altro |
| Classe energetica | Immobile esente da certificazione energetica |
Planimetrie
Indirizzo e mappa
Località Farnesiana
snc, Tarquinia
Annuncio senza mappa,
prova a chiedere la posizione all'inserzionista
prova a chiedere la posizione all'inserzionista
Calcolo mutuo
Prezzo di vendita:
Anticipo
20,00
Mutuo
80,00
Tasso: -+
Rata: 280 al mese
I risultati sono una stima indicativa basata sui dati inseriti e non costituiscono un’offerta finanziaria.
Inserzionista

Coldwell Banker FRG & Partners
Corso Vittorio Emanuele 25, Tarquinia
Mostra Telefono
Mostra Cellulare
Vandini Roldano
Mostra Telefono
Chiama
CONTATTA

