Casa indipendente Via Mazzini 24, Alezio
€ 195.000
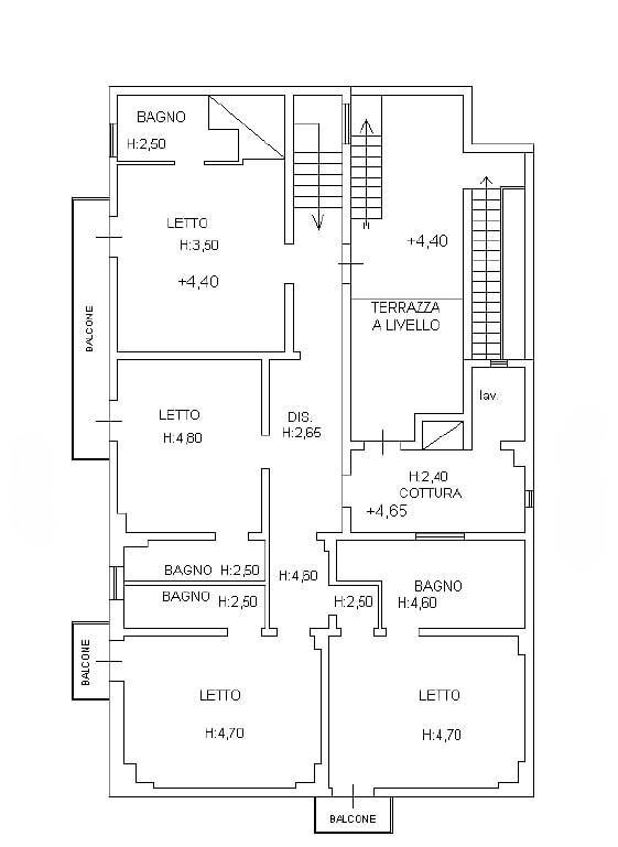
Nel cuore di Alezio, tra le incantevoli vie della città vecchia, disponibile meravigliosa dimora storica finemente ristrutturata e adibita a struttura ricettiva. L'immobile, della superficie complessiva di circa 200 mq, si compone di un ingresso, un corridoio, quattro camere da letto con bagno privato, una delle quali può ospitare fino a quattro persone. Tutte le camere sono provviste di balcone e una di esse all'interno del bagno privato possiede anche una vasca idromassaggio. Sempre sullo stesso piano vi è una cucina e un deposito/lavanderia. La proprietà continua con una bellissima zona scoperta arredata con dei graziosi salottini. Al piano superiore vi è una bellissima terrazza sulla quale si può realizzare una zona relax o solarium. Al piano terra, con eventuale accesso indipendente rispetto al resto della struttura, vi è un ulteriore vano destinato a diventare centro SPA. La soluzione proposta è l'investimento ideale per chi desidera investire nel settore ricettivo in uno dei comuni più gettonati durante la stagione estiva.
Dati principali
| Riferimento | 2 |
| Data annuncio | 15/05/2025 |
| Contratto | Vendita |
| Tipologia | Casa indipendente |
| Superficie | 200 m2 |
| Locali | più di 5 (4 camere da letto, 2 altro), 4 bagni, cucina cucinino |
| Piano | Su più livelli, 2 totali |
| Tipo di costruzione | Signorile |
| Occupato | Libero |
| Box auto | Assente |
| Arredamento | Completo |
Caratteristiche
Costi
| Prezzo | 195.000 € |
| Prezzo al m2 | 975 €/m2 |
Efficienza energetica
| Stato | Ottimo |
| Riscaldamento | Autonomo |
| Classe energetica | F |
| Indice di prestazione energetica (IPE) | - |
Planimetrie
Indirizzo e mappa
Via Mazzini
24, Alezio
Annuncio senza mappa,
prova a chiedere la posizione all'inserzionista
prova a chiedere la posizione all'inserzionista
Calcolo mutuo
Prezzo di vendita:
Anticipo
20,00
Mutuo
80,00
Tasso: -+
Rata: 558 al mese
I risultati sono una stima indicativa basata sui dati inseriti e non costituiscono un’offerta finanziaria.
Inserzionista
Tommaso Provenzano IMMOBILIARE
Via Kennedy 1, Gallipoli
Mostra Cellulare
Tommaso Provenzano IMMOBILIARE
Mostra Telefono
Chiama
CONTATTA

