Quadrilocale Corso Vittorio Emanuele Ii, Piacenza
Trattativa riservata
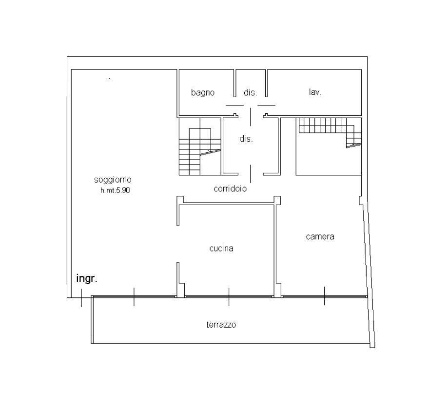
CORSO VITTORIO EMANUELE II - UNICO NEL SUO GENERE DIFFICILE DA REPLICARE - In stabile d'epoca sapientemente ristrutturato con ascensore LUMINOSO E MODERNO LOFT CON TERRAZZA E VETRATE posto all'ultimo piano con affaccio sui tetti del centro. L'appartamento disposto su due livelli per complessivi 273 mq, è molto luminoso grazie alle pareti vetrate su entrambi i livelli ed è impreziosito da una leggera scala in vetro di design. L'ingresso, ampio e accogliente in grande zona living completamente aperta con altezza tutto tetto, conduce agli ambienti principali dell'abitazione ed alla cucina abitabile con isola arredata con accesso diretto alla terrazza. Sempre al piano una grande camera da letto matrimoniale con possibilità di realizzare cabina armadi, un dressing di disimpegno, un bagno ed una lavanderia. Al piano superiore, oltre alla passerella con affaccio sulla zona living, troviamo ulteriori 2 camere da letto, oltre al secondo bagno. Bellissimi pavimenti in listoni di parquet in perfette condizioni con impianti tecnologici nuovi e riscaldamento a pavimento e aria condizionata. Cantina e POSSIBILITA' DI POSTO AUTO presso silo Ex Plaza ad Euro 45.000, oppure garage singoli o doppi in Via Venturini a partire da Euro 28.000, oppure posto auto in locazione presso garage Politeama, o possibilità posto auto presso Garage del Corso ad Euro 2.000 annui.
*INFORMATIVA PRIVACY* Per tutelare la privacy dei nostri clienti, vi informiamo che, in alcuni casi, L'INDIRIZZO INDICATO DELL'IMMOBILE E' SOLITAMENTE APPROSSIMATIVO. Maggiori dettagli verranno SEMPRE forniti SOLO dopo contatto telefonico. Si riceve SEMPRE SOLO ESCLUSIVAMENTE con appuntamento da contatto telefonico o mail. dal Lunedì al Venerdì dalle 9.00 alle 12.30 e dalle 14.00 alle 18.00 Sabato mattina SOLO PER APPUNTAMENTI - Domenica CHIUSO TEL. 0523.49.08.18 MAIL: [email protected]; MAIL: [email protected]; SOLUZIONECASA Piacenza - Via Monte Penice 18 - 29121 Piacenza
*INFORMATIVA PRIVACY* Per tutelare la privacy dei nostri clienti, vi informiamo che, in alcuni casi, L'INDIRIZZO INDICATO DELL'IMMOBILE E' SOLITAMENTE APPROSSIMATIVO. Maggiori dettagli verranno SEMPRE forniti SOLO dopo contatto telefonico. Si riceve SEMPRE SOLO ESCLUSIVAMENTE con appuntamento da contatto telefonico o mail. dal Lunedì al Venerdì dalle 9.00 alle 12.30 e dalle 14.00 alle 18.00 Sabato mattina SOLO PER APPUNTAMENTI - Domenica CHIUSO TEL. 0523.49.08.18 MAIL: [email protected]; MAIL: [email protected]; SOLUZIONECASA Piacenza - Via Monte Penice 18 - 29121 Piacenza
Dati principali
| Riferimento | MC11225 |
| Data annuncio | 15/05/2025 |
| Contratto | Vendita |
| Tipologia | Appartamento |
| Superficie | 273 m2 |
| Locali | 4 (3 camere da letto, 1 altro), 3 bagni, cucina abitabile |
| Piano | Ultimo piano, 3 totali |
| Tipo di costruzione | Signorile |
| Occupato | Libero |
| Box auto | Assente |
| Arredamento | Parziale |
Caratteristiche
Costi
| Prezzo | Trattativa riservata |
Efficienza energetica
| Stato | Ottimo |
| Riscaldamento | Autonomo |
| Tipo Impianto Di Riscaldamento | a pavimento |
| Classe energetica | C |
| Indice di prestazione energetica (IPE) | 114 kWh/m2 anno |
Planimetrie
Indirizzo e mappa
Corso Vittorio Emanuele Ii, Piacenza
Annuncio senza mappa,
prova a chiedere la posizione all'inserzionista
prova a chiedere la posizione all'inserzionista
Inserzionista
SOLUZIONE CASA
Via Monte Penice 18, Piacenza
Mostra Telefono
Chiama
CONTATTA

