Ufficio Via Pietro Giordani, Piacenza
€ 2.000 al mese
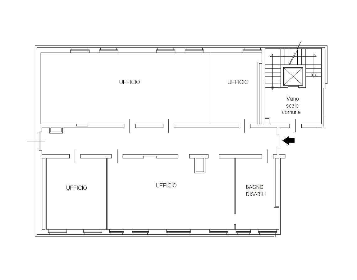
VIA GIORDANI - NO Z.T.L. - In palazzo direzionale con ASSENZA DI BARRIERE ARCHITETTONICHE, UFFICIO di 250 mq posto al piano terzo con ascensore. 2 POSTI AUTO COMPRESI NEL PREZZO. Riscaldamento e condizionamento centralizzato incluso nelle spese di condominio. Attualmente in fase di sistemazione, viene consegnato con ambienti e studi in funzione delle esigenze del conduttore. Bagno disabili in fase di realizzazione a cura della proprietà. Possibilità di ambienti in open space o ambienti ufficio fino a 6/7 locali, molto luminoso, bel contesto. Per qualsiasi informazione e per visite potete contattarci ai riferimenti sotto indicati: Si riceve SEMPRE SOLO ESCLUSIVAMENTE con appuntamento da contatto telefonico o mail. dal Lunedì al Venerdì dalle 9.00 alle 12.30 e dalle 14.00 alle 18.00 Sabato mattina SOLO PER APPUNTAMENTI - Domenica CHIUSO TEL. 0523.49.08.18 MAIL: [email protected]; MAIL: [email protected]; SOLUZIONECASA Piacenza - Via Monte Penice 18 - 29121 Piacenza
Dati principali
| Riferimento | MC10225 |
| Data annuncio | 15/05/2025 |
| Contratto | Affitto |
| Tipologia | Ufficio |
| Superficie | 250 m2 |
| Locali | 5 (5 altro), 2 bagni, cucina non presente |
| Piano | 3 di 4 totali |
| Occupato | Libero |
| Box auto | Assente |
| Numero posti auto | 2 |
| Arredamento | Assente |
Caratteristiche
Costi
| Prezzo | 2.000 € al mese |
Efficienza energetica
| Stato | Ottimo |
| Riscaldamento | Centralizzato |
| Classe energetica | F |
| Indice di prestazione energetica (IPE) | 298 kWh/m2 anno |
Planimetrie
Indirizzo e mappa
Via Pietro Giordani, Piacenza
Annuncio senza mappa,
prova a chiedere la posizione all'inserzionista
prova a chiedere la posizione all'inserzionista
Inserzionista
SOLUZIONE CASA
Via Monte Penice 18, Piacenza
Mostra Telefono
Chiama
CONTATTA

